Prodej rodinného domu, Týnec nad Labem, 107 m2

Týnec nad Labem

8 900 000 Kč HYPOTÉKA od 39 778 Kč /za měsíc

(včetně provize RK)

Exkluzivní partneři v Týnci nad Labem

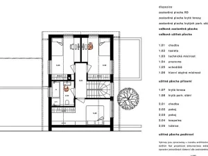
Informace k domu

Prodej novostavby domu 125 m², pozemek 798 m² Vinařice, Týnec nad Labem

Nabízíme moderní dvoupatrový rodinný dům o užitné ploše 125 m² na pozemku 798 m². Kvalitní dřevostavba situovaná v klidné rezidenční části Vinařic s výborným spojením do Kolína (15 min) i Prahy (cca 50 min).
Dům bude dodán ve stavu kompletního dokončení – hotové podlahy, obklady, sanita i interiéry.
Kuchyňská linka je ponechána na volbu kupujícího. Standardy zašlu na vyžádání.
Fotografie použité v nabídce pocházejí ze stejné typové stavby realizované v jiné lokalitě.
Proč právě tento dům?
* Dvoupodlažní koncepce = více prostoru a soukromí
* Moderní a úsporná dřevostavba s nízkými náklady
* Klidné prostředí v blízkosti přírody
* Občanská vybavenost v Týnci nad Labem
* Rychlé spojení busem i vlakem
* Ideální volba pro rodinu nebo jako bezpečná investice
Parametry stavby
* Typ: dvoupodlažní rodinný dům – dřevostavba
* Užitná plocha: 125 m²
* Pozemek: 798 m²
* Dokončení stavby: rok 2026
Platební harmonogram
* Rezervační poplatek
* 20 % z ceny při podpisu Smlouvy o smlouvě budoucí kupní
* Doplatek při kolaudaci a podpisu kupní smlouvy
Standard dokončení
Kompletně hotové interiéry včetně podlah, obkladů a sanit. Kuchyň řeší kupující dle svého vkusu.
Zavolejte pro více informací – rád pošlu standardy, vizualizace i detailní podklady.

Parametry domu

Cena
8 900 000 Kč Spočítat hypotéku
Poznámka k ceně
včetně provize RK
Aktualizováno
4. 12. 2025
Adresa
Týnec nad Labem
ID
971695
Stavba
Dřevěná
Stav objektu
Novostavba
Druh objektu
Samostatný
Vlastnictví
Osobní
Užitná plocha
107 m2
Zastavěná plocha
95 m2
Plocha pozemku
798 m2
Třída energetické náročnosti
A - Mimořádně úsporná

Kontaktovat makléře

Máte zájem o tento dům?

Tímto, v souladu s nařízením Evropského parlamentu a Rady (EU) 2016/679, v platném znění, prohlašuji, že mi je alespoň 16 let a uděluji tak svůj souhlas se zpracováním zadaných údajů (jméno, telefon, e-mail, ip adresa) společnosti B3 Technology, s.r.o., IČ: 07330600, se sídlem Novostavby 126/23, 435 11 Lom (správce dat), za účelem předání dotazu z tohoto formuláře Vámi vybranému inzerentovi a zpětného kontaktování mé osoby. Osobní údaje bude správce zpracovávat manuálně i automaticky přímo prostřednictvím svých zaměstnanců. Informace předané tímto formulářem budou uloženy v databázi správce maximálně po dobu 10 let. Odvolání souhlasu s uložením a zpracováním poskytnutých dat lze e-mailem na info@vitio.cz. V případě podezření na neoprávněné použití Vámi poskytnutých údajů máte právo předat podnět k šetření Úřadu pro ochranu osobních údajů. Více informací
Chystáte se prodat nemovitost?
Pomůžeme Vám!

Inzerát si prohlédlo 0 lidí

Prodejce

Štěpán Vlček

Štěpán Vlček

Hlídací pes

Chcete dostávat emailem podobné nabídky prodeje rodinných domů v Týnci nad Labem?

Podobné nemovitosti