Prodej rodinného domu, Týnec nad Labem, V Malém kopci, 63 m2

V Malém kopci, Týnec nad Labem

2 600 000 Kč /za nemovitost HYPOTÉKA od 11 620 Kč /za měsíc

(včetně právního servisu a provize)

Exkluzivní partneři v Týnci nad Labem

Informace k domu

Dobrý den.

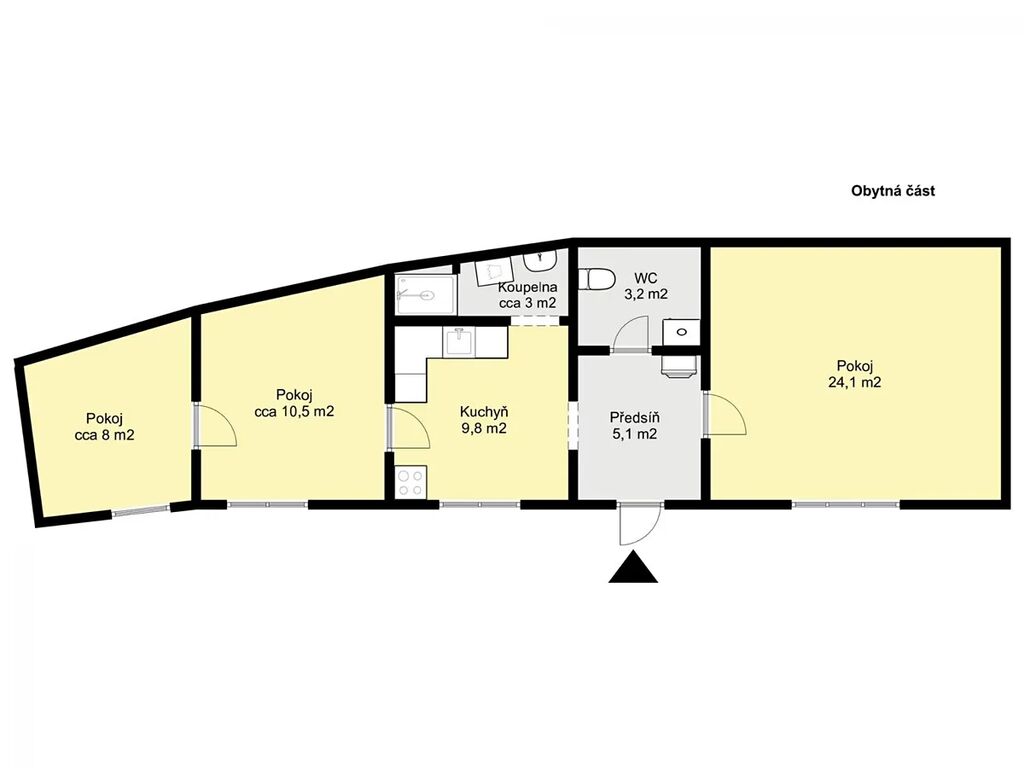
Nabízím Vám ke koupi rodinný dům o dispozici 3+1 na adrese V Malém Kopci 112, Týnec nad Labem, s celkovou výměrou pozemku 275 m2.

Dům je určen k rekonstrukci, což představuje skvělou příležitost vytvořit si bydlení přesně podle vlastních představ.

Konstrukce je řešena jako smíšené zdivo.

Nemovitost je napojena na obecní vodovod, elektřinu a kanalizaci.

Vytápění je zajištěno ústředním topením na tuhá paliva prostřednictvím krbových kamen, s rozvodem tepla pomocí radiátorů. Ohřev vody obstarává elektrický bojler.

Dispozice domu se skládá ze vstupní chodby, tří pokojů, kuchyně, koupelny a samostatné prostorné toalety. Obytná část má přibližně 64 m2.
Součástí domu je také dílna a technické zázemí, které se nachází pod obytnou částí, součástí tohoto zázemí je i vlastní toaleta. Tato část má rozlohu 35 m2.

Před hlavním vstupem do domu se nachází terasa k příjemnému posezení.

Týnec nad Labem disponuje veškerou občanskou vybaveností a nabízí příjemné a klidné prostředí pro rodinné bydlení s dobrou dopravní dostupností do okolních měst. V Kolíně jste do 15 minut autem.
Vlakové nádraží je 5 minut chůze od domu.

Nemovitost lze financovat hypotečním úvěrem, se kterým Vám rádi pomůžeme.

Budu se těšit na případnou prohlídku.

Uvedené m2 jsou pouze orientační.

Parametry domu

Cena
2 600 000 Kč /za nemovitost Spočítat hypotéku
Poznámka k ceně
včetně právního servisu a provize
Aktualizováno
15. 11. 2025
Adresa
V Malém kopci, Týnec nad Labem
ID
964
Stavba
Smíšená
Stav objektu
Před rekonstrukcí
Druh objektu
Rohový
Užitná plocha
63 m2
Zastavěná plocha
130 m2
Podlahová plocha
63 m2
Plocha pozemku
275 m2
Plocha zahrady
145 m2
Elektřina
230V
Odpad
Veřejná kanalizace
Topení
Ústřední tuhá paliva
Komunikace
Dlážděná
Doprava
Vlak, Silnice, Autobus
Voda
Vodovod
Topné těleso
Radiátory
Zdroj topení
Krbová kamna
Bezbarierový přístup

Kontaktovat makléře

Máte zájem o tento dům?

Tímto, v souladu s nařízením Evropského parlamentu a Rady (EU) 2016/679, v platném znění, prohlašuji, že mi je alespoň 16 let a uděluji tak svůj souhlas se zpracováním zadaných údajů (jméno, telefon, e-mail, ip adresa) společnosti B3 Technology, s.r.o., IČ: 07330600, se sídlem Novostavby 126/23, 435 11 Lom (správce dat), za účelem předání dotazu z tohoto formuláře Vámi vybranému inzerentovi a zpětného kontaktování mé osoby. Osobní údaje bude správce zpracovávat manuálně i automaticky přímo prostřednictvím svých zaměstnanců. Informace předané tímto formulářem budou uloženy v databázi správce maximálně po dobu 10 let. Odvolání souhlasu s uložením a zpracováním poskytnutých dat lze e-mailem na info@vitio.cz. V případě podezření na neoprávněné použití Vámi poskytnutých údajů máte právo předat podnět k šetření Úřadu pro ochranu osobních údajů. Více informací
Chystáte se prodat nemovitost?
Pomůžeme Vám!

Inzerát si prohlédlo 0 lidí

Prodejce

Šimon Šmíd

Šimon Šmíd

Hlídací pes

Chcete dostávat emailem podobné nabídky prodeje rodinných domů v Týnci nad Labem?

Podobné nemovitosti