Pronájem bytu 2+1, Hradec Králové, Velké náměstí, 88 m2 (ID: 2658083)

Velké náměstí, Hradec Králové

17 990 Kč /za měsíc Získejte výhodnou HYPOTÉKU
Exkluzivní partneři v Hradci Králové

Informace k bytu

Nabízíme k pronájmu byt v nejžádanější lokalitě Hradce Králové, na Velkém náměstí, pouhých 20 metrů od katedrály, kde je jen zřídka příležitost sehnat nemovitost. Do domu vstoupíte impozantní chodbou s klenutými stropy, která navozuje jedinečnou atmosféru historické elegance.

Byt je k dispozici ihned.

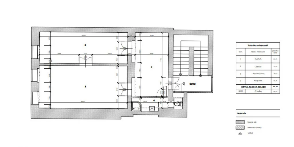
Celková výměra jednotky činí 88,1 m2, dispozice 2+1. Byt je umístěn ve druhém nadzemním podlaží budovy. Jednotka je vybavena novou kuchyňskou linkou se spotřebiči – varná deska, trouba, lednička, myčka.

Dům je již od r. 1958 zapsán v Památkovém katalogu Národního Památkového ústavu jako Kulturní památka ČR. Městský dům je typickou ukázkou měšťanské architektury z období, kdy byl Hradec Králové královským městem. Budova je součástí komplexu historických domů.

Byty prošly v roce 2014 nákladnou kompletní rekonstrukcí, která zahrnovala modernizaci všech bytových i nebytových prostor. Jednotky jsou v dobrem stavu a postupně procházely dalšími úpravami – rekonstrukcemi rozvodů, podlah, omítek, koupelen, a také modernizací systémů vytápění a ohřevu vody. V r. 2025 došlo k nové rekonstrukci bytů a společných částí domu.

Pronajímatel je připraven byt vybavit nábytkem dle přání nájemce.
Obě obytné místnosti mají okna do Velkého náměstí, byt je velmi slunný.
Byt si zachoval autentické historické prvky, včetně masivních dřevěných podlah, původních dveří a dřevěných zárubní. Impozantní jsou podlahy z původních dubových prken louhovaných v mořské vodě.

Nájem: 17 990 Kč
Služby: 4.500 Kč včetně elektřiny
Provize: 17 990 Kč + DPH
Jistota jeden měsíční nájem

Parametry bytu

Cena
17 990 Kč /za měsíc
Aktualizováno
30. 4. 2026
Adresa
Velké náměstí, Hradec Králové
ID
N498
Stavba
Cihlová
Stav objektu
Velmi dobrý
Patro
2. z 4
Typ objektu
Patrový
Vlastnictví
Osobní
Užitná plocha
88 m2
Podlahová plocha
88 m2
Třída energetické náročnosti
F - Velmi nehospodárná
Doprava
MHD
Výtah

Kontaktovat makléře

Máte zájem o tento byt?

Tímto, v souladu s nařízením Evropského parlamentu a Rady (EU) 2016/679, v platném znění, prohlašuji, že mi je alespoň 16 let a uděluji tak svůj souhlas se zpracováním zadaných údajů (jméno, telefon, e-mail, ip adresa) společnosti B3 Technology, s.r.o., IČ: 07330600, se sídlem Novostavby 126/23, 435 11 Lom (správce dat), za účelem předání dotazu z tohoto formuláře Vámi vybranému inzerentovi a zpětného kontaktování mé osoby. Osobní údaje bude správce zpracovávat manuálně i automaticky přímo prostřednictvím svých zaměstnanců. Informace předané tímto formulářem budou uloženy v databázi správce maximálně po dobu 10 let. Odvolání souhlasu s uložením a zpracováním poskytnutých dat lze e-mailem na info@vitio.cz. V případě podezření na neoprávněné použití Vámi poskytnutých údajů máte právo předat podnět k šetření Úřadu pro ochranu osobních údajů. Více informací
Chystáte se prodat nemovitost?
Pomůžeme Vám!

Inzerát si prohlédlo 0 lidí

Prodejce

Call Centrum CAPITAL Trust, a.s

Call Centrum CAPITAL Trust, a.s

Hlídací pes

Chcete dostávat emailem podobné nabídky pronájmu bytů 2+1 v Hradci Králové?

Podobné nemovitosti