Pronájem bytu 2+kk, Praha - Karlín, Rohanské nábřeží, 59 m2

Rohanské nábřeží, Praha, Karlín

35 500 Kč /za měsíc Získejte výhodnou HYPOTÉKU
Exkluzivní partneři v Praze 8

Stěhovací služby

Výkup a prodej starého nábytku

Informace k bytu

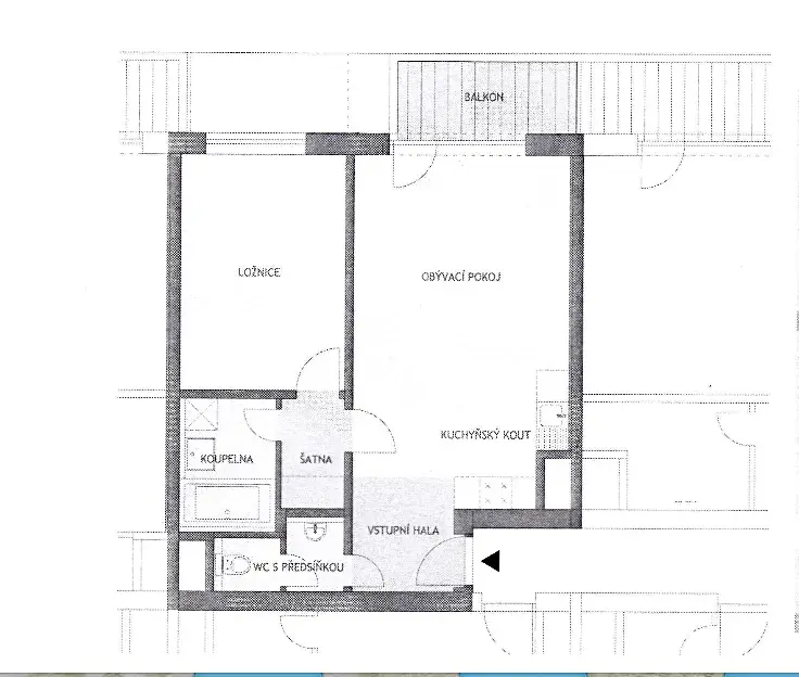
Nabízíme k pronájmu elegantní byt o dispozici 2+kk v jedné z nejvyhledávanějších rezidencí pražského Karlína, rezidence River Diamond.

Byt se pronajímá kompletně zařízený a je orientovaný do klidné, pečlivě upravené japonské zahrady, která vytváří naprosto výjimečnou atmosféru soukromí a klidu přímo v centru města. Součástí bytu je také balkon přístupný z obývací části. Prvek, který tyto byty činí dlouhodobě velmi žádanými.

Interiér nabízí obývací pokoj s plně vybavenou kuchyňskou linkou a přímým vstupem na balkon, samostatnou ložnici s manželskou postelí a velkou šatní skříní, koupelnu s vanou, samostatnou toaletu a samozřejmostí je také klimatizace pro maximální komfort.

K bytu náleží parkovací stání v podzemní garáži.

Byt je k dispozici od 15. 6. 2026.

Rezidence patří mezi nejprestižnější adresy v Karlíně a nabízí 24hodinovou recepci, bezpečnostní službu, soukromou japonskou zahradu pouze pro rezidenty a vysoký standard společných prostor. Důraz na architekturu, kvalitu provedení a bezpečí z ní dělá ideální volbu jak pro náročné nájemce, tak pro dlouhodobé bydlení.

Lokalita:

Karlín je jednou z nejdynamičtěji se rozvíjejících částí Prahy, která propojuje moderní městský život s přírodou. V bezprostředním okolí naleznete kompletní občanskou vybavenost, špičkové restaurace, kavárny i služby. Výborná dopravní dostupnost (stanice metra Křižíkova v docházkové vzdálenosti a přímé napojení na cyklostezku podél Vltavy zajišťují pohodlné spojení s centrem i aktivní životní styl).

Parametry bytu

Cena
35 500 Kč /za měsíc
Náklady na bydlení
8000
Aktualizováno
28. 4. 2026
Adresa
Rohanské nábřeží, Praha, Karlín
Stavba
Smíšená
Stav objektu
Velmi dobrý
Patro
4.
Vybaveno
Ano
Vlastnictví
Osobní
Užitná plocha
59 m2
Třída energetické náročnosti
B - Velmi úsporná
Zdroj topení
Centrální dálkové
Balkon
Garáž
Výtah
Bezbarierový přístup
Parkování

Kontaktovat makléře

Máte zájem o tento byt?

Tímto, v souladu s nařízením Evropského parlamentu a Rady (EU) 2016/679, v platném znění, prohlašuji, že mi je alespoň 16 let a uděluji tak svůj souhlas se zpracováním zadaných údajů (jméno, telefon, e-mail, ip adresa) společnosti B3 Technology, s.r.o., IČ: 07330600, se sídlem Novostavby 126/23, 435 11 Lom (správce dat), za účelem předání dotazu z tohoto formuláře Vámi vybranému inzerentovi a zpětného kontaktování mé osoby. Osobní údaje bude správce zpracovávat manuálně i automaticky přímo prostřednictvím svých zaměstnanců. Informace předané tímto formulářem budou uloženy v databázi správce maximálně po dobu 10 let. Odvolání souhlasu s uložením a zpracováním poskytnutých dat lze e-mailem na info@vitio.cz. V případě podezření na neoprávněné použití Vámi poskytnutých údajů máte právo předat podnět k šetření Úřadu pro ochranu osobních údajů. Více informací
Chystáte se prodat nemovitost?
Pomůžeme Vám!

Inzerát si prohlédlo 0 lidí

Prodejce

Mgr.Pavla Kadlecová

Mgr.Pavla Kadlecová

Hlídací pes

Chcete dostávat emailem podobné nabídky pronájmu bytů 2+kk v Praze 8?

Podobné nemovitosti