Pronájem bytu 2+kk, Praha - Háje, Loosova, 54 m2

Loosova, Praha, Háje

22 000 Kč /za měsíc Získejte výhodnou HYPOTÉKU

(zálohy na služby 4000,-Kč + 1000,-Kč elektřina, včetně garážového stání a sklepa)

Exkluzivní partneři v Praze 4

Stěhovací služby

Výkup a prodej starého nábytku

Informace k bytu

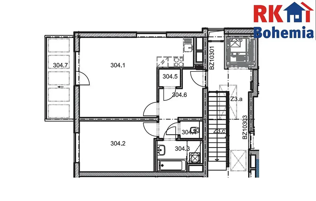
Exkluzivě - v zastoupení majitele zprostředkujeme možný dlouhodobý pronájem prostorného, světlého bytu 2kk o rozloze 52m2, + balkón 8m2, situovaný ve 3. nadzemním podlaží třípodlažní cihlové novostavby s výtahem ve vyhledávané lokalitě Milíčovský háj, nedaleko metra C - Háje, v Loosově ulici, Praha 4 - Háje.

Byt sestává z obývacího pokoje s kuchyňským koutem (25m2) se vstupem na prostorným balkón, a ložnice 13m2. Koupelny s vanou a samostatné toalety. K bytu garážové stání a sklep v ceně nájmu. Byt se pronajímá nezařízený.

Kuchyňský kout je vybavený moderní kuchyňskou linkou s vestavěnými spotřebiči, sklokeramická varná deska, elektrická trouba, mikrovlnná trouba, velká myčka nádobí a lednice s mrazákem.

Z obývacího pokoje lze vyjít na velmi prostorný balkon s pěkným výhledem do Milíčovského lesa. Ve vstupní chodbě šatní skříň.

Podlahy v bytě jsou plovoucí, v koupelně a předsíni dlažba. V bytě je zavedeno kabelové připojení internetu a televizi od společnosti Kabelservis.

Celý byt je velice světlý, a to díky velkým dřevěným oknům s trojsky na západ. Okna mají žaluzie a sítě proti hmyzu.

Energetická náročnost budovy podle PENB je ve třídě B.

Dům je má vlastní zahradu, hřiště a kout na grilování. Lze volně využívat.

Byt je umístěn v novostavbě z roku 2014. Dům se nachází ve výhodné a poptávané lokalitě s veškerou potřebnou občanskou vybaveností nedaleko jsou obchodní centrum Westfield, supermarkety, školky, školy, restaurace, kavárny, hřiště, obchody. Okolí skýtá spoustu možností trávení volného času, například v oblíbeném blízkém lese či v rekreačně sportovním areálu Hostivařské přehrady nebo Aquapalace v nedalekých Čestlicích.

Výborná dopravní obslužnost: MHD: 1 minutu pěšky od domu se nachází zastávka busu MHD a 8 minut pěšky je to na metro C - Háje. Vynikající je rovněž spojení autem, kterým se lze velmi snadno napojit na D1, Jižní spojku a jejím prostřednictvím na městský okruh a blízké výpadovky.

Parametry bytu

Cena
22 000 Kč /za měsíc
Poznámka k ceně
zálohy na služby 4000,-Kč + 1000,-Kč elektřina, včetně garážového stání a sklepa
Aktualizováno
25. 4. 2026
Adresa
Loosova, Praha, Háje
ID
137
Stavba
Cihlová
Stav objektu
Novostavba
Patro
3. z 3
Vybaveno
Ne
Vlastnictví
Osobní
Užitná plocha
54 m2
Podlahová plocha
54 m2
Třída energetické náročnosti
B - Velmi úsporná
Elektřina
230V
Odpad
Veřejná kanalizace
Topení
Ústřední dálkové
Komunikace
Asfaltová
Telekomunikace
Internet, Kabelová televize
Doprava
Dálnice, Silnice, MHD, Autobus
Voda
Vodovod
Topné těleso
Radiátory
Garáž
Sklep
Terasa
Bezbarierový přístup
Parkování

Kontaktovat makléře

Realitní kancelář

RK BOHEMIA s.r.o.

náměstí 14. října 1307/2, Praha

Chystáte se prodat nemovitost?
Pomůžeme Vám!

Máte zájem o tento byt?

Tímto, v souladu s nařízením Evropského parlamentu a Rady (EU) 2016/679, v platném znění, prohlašuji, že mi je alespoň 16 let a uděluji tak svůj souhlas se zpracováním zadaných údajů (jméno, telefon, e-mail, ip adresa) společnosti B3 Technology, s.r.o., IČ: 07330600, se sídlem Novostavby 126/23, 435 11 Lom (správce dat), za účelem předání dotazu z tohoto formuláře Vámi vybranému inzerentovi a zpětného kontaktování mé osoby. Osobní údaje bude správce zpracovávat manuálně i automaticky přímo prostřednictvím svých zaměstnanců. Informace předané tímto formulářem budou uloženy v databázi správce maximálně po dobu 10 let. Odvolání souhlasu s uložením a zpracováním poskytnutých dat lze e-mailem na info@vitio.cz. V případě podezření na neoprávněné použití Vámi poskytnutých údajů máte právo předat podnět k šetření Úřadu pro ochranu osobních údajů. Více informací
Chystáte se prodat nemovitost?
Pomůžeme Vám!

Inzerát si prohlédlo 0 lidí

Prodejce

Olga  Shejbalová

Olga Shejbalová

Hlídací pes

Chcete dostávat emailem podobné nabídky pronájmu bytů 2+kk v Praze 4?

Podobné nemovitosti