Pronájem bytu 3+kk, Pardubice - Zelené Předměstí, Pernerova, 65 m2

Pernerova, Pardubice, Zelené Předměstí

19 800 Kč /za měsíc Získejte výhodnou HYPOTÉKU
Exkluzivní partneři v Pardubicích

Informace k bytu

Pronájem bytu 3+kk Pernerova 2802

Centrum Pardubic, nízké náklady a parkování bez starostí – tohle je byt, který hledáte. Světlý 3+kk ve 3. patře moderního bytového domu s výtahem čeká na nové nájemníky. K dispozici ihned.

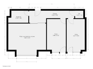
Tři samostatné neprůchozí pokoje přístupné z chodby dávají každému svůj prostor – ať už ho využijete jako ložnici, pracovnu nebo jako dětský pokoj. Koupelna nabízí sprchový kout i vanu, toaleta je samostatně. Je zde také místo pro úzkou pračku (45 cm). Kuchyň je vybavená indukční deskou, troubou, myčkou a digestoří. Vybavení v pokoji je možné podle dohody ponechat nebo odvézt – jinak si byt zařídíte přesně podle sebe. Součástí bytu je také sklepní koje pro uskladnění věcí a garážové parkovací místo v suterénu domu – parkování máte tedy vždy zajištěné.

V dosahu pěšky máte třídu Míru, Tyršovy sady i veškerou občanskou vybavenost.

Nájemné činí 19 800 Kč/měsíc a zahrnuje garážové parkovací místo.
Zálohy na služby jsou 2 570 Kč/měsíc (vodné a stočné 850 Kč, teplo 650 Kč, teplá voda 750 Kč, úklid 160 Kč, výtah 20 Kč, společná elektřina 140 Kč).
Elektřinu si nájemce přihlásí sám, počítat lze s částkou okolo 1 000 Kč měsíčně.
Vratná kauce činí 25 000 Kč, provize RK 19 800 Kč.

Projděte si prvně byt pomocí 3D prohlídky z pohodlí vašeho domova.

Parametry bytu

Cena
19 800 Kč /za měsíc
Aktualizováno
21. 4. 2026
Adresa
Pernerova, Pardubice, Zelené Předměstí
ID
280
Stavba
Cihlová
Vlastnictví
Osobní
Užitná plocha
65 m2
Třída energetické náročnosti
G - Mimořádně nehospodárná

Kontaktovat makléře

Máte zájem o tento byt?

Tímto, v souladu s nařízením Evropského parlamentu a Rady (EU) 2016/679, v platném znění, prohlašuji, že mi je alespoň 16 let a uděluji tak svůj souhlas se zpracováním zadaných údajů (jméno, telefon, e-mail, ip adresa) společnosti B3 Technology, s.r.o., IČ: 07330600, se sídlem Novostavby 126/23, 435 11 Lom (správce dat), za účelem předání dotazu z tohoto formuláře Vámi vybranému inzerentovi a zpětného kontaktování mé osoby. Osobní údaje bude správce zpracovávat manuálně i automaticky přímo prostřednictvím svých zaměstnanců. Informace předané tímto formulářem budou uloženy v databázi správce maximálně po dobu 10 let. Odvolání souhlasu s uložením a zpracováním poskytnutých dat lze e-mailem na info@vitio.cz. V případě podezření na neoprávněné použití Vámi poskytnutých údajů máte právo předat podnět k šetření Úřadu pro ochranu osobních údajů. Více informací
Chystáte se prodat nemovitost?
Pomůžeme Vám!

Inzerát si prohlédlo 0 lidí

Prodejce

Ing. Jan Jírek

Ing. Jan Jírek

Hlídací pes

Chcete dostávat emailem podobné nabídky pronájmu bytů 3+kk v Pardubicích?

Podobné nemovitosti