Remax Power 2

Prodej rodinného domu, Bohutín, 112 m2 (ID: 2648250)

Bohutín, Vysoká Pec

11 990 000 Kč /za nemovitost HYPOTÉKA od 53 588 Kč /za měsíc
Exkluzivní partneři v Bohutíně

Revize elektrických zařízení

Informace k domu

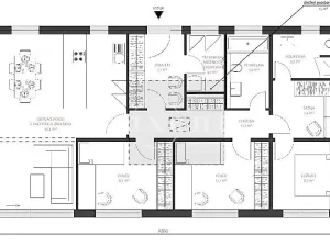
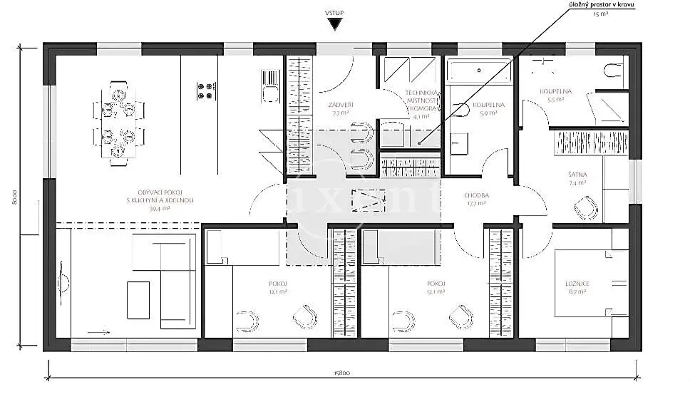
Nabízíme k prodeji samostatně stojící rodinný dům typu bungalov v klidné lokalitě Vysoká Pec u Bohutína, v okrese Příbram.

Dům o dispozici 4+kk a užitné ploše 112 m² nabízí prakticky řešený a vzdušný interiér s důrazem na komfort rodinného bydlení. Hlavní obytný prostor je propojen s kuchyňským koutem a umožňuje přímý vstup na zahradu o celkové výměře 948 m², která poskytuje dostatek soukromí i prostoru pro relaxaci, rodinné aktivity nebo další úpravy dle vlastních představ.

Nemovitost je dokončena v základním standardu, přičemž součástí jsou hotové podlahy, koupelny, kuchyňská linka i venkovní žaluzie, což umožňuje okamžité užívání s možností doladění detailů podle individuálních preferencí nového majitele. O moderní a úsporný provoz domu se stará tepelné čerpadlo v kombinaci s rekuperací, které zajišťují nízké provozní náklady a zároveň zdravé a komfortní vnitřní prostředí po celý rok.

Lokalita Vysoká Pec u Bohutína nabízí příjemné bydlení na okraji brdských lesů, ideální pro ty, kteří hledají klid a blízkost přírody, aniž by se museli vzdát dostupnosti městské infrastruktury. V nedaleké Příbrami je k dispozici kompletní občanská vybavenost včetně škol, školek, obchodů, zdravotnických zařízení i sportovního vyžití. Dopravní spojení je zajištěno autobusovou dopravou, přičemž cesta do Prahy trvá přibližně 50 minut.

Tato nemovitost představuje atraktivní volbu pro rodinné bydlení i pro zájemce hledající klidnější alternativu k městskému životu.

Pro více informací nebo domluvení osobní prohlídky nás neváhejte kontaktovat.

Parametry domu

Cena
11 990 000 Kč /za nemovitost Spočítat hypotéku
Aktualizováno
21. 4. 2026
Adresa
Bohutín, Vysoká Pec
ID
N7953
Stavba
Dřevěná
Stav objektu
Novostavba
Vybaveno
Částečně
Druh objektu
Samostatný
Užitná plocha
112 m2
Plocha pozemku
948 m2
Třída energetické náročnosti
G - Mimořádně nehospodárná

Kontaktovat makléře

Máte zájem o tento dům?

Tímto, v souladu s nařízením Evropského parlamentu a Rady (EU) 2016/679, v platném znění, prohlašuji, že mi je alespoň 16 let a uděluji tak svůj souhlas se zpracováním zadaných údajů (jméno, telefon, e-mail, ip adresa) společnosti B3 Technology, s.r.o., IČ: 07330600, se sídlem Novostavby 126/23, 435 11 Lom (správce dat), za účelem předání dotazu z tohoto formuláře Vámi vybranému inzerentovi a zpětného kontaktování mé osoby. Osobní údaje bude správce zpracovávat manuálně i automaticky přímo prostřednictvím svých zaměstnanců. Informace předané tímto formulářem budou uloženy v databázi správce maximálně po dobu 10 let. Odvolání souhlasu s uložením a zpracováním poskytnutých dat lze e-mailem na info@vitio.cz. V případě podezření na neoprávněné použití Vámi poskytnutých údajů máte právo předat podnět k šetření Úřadu pro ochranu osobních údajů. Více informací
Chystáte se prodat nemovitost?
Pomůžeme Vám!

Inzerát si prohlédlo 1 lidí

Prodejce

Martina Malířová

Martina Malířová

Hlídací pes

Chcete dostávat emailem podobné nabídky prodeje rodinných domů v Bohutíně (okr. Příbram)?

Top nabídky

Podobné nemovitosti