Prodej ubytování, Teplice nad Metují - Zdoňov, 265 m2 (ID: 2643486)

Teplice nad Metují, Zdoňov

8 450 000 Kč /za nemovitost HYPOTÉKA od 37 766 Kč /za měsíc
Exkluzivní partneři v Teplicích nad Metují

Informace k nemovitosti

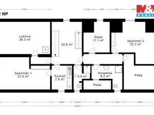
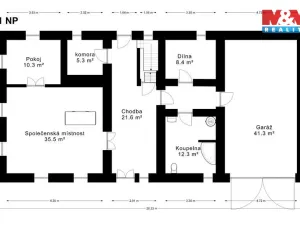
Prodej penzionu, 265 m², Zdoňov

Nabízíme k prodeji penzion v malebném prostředí Adršpašsko-teplických skal v obci Zdoňov, pouhé 3 km od vstupu do Adršpašských skal. Nemovitost má velký potenciál pro vlastní rekreaci i jako výnosná investice a dlouhodobě generuje stabilní zisk z ubytování. Penzion nabízí dva vybavené čtyřlůžkové apartmány, a další ložnice s celkovou kapacitou více jak 20 lůžek. K dispozici jsou tři koupelny, společenská místnost, venku pak posezení s udírnou a velká zahrada. Výměra parcely je 3631 m². Součástí je garáž, sklep a kůlna. Na pozemku je vlastní studna a dům je zároveň připojen na vodovod. Místo nabízí jedinečnou atmosféru, čistou přírodu a celoroční turistický ruch, což z této nemovitosti dělá skvělou příležitost pro podnikání i pohodový život v jedné z nejkrásnějších částí Česka. Kontaktujte nás pro více informací a domluvení prohlídky.

Parametry nemovitosti

Cena
8 450 000 Kč /za nemovitost Spočítat hypotéku
Aktualizováno
15. 4. 2026
Adresa
Teplice nad Metují, Zdoňov
ID
936478
Stavba
Smíšená
Stav objektu
Velmi dobrý
Vybaveno
Ano
Lokalita objektu
Klidná část obce
Vlastnictví
Osobní
Užitná plocha
265 m2
Plocha pozemku
3631 m2

Kontaktovat makléře

Realitní kancelář

Logo M&M reality

M&M reality

ulice Krakovská 583/9, Praha

Chystáte se prodat nemovitost?
Pomůžeme Vám!

Máte zájem o tuto nemovistost?

Tímto, v souladu s nařízením Evropského parlamentu a Rady (EU) 2016/679, v platném znění, prohlašuji, že mi je alespoň 16 let a uděluji tak svůj souhlas se zpracováním zadaných údajů (jméno, telefon, e-mail, ip adresa) společnosti B3 Technology, s.r.o., IČ: 07330600, se sídlem Novostavby 126/23, 435 11 Lom (správce dat), za účelem předání dotazu z tohoto formuláře Vámi vybranému inzerentovi a zpětného kontaktování mé osoby. Osobní údaje bude správce zpracovávat manuálně i automaticky přímo prostřednictvím svých zaměstnanců. Informace předané tímto formulářem budou uloženy v databázi správce maximálně po dobu 10 let. Odvolání souhlasu s uložením a zpracováním poskytnutých dat lze e-mailem na info@vitio.cz. V případě podezření na neoprávněné použití Vámi poskytnutých údajů máte právo předat podnět k šetření Úřadu pro ochranu osobních údajů. Více informací
Chystáte se prodat nemovitost?
Pomůžeme Vám!

Inzerát si prohlédlo 0 lidí

Prodejce

Jarmila Ciprová

Jarmila Ciprová

Hlídací pes

Chcete dostávat emailem podobné nabídky prodeje ubytování v Teplicích nad Metují?

Podobné nemovitosti