Pronájem bytu 2+kk, Praha - Karlín, Pernerova, 44 m2

Pernerova, Praha, Karlín

23 000 Kč /za měsíc Získejte výhodnou HYPOTÉKU

(+ 3.000,-Kč/měs. poplatky, vratná kauce 1.nájem, provize rk 1.nájem)

Exkluzivní partneři v Praze 8

Stěhovací služby

Výkup a prodej starého nábytku

Informace k bytu

Nabízíme pronájem zrekonstruovaného bytu o dispozici 2+kk (1+1) v udržovaném menším činžovním domě ve špičkové lokalitě Karlína v Pernerově ulici na Praze 8.

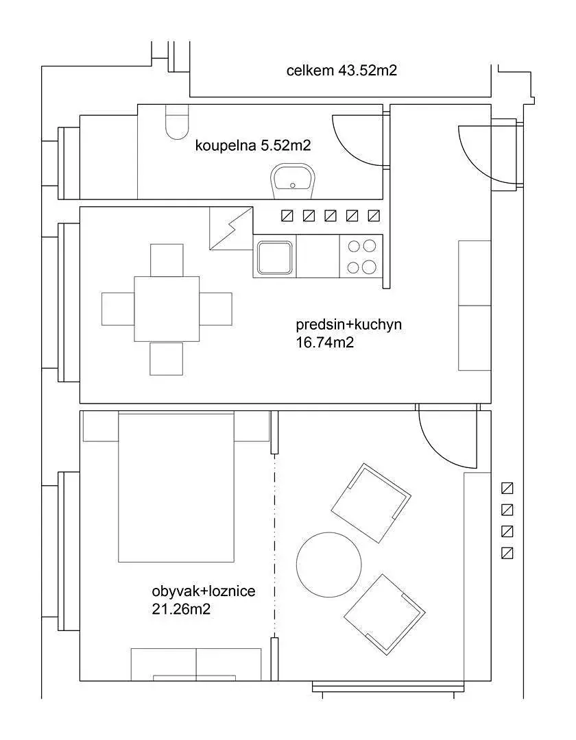
Byt je situován ve třetím patře ze čtyř bez výtahu. Podlahová plocha je 44 m2. K příslušenství patří sklep o vel. 4 m2 v suterénu domu. Celková kompletní rekonstrukce proběhla v roce 2018. Dům je na klidném místě u Lyčkova náměstí a v rámci pronájmu je možné užívat společnou zahradu kolem domu.

Dispozice bytu: Vstupní chodba s kuchyní (17 m2), dále samostatný pokoj s možností rozdělení na obývací a ložnicovou část (21 m2), koupelna se sprchou a wc (5,5 m2).

Vytápění a ohřev vody zajišťuje vlastní nový plynový kotel. Okna v bytě jsou dřevěná, v koupelně a na chodbě je podlahovou krytinou dlažba, v pokojích jsou repasované a nalakované parkety. V domě dostupnost Vodafone/UPC internetu.

Byt je k dispozici od 15.5.2026 a je určen k dlouhodobému pronájmu. V okolí se nachází několik příjemných kaváren a restaurací, pěší dostupnost na metro C Křižíkova. Občanská vybavenost je zde kompletní a celkově je Karlín výborným místem k bydlení.

Parametry bytu

Cena
23 000 Kč /za měsíc
Poznámka k ceně
+ 3.000,-Kč/měs. poplatky, vratná kauce 1.nájem, provize rk 1.nájem
Aktualizováno
14. 4. 2026
Adresa
Pernerova, Praha, Karlín
ID
N06023
Stavba
Smíšená
Stav objektu
Velmi dobrý
Patro
4. z 4
Vybaveno
Ne
Vlastnictví
Družstevní
Užitná plocha
44 m2
Podlahová plocha
44 m2
Třída energetické náročnosti
C - Úsporná
Ukazatel energetické náročnosti
108 kWh/m2 za rok
Výtah

Kontaktovat makléře

Máte zájem o tento byt?

Tímto, v souladu s nařízením Evropského parlamentu a Rady (EU) 2016/679, v platném znění, prohlašuji, že mi je alespoň 16 let a uděluji tak svůj souhlas se zpracováním zadaných údajů (jméno, telefon, e-mail, ip adresa) společnosti B3 Technology, s.r.o., IČ: 07330600, se sídlem Novostavby 126/23, 435 11 Lom (správce dat), za účelem předání dotazu z tohoto formuláře Vámi vybranému inzerentovi a zpětného kontaktování mé osoby. Osobní údaje bude správce zpracovávat manuálně i automaticky přímo prostřednictvím svých zaměstnanců. Informace předané tímto formulářem budou uloženy v databázi správce maximálně po dobu 10 let. Odvolání souhlasu s uložením a zpracováním poskytnutých dat lze e-mailem na info@vitio.cz. V případě podezření na neoprávněné použití Vámi poskytnutých údajů máte právo předat podnět k šetření Úřadu pro ochranu osobních údajů. Více informací
Chystáte se prodat nemovitost?
Pomůžeme Vám!

Inzerát si prohlédlo 0 lidí

Prodejce

Patrik Kubeš

Patrik Kubeš

Hlídací pes

Chcete dostávat emailem podobné nabídky pronájmu bytů 2+kk v Praze 8?

Podobné nemovitosti