Prodej vily, Králův Dvůr, Na Vinohradech, 140 m2

Na Vinohradech, Králův Dvůr, Křižatky

19 750 000 Kč /za nemovitost HYPOTÉKA od 88 271 Kč /za měsíc

(včetně provize, poplatků a právního servisu)

Exkluzivní partneři v Královu Dvoru

Pojištění a finance

Informace k domu

SNÍŽENÍ CENY
PRODEJ MODERNÍHO A ELEGANTNÍHO BUNGALOVU 4+kk S PROSTORNOU TERASOU, BAZÉNEM A 2 GARÁŽEMI - KRÁLŮV DVŮR, KŘIŽATKY

Toužíte po bydlení, které spojuje eleganci, soukromí a jedinečný kontakt s přírodou?
Představuji Vám výjimečný, moderní bungalov z roku 2019, situovaný v klidné, slepé ulici nové rezidenční zástavby - Králův Dvůr, Křižatky. ul. Na Vinohradech na pozemku 663 m2.

Tato nemovitost nabízí to, co je dnes skutečně vzácné - otevřený prostor, dostatek světla, soukromí a ničím nerušené výhledy do krajiny.

DOMINANTOU DOMU je vzdušný obývací prostor s designovou kuchyní, který plynule navazuje na velkorysou terasu (cca 40 m2) orientovanou na jihovýchod. Každý den zde můžete začínat s výhledem do zeleně a v naprostém klidu.

EXTERIÉR je navržen pro maximální komfort i relaxaci - najdete zde bazén, kryté venkovní posezení, plně vybavenou venkovní kuchyni i zázemí pro společenské chvíle s rodinou a přáteli. Díky svažitému pozemku máte zajištěn trvalý výhled do krajiny směrem na Koněpruské jeskyně, bez rizika další výstavby.

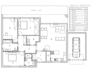
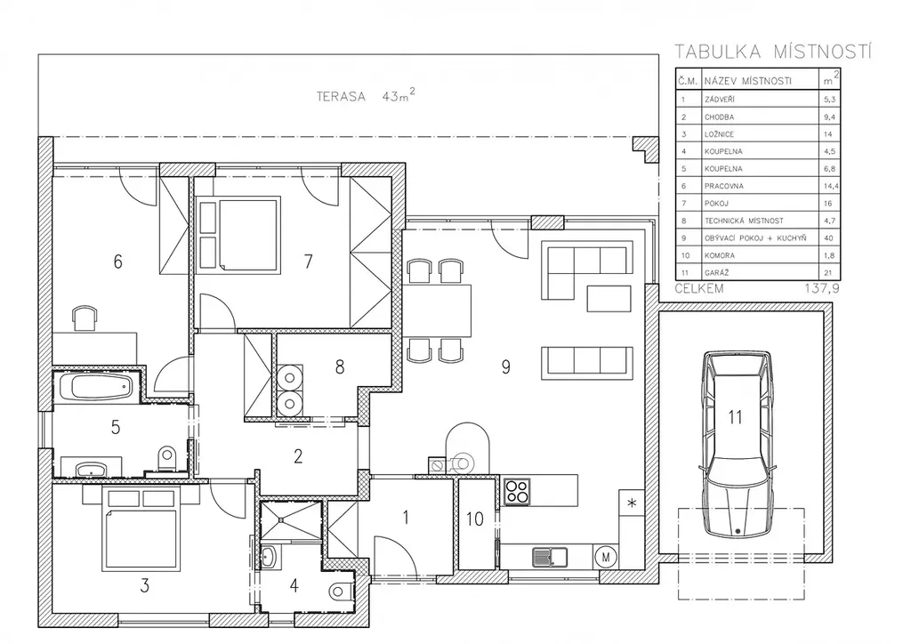
DISPOZICE DOMU 4+kk je promyšlená do posledního detailu: (VIZ. PŮDORYS)
- podlahová plocha cca 120 m2, užitná plocha s terasou cca 140 m2 + 2 garáže a prostor pod terasou
- vstupní chodba/zádveří
- prostorný obývací pokoj s designovou kuchyňskou linkou a komorou
- hlavní ložnice s vlastní koupelnou
- další dva pokoje s přímým vstupem na terasu
- druhá koupelna s WC
- technická místnost

Cena domu zahrnuje i většinu vybavení, nábytek dle dohody.

DŮRAZ NA KVALITU A CHYTRÉ TECHNOLOGIE:
- moderní stavební systém Pasifbrick
- kvalitně zateplená rovná střecha
- elektrický - dálkově ovladatelný zámek
- dům je napojen na elektřinu, vodovod a kanalizaci
- elektrický kotel s podlahovým vytápěním + krbová kamna
- plastová okna s trojskly
- kvalitní interiérové dveře, většina pouzdrových
- kvalitní podlahy
- zabezpečovací a kamerový systém
- nová filtrace a ohřev bazénu
- energetická třída C (měsíční náklady cca 10.500 Kč)

Komfort parkování zajišťují dvě garáže a další 2 parkovací místa na pozemku.

Lokalita je ideální pro ty, kteří hledají klidné rodinné bydlení s výbornou dostupností - Beroun 9 km, Praha 30 km. V docházkové vzdálenosti je dětské a sportovní hřiště i MHD.

Financování hypotečním úvěrem je samozřejmostí, rádi Vám zajistíme individuální podmínky.

Tento dům není jen nemovitost. Je to životní styl.
Zvu Vás na osobní prohlídku.

V případě rychlého jednání další jednání o ceně nevylučujeme.
Pozn. rozměry jsou orientační.

Parametry domu

Cena
19 750 000 Kč /za nemovitost Spočítat hypotéku
Poznámka k ceně
včetně provize, poplatků a právního servisu
Aktualizováno
4. 5. 2026
Adresa
Na Vinohradech, Králův Dvůr, Křižatky
ID
535
Stavba
Cihlová
Stav objektu
Novostavba
Vybaveno
Ano
Druh objektu
Samostatný
Užitná plocha
140 m2
Zastavěná plocha
216 m2
Podlahová plocha
200 m2
Plocha pozemku
663 m2
Třída energetické náročnosti
C - Úsporná
Elektřina
230V
Odpad
Veřejná kanalizace
Topení
Lokální elektrické
Komunikace
Asfaltová
Doprava
Dálnice, Silnice, MHD, Autobus
Voda
Vodovod
Topné těleso
Podlahové vytápění, Krbová kamna
Zdroj topení
Elektrokotel
Garáž
Bezbarierový přístup
Parkování
Bazén

Kontaktovat makléře

Máte zájem o tento dům?

Tímto, v souladu s nařízením Evropského parlamentu a Rady (EU) 2016/679, v platném znění, prohlašuji, že mi je alespoň 16 let a uděluji tak svůj souhlas se zpracováním zadaných údajů (jméno, telefon, e-mail, ip adresa) společnosti B3 Technology, s.r.o., IČ: 07330600, se sídlem Novostavby 126/23, 435 11 Lom (správce dat), za účelem předání dotazu z tohoto formuláře Vámi vybranému inzerentovi a zpětného kontaktování mé osoby. Osobní údaje bude správce zpracovávat manuálně i automaticky přímo prostřednictvím svých zaměstnanců. Informace předané tímto formulářem budou uloženy v databázi správce maximálně po dobu 10 let. Odvolání souhlasu s uložením a zpracováním poskytnutých dat lze e-mailem na info@vitio.cz. V případě podezření na neoprávněné použití Vámi poskytnutých údajů máte právo předat podnět k šetření Úřadu pro ochranu osobních údajů. Více informací
Chystáte se prodat nemovitost?
Pomůžeme Vám!
Theleadway banner

Inzerát si prohlédlo 3 lidí

Prodejce

Zábranská Pavlína

Zábranská Pavlína

Hlídací pes

Chcete dostávat emailem podobné nabídky prodeje vil v Královu Dvoru?

Podobné nemovitosti