Soccer reality

Prodej vily, Brandýs nad Labem-Stará Boleslav, Vestecká, 382 m2

Vestecká, Brandýs nad Labem-Stará Boleslav

69 990 000 Kč /za nemovitost HYPOTÉKA od 312 813 Kč /za měsíc
Exkluzivní partneři v Brandýse nad Labem

Pojištění a finance

Informace k domu

Vila Sanssouci je výjimečné rezidenční sídlo, které v sobě spojuje noblesu přelomu 19. a 20. století, absolutní soukromí a velkorysý prostor. Celý areál tvoří hlavní vila a samostatný vedlejší objekt. Stavby jsou zasazené do pečlivě udržované parkové zahrady o rozloze přibližně 8 500 m², která vytváří atmosféru klidu a nadčasové elegance.


Hlavní vila s užitnou plochou 382 m² a obytnou půdou o velikosti 100 m² byla postavena v neoklasicistním stylu a dodnes si zachovala harmonické proporce, symetrii i cenné architektonické detaily. V letech 2004–2006 prošla kompletní restaurátorskou rekonstrukcí, provedenou s maximálním respektem k původnímu charakteru stavby. Obnoveny byly původní dřevěné obklady, štuky, podlahy i kamenické prvky, díky čemuž vila dnes nabízí autentický historický výraz v kombinaci s komfortem moderního bydlení.


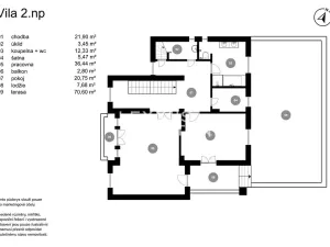
V přízemí domu se nachází reprezentativní vstupní hala, kuchyň, jídelna s falešným krbem, obývací pokoj s krbem a přímým výstupem na terasu, dále pánský pokoj s vestavěnou knihovnou a samostatný pokoj s vlastní koupelnou a vstupem ze zahrady. Patro slouží jako klidová část vily a zahrnuje dva pokoje se vstupem na terasu a lodžii, šatnu, velkou koupelnu a prádelnu.

Podkroví tvoří otevřený obytný prostor s viditelnými krovy a plnohodnotnou technickou místností.

Suterén je věnován relaxaci a technickému provozu domu s wellness zónou, skladovacími prostory a přímým výstupem do zahrady.


Hlavní vila je orientována do rozlehlé parkové zahrady, která tvoří přirozenou vizuální i kompoziční osu celé nemovitosti. Promyšlená parková úprava zahrnuje jezírka, kašnu, vzrostlé stromy, okrasné keře i historické anglické růže a vytváří harmonické prostředí s charakterem soukromého parku. Zahrada funguje jako samostatný ekosystém s výjimečným klidem a vysokou mírou soukromí. Zároveň je přirozeným prodloužením obytných prostor domu a nabízí velkorysý pocit prostoru.


Dům je doplněn o moderní technologie, které zajišťují komfortní a efektivní provoz. Vila je vybavena plynovým kotlem, krbem s výměníkem řízeným elektronikou, centrálním vysavačem a kompletním technickým zázemím. V interiéru se nachází vestavěný nábytek na míru, jako je vestavěná knihovna a plně vybavená kuchyň. Suterén je řešen jako privátní wellness s bazénem s protiproudem, infrasaunou, sprchou, samostatným WC, vzduchotechnikou a přímým vstupem na dřevěný deck do zahrady.


Exteriér doplňuje funkční infrastruktura zahrady, která využívá studnu o hloubce cca 40 m a centrální závlahový systém HUNTER, pokrývající celý pozemek. Zahrada tak kombinací vody, stromů a vegetace vytváří vlastní mikroklima s velmi nízkými provozními náklady.


Vila se nachází v klidné rezidenční části Brandýsa nad Labem – Staré Boleslavi, v lokalitě se stabilní zástavbou a přímým kontaktem s přírodou. Rozsáhlá parková zahrada vytváří přirozený odstup od okolí a zajišťuje vysokou míru soukromí, reprezentativní charakter nemovitosti a nerušené výhledy do zeleně. Celek působí uzavřeně a kultivovaně a poskytuje zázemí odpovídající nárokům na prestižní rezidenční bydlení i reprezentativní sídlo společnosti.


Lokalita kombinuje klidné prostředí s velmi dobrou dopravní dostupností. Centrum Brandýsa nad Labem je dosažitelné během několika minut a nabízí kompletní občanskou vybavenost, zatímco Praha je vzdálena přibližně 35 minut jízdy vozem. Umístění je ideální pro společnosti hledající reprezentativní sídlo mimo městský ruch, rezidenci pro vrcholový management nebo objekt pro firemní využití, kde je kladen důraz na soukromí, klid a dlouhodobou hodnotu.

Parametry domu

Cena
69 990 000 Kč /za nemovitost Spočítat hypotéku
Aktualizováno
14. 4. 2026
Adresa
Vestecká, Brandýs nad Labem-Stará Boleslav
ID
533466
Stavba
Cihlová
Stav objektu
Velmi dobrý
Vybaveno
Částečně
Užitná plocha
382 m2
Plocha pozemku
8500 m2
Plocha zahrady
8000 m2
Třída energetické náročnosti
G - Mimořádně nehospodárná
Garáž
Výtah
Parkování
Bazén

Kontaktovat makléře

Máte zájem o tento dům?

Tímto, v souladu s nařízením Evropského parlamentu a Rady (EU) 2016/679, v platném znění, prohlašuji, že mi je alespoň 16 let a uděluji tak svůj souhlas se zpracováním zadaných údajů (jméno, telefon, e-mail, ip adresa) společnosti B3 Technology, s.r.o., IČ: 07330600, se sídlem Novostavby 126/23, 435 11 Lom (správce dat), za účelem předání dotazu z tohoto formuláře Vámi vybranému inzerentovi a zpětného kontaktování mé osoby. Osobní údaje bude správce zpracovávat manuálně i automaticky přímo prostřednictvím svých zaměstnanců. Informace předané tímto formulářem budou uloženy v databázi správce maximálně po dobu 10 let. Odvolání souhlasu s uložením a zpracováním poskytnutých dat lze e-mailem na info@vitio.cz. V případě podezření na neoprávněné použití Vámi poskytnutých údajů máte právo předat podnět k šetření Úřadu pro ochranu osobních údajů. Více informací
Chystáte se prodat nemovitost?
Pomůžeme Vám!
Theleadway banner

Inzerát si prohlédlo 4 lidí

Prodejce

Adéla Bukovská - recepce

Adéla Bukovská - recepce

Hlídací pes

Chcete dostávat emailem podobné nabídky prodeje vil v Brandýse nad Labem?

Podobné nemovitosti