Prodej rodinného domu, Pašinka, 153 m2

Pašinka

8 700 000 Kč /za nemovitost HYPOTÉKA od 38 884 Kč /za měsíc

(včetně provize, včetně právního servisu)

Exkluzivní partneři v Pašince

Pojištění a finance

Informace k domu

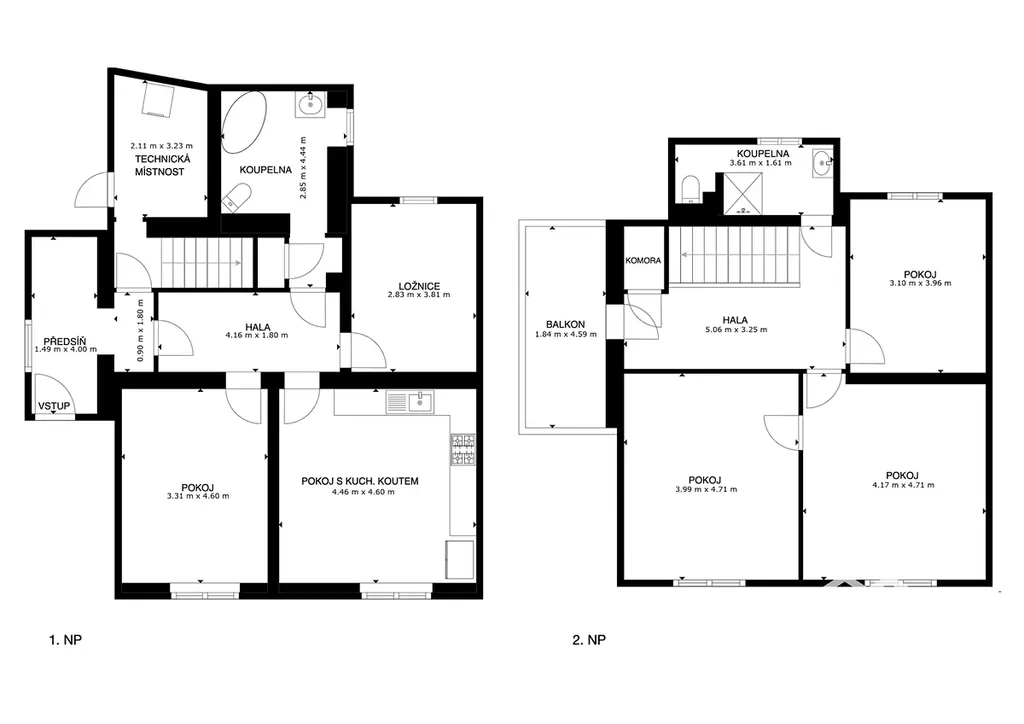
Nabízíme Vám ke koupi prostorný rodinný dům v klidné části obce Pašinka, okres Kolín ve Středočeském kraji. Leží asi čtyři kilometry jihozápadně od Kolína, kde je veškerá občanská vybavenost. Dům má celkem dvě nadzemní podlaží: přízemí a první patro. Dispozice v přízemí domu: předsíň, hala, tři samostatné pokoje s kuchyní, pokoje jsou neprůchozí, prostorná koupelna s vanou, dohromady s toaletou, technická místnost. Dispozice prvního patra: hala, celkem tři pokoje, v jednom pokoji vše připraveno na kuchyňský kout. Dále koupelna se sprchovým koutem, dohromady s toaletou, komora - úložný prostor, z kterého se vchází do půdního prostoru, (Připravené k půdní vestavbě). V roce 2025 se dělalo zateplení pěnou 40 cm, také výměna střešní krytiny + fotovoltaika, na ohřev vody (celkem pět panelů) a balkón. Obě dvě bytové jednotky mají samostatný vchod s dispozicí 3kk, vlastní zdroj vytápění, samostatný elektroměr, vodoměr je společný. Tento dům prošel průběžně rekonstrukcí. Nabízí se tedy možnost investice a následného pronájmu, nebo společného bydlení, pro dvě generace a přitom bude mít každá své soukromí. Popřípadě je dům vhodný pro větší rodinu. (Bytové jednotky jsou mezi sebou odděleny průchozí chodbou, kde jsou dveře). Do domu je přivedena obecní voda a kanalizace. Náleží k němu sklep, garáž a parkovat lze také přímo před domem, dvě auta. V prezentaci je k dispozice půdorys domu a také virtuální prohlídka domu. Veškerá občanská vybavenost v blízkém Kolíně, zastávka MHD téměř u domu.
Přímo v obci Pašinka se nachází restaurace, obecní knihovna, zámek, obchod.
Průkaz energetické náročnosti budovy prozatím není vyhotoven, proto uvádíme dle zákona třídu G

Pro více informací či domluvení prohlídky mě neváhejte kontaktovat.
Budu se těšit na setkání s Vámi.

Parametry domu

Cena
8 700 000 Kč /za nemovitost Spočítat hypotéku
Poznámka k ceně
včetně provize, včetně právního servisu
Aktualizováno
28. 4. 2026
Adresa
Pašinka
ID
00224
Stavba
Cihlová
Stav objektu
Velmi dobrý
Vybaveno
Ano
Druh objektu
Rohový
Lokalita objektu
Klidná část obce
Užitná plocha
153 m2
Plocha pozemku
272 m2
Třída energetické náročnosti
G - Mimořádně nehospodárná
Elektřina
400V
Odpad
Veřejná kanalizace
Telekomunikace
Internet, Kabelová televize
Doprava
Silnice, Autobus
Voda
Vodovod
Topné těleso
Radiátory
Zdroj topení
Elektrokotel
Zdroj teplé vody
Bojler - elektro
Garáž
Sklep
Výtah
Parkování

Kontaktovat makléře

Realitní kancelář

TOP MAKLÉŘKY

Politických vězňů 42, Kolín

Chystáte se prodat nemovitost?
Pomůžeme Vám!

Máte zájem o tento dům?

Tímto, v souladu s nařízením Evropského parlamentu a Rady (EU) 2016/679, v platném znění, prohlašuji, že mi je alespoň 16 let a uděluji tak svůj souhlas se zpracováním zadaných údajů (jméno, telefon, e-mail, ip adresa) společnosti B3 Technology, s.r.o., IČ: 07330600, se sídlem Novostavby 126/23, 435 11 Lom (správce dat), za účelem předání dotazu z tohoto formuláře Vámi vybranému inzerentovi a zpětného kontaktování mé osoby. Osobní údaje bude správce zpracovávat manuálně i automaticky přímo prostřednictvím svých zaměstnanců. Informace předané tímto formulářem budou uloženy v databázi správce maximálně po dobu 10 let. Odvolání souhlasu s uložením a zpracováním poskytnutých dat lze e-mailem na info@vitio.cz. V případě podezření na neoprávněné použití Vámi poskytnutých údajů máte právo předat podnět k šetření Úřadu pro ochranu osobních údajů. Více informací
Chystáte se prodat nemovitost?
Pomůžeme Vám!
Theleadway banner

Inzerát si prohlédlo 5 lidí

Prodejce

Monika Vlčková

Monika Vlčková

Hlídací pes

Chcete dostávat emailem podobné nabídky prodeje rodinných domů v Pašince?

Podobné nemovitosti