Pronájem bytu 2+kk, Praha - Hostivař, Rižská, 57 m2 (ID: 2621620)

Rižská, Praha, Hostivař

22 000 Kč /za měsíc Získejte výhodnou HYPOTÉKU

(+ popl. cca 5000,-Kč, ele. energie na nájemce)

Exkluzivní partneři v Praze 10

Stěhovací služby

Výkup a prodej starého nábytku

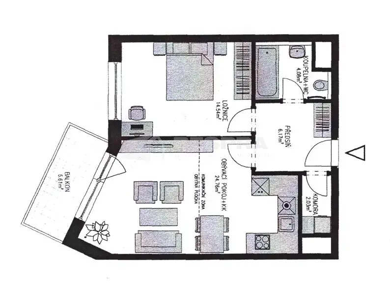
Informace k bytu

Novostavba, projekt moderního bydlení Slunečný vršek. 2+kk/57m2, balkón, komora,sklep, garáž.parkování, Praha 10 - Hostivař, ul. Rižská. Ve 4. patře cihlové (zateplené) novostavby, s výtahem a podzemní garáží. Vstupní chodba, koupelna s vanou, wc. Velmi světlý obývací pokoj s balkónem, kuchyňským koutem/kuch. linka, varná deska, ele. trouba, dřez, digestoř. Samostatná ložnice. Na podlaze plovoucí podlaha, dlažba. Tv a internet v domě. Parkovací místo v podzemní garáži. Klidná lokalita s okolní zelení (Hostivařský lesopark a přehrada - vodní nádrž), dobrá dopravní dostupnost ( metro C Opatov cca 5 minut a na stanici metra A Skalka cca 10 min MHD) s veškerou občanskou vybaveností. Volný ihned. Volejte.

Parametry bytu

Cena
22 000 Kč /za měsíc
Poznámka k ceně
+ popl. cca 5000,-Kč, ele. energie na nájemce
Aktualizováno
27. 3. 2026
Adresa
Rižská, Praha, Hostivař
ID
556
Stavba
Cihlová
Stav objektu
Novostavba
Patro
4. z 6
Vybaveno
Ano
Lokalita objektu
Klidná část obce
Vlastnictví
Osobní
Užitná plocha
57 m2
Podlahová plocha
57 m2
Třída energetické náročnosti
B - Velmi úsporná
Elektřina
230V, 400V
Odpad
Veřejná kanalizace
Topení
Ústřední dálkové
Telekomunikace
Telefon, Internet
Doprava
Vlak, Dálnice, MHD, Autobus
Voda
Vodovod
Balkon
Garáž
Sklep
Výtah
Parkování

Kontaktovat makléře

Realitní kancelář

RESPRA.CZ, s.r.o.

Vlkova 811/33, Praha, Žižkov

Chystáte se prodat nemovitost?
Pomůžeme Vám!

Máte zájem o tento byt?

Tímto, v souladu s nařízením Evropského parlamentu a Rady (EU) 2016/679, v platném znění, prohlašuji, že mi je alespoň 16 let a uděluji tak svůj souhlas se zpracováním zadaných údajů (jméno, telefon, e-mail, ip adresa) společnosti B3 Technology, s.r.o., IČ: 07330600, se sídlem Novostavby 126/23, 435 11 Lom (správce dat), za účelem předání dotazu z tohoto formuláře Vámi vybranému inzerentovi a zpětného kontaktování mé osoby. Osobní údaje bude správce zpracovávat manuálně i automaticky přímo prostřednictvím svých zaměstnanců. Informace předané tímto formulářem budou uloženy v databázi správce maximálně po dobu 10 let. Odvolání souhlasu s uložením a zpracováním poskytnutých dat lze e-mailem na info@vitio.cz. V případě podezření na neoprávněné použití Vámi poskytnutých údajů máte právo předat podnět k šetření Úřadu pro ochranu osobních údajů. Více informací
Chystáte se prodat nemovitost?
Pomůžeme Vám!

Inzerát si prohlédlo 1 lidí

Prodejce

Lukáš  Novotný

Lukáš Novotný

Hlídací pes

Chcete dostávat emailem podobné nabídky pronájmu bytů 2+kk v Praze 10?

Podobné nemovitosti