Prodej ubytování, Kunovice, Lidická, 743 m2

Lidická, Kunovice

7 000 000 Kč /za nemovitost HYPOTÉKA od 31 286 Kč /za měsíc

(Konečná cena včetně právního servisu a provize RK.)

Exkluzivní partneři v Kunovicích

Informace k nemovitosti

Výstavba PENZIONU KUNOVICE - STAVEBNÍ POVOLENÍ V RUCE
Okamžitý start - 14 ubytovacích jednotek - 743 m and sup2; užitné plochy

PŘIPRAVENÝ INVESTIČNÍ PROJEKT
Výjimečná příležitost pro investory! Nabízíme kompletně připravený projekt výstavby penzionu v Kunovicích s platným stavebním povolením a hotovou projektovou dokumentací. Začněte stavět prakticky ihned!

KLÍČOVÉ PARAMETRY INVESTICE
Užitná plocha: 743,60 m and sup2; na třech podlažích
Kapacita: 14 ubytovacích jednotek + wellness zázemí
Parkování: 12 stání na vlastním pozemku (včetně ZTP)
Lokalita: Kunovice, ul. Lidická - výborná dostupnost
Stav: platné stavební povolení, okamžitý start možný

Klíčové výhody investice: platné stavební povolení umožňuje okamžitý start bez zbytečného zdržení, atraktivní lokalita v zavedené zástavbě s výbornou dostupností a strategická poloha u hlavní komunikace podporují vysoký potenciál vytíženosti, v objektu je zároveň možné vybudovat menší bytové jednotky pro dlouhodobé nájemní bydlení. K dispozici je velkorysá užitná plocha 743,60 m and sup2; na třech podlažích.

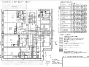
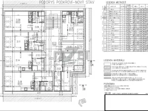
DISPOZICE PENZIONU
Podlaží Plocha Pobytová plocha Jednotky
1.NP 188 m and sup2; 58 m and sup2; 3 jednotky
2.NP 277 m and sup2; 103 m and sup2; 6 jednotek
Podkroví 278 m and sup2; 67 m and sup2; 5 jednotek
CELKEM 743 m and sup2; 28 m and sup2; 14 jednotek

TECHNICKÉ ŘEŠENÍ
Konstrukce: Nové nosné zdivo Ytong, příčky SDK
Kontaktní zateplení 150 mm
Nové stropy (ocelové profily + ŽB deska)
Krov a krytina Prefa Prefalz
Plastová okna s trojsklem

Vytápění a TUV:
Elektrické podlahové vytápění
Elektrické bojlery 100 l

Sítě:
Vodovod, kanalizace, elektřina - připojeno
Retenční nádrž pro dešťové vody

LOKALITA A DOSTUPNOST
Kunovice - ulice Lidická
Strategická poloha u hlavní komunikace
Zavedená zástavba rodinných domů
Výborné dopravní napojení
Blízkost městské infrastruktury
Vlastní dvůr s parkováním

FLEXIBILNÍ MOŽNOSTI
Územní plán umožňuje změnu záměru na:
Dům s nájemními byty
Apartmánový dům
Firemní ubytování
Kombinace bydlení a služeb

VHODNÉ PRO
Investory hledající okamžitý start projektu
Developery se zaměřením na ubytovací služby
Podnikatele v cestovním ruchu
Firmy řešící ubytování zaměstnanců

STAVEBNÍ ÚDAJE
Zastavěná plocha: 362 m and sup2;
Obestavěný prostor: 3.868 m and sup3;
Pozemek: s vlastním dvorem a parkováním
Stav objektu: připraven k rekonstrukci dle PD

CO ZÍSKÁTE
Platné stavební povolení
Kompletní projektovou dokumentaci
Připravený pozemek se sítěmi
Možnost okamžitého startu
Flexibilní využití objektu
Garantovanou návratnost investice

UPOZORNĚNÍ
Vizualizace jsou ilustrativní a slouží k lepší představě o potenciálu projektu. Závazné jsou údaje z projektové dokumentace.

KONTAKT
Maximalizujte potenciál této investice! Pro kompletní projektovou dokumentaci, finanční analýzu projektu, domluvení prohlídky nebo individuální investiční scénář mě kontaktujte.

Připraven k okamžitému startu Platné povolení Výnosná investice

Investiční projekt s garantovaným potenciálem v atraktivní lokalitě Kunovic

Parametry nemovitosti

Cena
7 000 000 Kč /za nemovitost Spočítat hypotéku
Poznámka k ceně
Konečná cena včetně právního servisu a provize RK.
Aktualizováno
1. 4. 2026
Adresa
Lidická, Kunovice
ID
1733
Stavba
Cihlová
Stav objektu
Před rekonstrukcí
Typ objektu
Patrový
Užitná plocha
743 m2
Plocha pozemku
564 m2
Elektřina
230V, 400V
Odpad
Veřejná kanalizace
Topení
Lokální elektrické
Komunikace
Asfaltová
Telekomunikace
Internet
Doprava
Vlak, Dálnice, Silnice, MHD, Autobus
Voda
Vodovod, Retenční nádrž na dešt’ovou vodu
Topné těleso
Podlahové vytápění
Sklep
Bezbarierový přístup
Parkování

Kontaktovat makléře

Realitní kancelář

Logo AZET reality

AZET reality

Vítkovická 3276/2a, Ostrava

Chystáte se prodat nemovitost?
Pomůžeme Vám!

Máte zájem o tuto nemovistost?

Tímto, v souladu s nařízením Evropského parlamentu a Rady (EU) 2016/679, v platném znění, prohlašuji, že mi je alespoň 16 let a uděluji tak svůj souhlas se zpracováním zadaných údajů (jméno, telefon, e-mail, ip adresa) společnosti B3 Technology, s.r.o., IČ: 07330600, se sídlem Novostavby 126/23, 435 11 Lom (správce dat), za účelem předání dotazu z tohoto formuláře Vámi vybranému inzerentovi a zpětného kontaktování mé osoby. Osobní údaje bude správce zpracovávat manuálně i automaticky přímo prostřednictvím svých zaměstnanců. Informace předané tímto formulářem budou uloženy v databázi správce maximálně po dobu 10 let. Odvolání souhlasu s uložením a zpracováním poskytnutých dat lze e-mailem na info@vitio.cz. V případě podezření na neoprávněné použití Vámi poskytnutých údajů máte právo předat podnět k šetření Úřadu pro ochranu osobních údajů. Více informací
Chystáte se prodat nemovitost?
Pomůžeme Vám!

Inzerát si prohlédlo 6 lidí

Prodejce

Kamil Dolinek

Kamil Dolinek

Hlídací pes

Chcete dostávat emailem podobné nabídky prodeje ubytování v Kunovicích (okr. Uherské Hradiště)?

Podobné nemovitosti