Pronájem bytu 2+kk, Praha - Modřany, Mezi vodami, 63 m2 (ID: 2606167)

Mezi Vodami, Praha, Modřany

24 500 Kč /za měsíc Získejte výhodnou HYPOTÉKU
Exkluzivní partneři v Praze 4

Stěhovací služby

Výkup a prodej starého nábytku

Informace k bytu

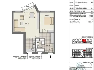
Nabízíme k pronájmu prostorný a světlý byt o dispozici 2+kk a celkové ploše 63 m², který se nachází v oblíbené rezidenční části Praha 4 – Modřany.
Dispozice bytu zahrnuje předsíň, ložnici, koupelnu s vanou a prostorný obývací pokoj s kuchyňským koutem. Z obývací části je zároveň vstup na balkon. Díky dobré orientaci bytu je interiér po většinu dne příjemně prosvětlený.
Velkou předností je výborná dopravní dostupnost – dům se nachází v bezprostřední blízkosti tramvajové zastávky, odkud je rychlé a přímé spojení do centra Prahy.
K bytu je možné pronajmout vyhrazené parkovací stání za 1 500 Kč měsíčně.
Byt se pronajímá bez vybavení a bude k nastěhování od 1. 4. 2026.
Měsíční nájemné činí 24 500 Kč, zálohy na služby jsou 3 500 Kč měsíčně. Elektřina se převádí na nájemníka.
Požadována je vratná kauce ve výši jednoho měsíčního nájmu a provize ve výši jednoho měsíčního nájmu.

Parametry bytu

Cena
24 500 Kč /za měsíc
Aktualizováno
11. 3. 2026
Adresa
Mezi Vodami, Praha, Modřany
ID
0118
Stavba
Cihlová
Stav objektu
Velmi dobrý
Patro
6. z 6
Vybaveno
Ne
Vlastnictví
Osobní
Užitná plocha
63 m2
Podlahová plocha
63 m2
Třída energetické náročnosti
D - Méně úsporná
Plyn
Plynovod
Odpad
Veřejná kanalizace
Balkon
Výtah
Parkování

Kontaktovat makléře

Máte zájem o tento byt?

Tímto, v souladu s nařízením Evropského parlamentu a Rady (EU) 2016/679, v platném znění, prohlašuji, že mi je alespoň 16 let a uděluji tak svůj souhlas se zpracováním zadaných údajů (jméno, telefon, e-mail, ip adresa) společnosti B3 Technology, s.r.o., IČ: 07330600, se sídlem Novostavby 126/23, 435 11 Lom (správce dat), za účelem předání dotazu z tohoto formuláře Vámi vybranému inzerentovi a zpětného kontaktování mé osoby. Osobní údaje bude správce zpracovávat manuálně i automaticky přímo prostřednictvím svých zaměstnanců. Informace předané tímto formulářem budou uloženy v databázi správce maximálně po dobu 10 let. Odvolání souhlasu s uložením a zpracováním poskytnutých dat lze e-mailem na info@vitio.cz. V případě podezření na neoprávněné použití Vámi poskytnutých údajů máte právo předat podnět k šetření Úřadu pro ochranu osobních údajů. Více informací
Chystáte se prodat nemovitost?
Pomůžeme Vám!

Inzerát si prohlédlo 0 lidí

Prodejce

Radek Procyk

Radek Procyk

Hlídací pes

Chcete dostávat emailem podobné nabídky pronájmu bytů 2+kk v Praze 4?

Podobné nemovitosti