Remax Monarcha

Pronájem bytu 2+kk, Olomouc - Hodolany, 55 m2

Olomouc, Hodolany

15 500 Kč /za měsíc Získejte výhodnou HYPOTÉKU

(Cena je bez záloh, zájemce hradí provizi RK)

Exkluzivní partneři v Olomouci

Informace k bytu

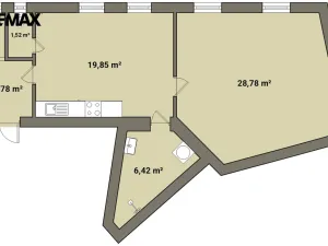
Nabízíme pronájem bytu 2+kk, 55 m2 v cihlovém domě na Hodolanské ulici v Olomouci 1. NP volný cca od dubna, května 2026. Do bytu se vchází chodbičkou a dále se vstupuje do pokoje s kuchyňským koutem (20 m2), toaleta je po levé straně a koupelna se sprchovým koutem vpravo za linkou. Druhý prostorný pokoj (28,2 m2) je umístěn v zadní části bytu. Byt je vhodný pro 1-2 pracující osoby, nebo studenty.
Podlahové krytiny vinyl a keramika. Okna plastová se žaluziemi. Vytápění plynovým kotlem a volný cca od dubna, května 2026. Elektřinu a plyn si nájemník přehlašuje na sebe a poplatek za vodu je 300,- Kč/ na osobu. Zájemce hradí provizi RK ve výši jednoho nájmu + DPH. Pro další informace a možnost prohlídky, kontaktujte makléře nabídky. Prodávající si vyhrazuje právo vybrat kupujícího na základě jím zvolených kritérií.

Parametry bytu

Cena
15 500 Kč /za měsíc
Poznámka k ceně
Cena je bez záloh, zájemce hradí provizi RK
Aktualizováno
11. 4. 2026
Adresa
Olomouc, Hodolany
ID
160-NP02868
Stavba
Cihlová
Stav objektu
Dobrý
Patro
2. z 3
Vybaveno
Ne
Lokalita objektu
Centrum obce
Vlastnictví
Osobní
Užitná plocha
55 m2
Podlahová plocha
55 m2
Třída energetické náročnosti
E - Nehospodárná
Plyn
Plynovod
Odpad
Veřejná kanalizace

Kontaktovat makléře

Realitní kancelář

Logo RE/MAX MONARCHA

RE/MAX MONARCHA

Masarykova třída 105/29, Olomouc

Chystáte se prodat nemovitost?
Pomůžeme Vám!

Máte zájem o tento byt?

Tímto, v souladu s nařízením Evropského parlamentu a Rady (EU) 2016/679, v platném znění, prohlašuji, že mi je alespoň 16 let a uděluji tak svůj souhlas se zpracováním zadaných údajů (jméno, telefon, e-mail, ip adresa) společnosti B3 Technology, s.r.o., IČ: 07330600, se sídlem Novostavby 126/23, 435 11 Lom (správce dat), za účelem předání dotazu z tohoto formuláře Vámi vybranému inzerentovi a zpětného kontaktování mé osoby. Osobní údaje bude správce zpracovávat manuálně i automaticky přímo prostřednictvím svých zaměstnanců. Informace předané tímto formulářem budou uloženy v databázi správce maximálně po dobu 10 let. Odvolání souhlasu s uložením a zpracováním poskytnutých dat lze e-mailem na info@vitio.cz. V případě podezření na neoprávněné použití Vámi poskytnutých údajů máte právo předat podnět k šetření Úřadu pro ochranu osobních údajů. Více informací
Chystáte se prodat nemovitost?
Pomůžeme Vám!

Inzerát si prohlédlo 6 lidí

Prodejce

Petra Kladivová

Petra Kladivová

Hlídací pes

Chcete dostávat emailem podobné nabídky pronájmu bytů 2+kk v Olomouci?

Podobné nemovitosti