Prodej rodinného domu, Mcely, 67 m2

Mcely

2 990 000 Kč /za nemovitost HYPOTÉKA od 13 363 Kč /za měsíc
Exkluzivní partneři v Mcelích

Informace k domu

Prodej rodinného domu, 67 m², Mcely

Nabízíme k prodeji samostatně stojící rodinný dům v klidné a malebné obci Mcely, ideální pro ty, kteří hledají soukromí, zeleň a únik z ruchu města.

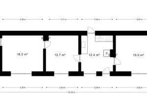
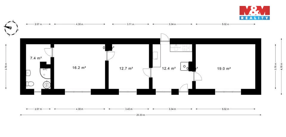
Dům je jednopodlažní, o dispozici 3+1 a užitné ploše 67 m², stojí na pozemku o celkové výměře 710 m². Nemovitost je smíšené konstrukce a nachází se v původním stavu před rekonstrukcí a nabízí tak skvělou příležitost upravit si bydlení přesně podle vlastních představ, ať už pro trvalé bydlení, nebo jako rekreační zázemí.
Mcely je menší obec uprostřed přírody a je vyhledávanou rekreační oblastí, jelikož se nachází v zalesněném území s hojným výskytem hub, borůvek a dalších lesních plodů. Vede zde turistická stezka a oblíbené jsou i cyklistické výlety po okolí.

Tato nemovitost osloví zejména klienty, kteří hledají klid, soukromí a možnost realizovat své vlastní představy o bydlení.
Pro více informací nebo domluvení prohlídky nás neváhejte kontaktovat.

Parametry domu

Cena
2 990 000 Kč /za nemovitost Spočítat hypotéku
Aktualizováno
27. 2. 2026
Adresa
Mcely
ID
934251
Stavba
Smíšená
Stav objektu
Před rekonstrukcí
Vybaveno
Ano
Druh objektu
Samostatný
Lokalita objektu
Klidná část obce
Vlastnictví
Osobní
Užitná plocha
67 m2
Plocha pozemku
710 m2

Kontaktovat makléře

Realitní kancelář

Logo M&M reality

M&M reality

ulice Krakovská 583/9, Praha

Chystáte se prodat nemovitost?
Pomůžeme Vám!

Máte zájem o tento dům?

Tímto, v souladu s nařízením Evropského parlamentu a Rady (EU) 2016/679, v platném znění, prohlašuji, že mi je alespoň 16 let a uděluji tak svůj souhlas se zpracováním zadaných údajů (jméno, telefon, e-mail, ip adresa) společnosti B3 Technology, s.r.o., IČ: 07330600, se sídlem Novostavby 126/23, 435 11 Lom (správce dat), za účelem předání dotazu z tohoto formuláře Vámi vybranému inzerentovi a zpětného kontaktování mé osoby. Osobní údaje bude správce zpracovávat manuálně i automaticky přímo prostřednictvím svých zaměstnanců. Informace předané tímto formulářem budou uloženy v databázi správce maximálně po dobu 10 let. Odvolání souhlasu s uložením a zpracováním poskytnutých dat lze e-mailem na info@vitio.cz. V případě podezření na neoprávněné použití Vámi poskytnutých údajů máte právo předat podnět k šetření Úřadu pro ochranu osobních údajů. Více informací
Chystáte se prodat nemovitost?
Pomůžeme Vám!

Inzerát si prohlédlo 0 lidí

Prodejce

Jiří Machník

Jiří Machník

Hlídací pes

Chcete dostávat emailem podobné nabídky prodeje rodinných domů v Mcelích?

Podobné nemovitosti