Pronájem bytu 2+kk, Praha - Holešovice, Schnirchova, 75 m2

Schnirchova, Praha, Holešovice

26 000 Kč /za měsíc Získejte výhodnou HYPOTÉKU

(Poplatky 1.500 Kč + elektřina a plyn)

Exkluzivní partneři v Praze 7

Stěhovací služby

Výkup a prodej starého nábytku

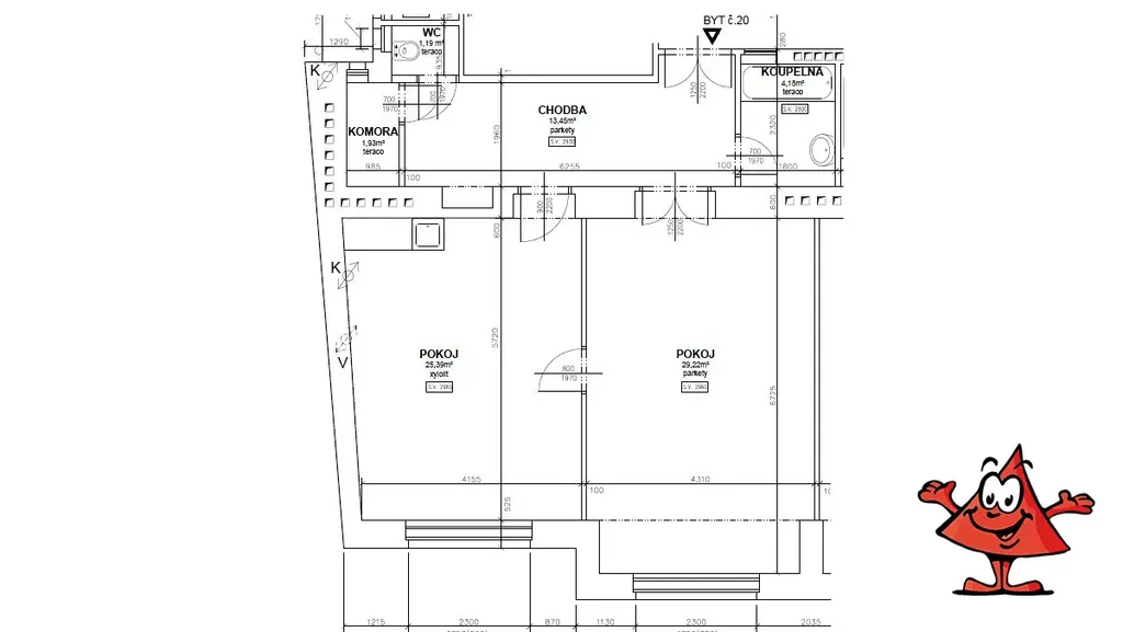
Informace k bytu

Pronájem neobvykle prostorného světlého bytu o dispozici 2+kk se šatnou ve 4. patře cihlové budovy s výtahem, Praha 7 - Holešovice, ulice Schnirchova. Byt se skládá ze dvou velkých průchozích místností (se samostatnými vchody), vstupní haly, komory/šatny a koupelny s toaletou. V kuchyňské části je kuchyňská linka se spotřebiči (lednice, mrazák, myčka, sklokeramická deska, el. trouba), podlahy z části vinylové, z části renovované parkety, z části dlažba, okna dřevěná.

Byt prošel před cca 5 lety kompletní rekonstrukcí. Ohřev vody a topení zajištěny plynovým kotlem. Nezařízeno nábytkem, nad rámec výše uvedených spotřebičů je k dispozici pračka.

V pěší dostupnosti veškeré potřebné služby a obchody (přímo v domě Albert), OC Stromovka, park Stromovka, tramvajová zastávka Veletržní palác, ke stanici metra "C" Vltavská a železniční stanici Praha-Bubny cca 500 metrů.

Jistota a provize ve výši jednoho nájemného.

Parametry bytu

Cena
26 000 Kč /za měsíc
Poznámka k ceně
Poplatky 1.500 Kč + elektřina a plyn
Aktualizováno
13. 2. 2026
Adresa
Schnirchova, Praha, Holešovice
ID
NR09695
Stavba
Cihlová
Stav objektu
Dobrý
Patro
5. z 5
Vybaveno
Ne
Lokalita objektu
Centrum obce
Vlastnictví
Osobní
Užitná plocha
75 m2
Třída energetické náročnosti
D - Méně úsporná
Ukazatel energetické náročnosti
156 kWh/m2 za rok
Výtah

Kontaktovat makléře

Máte zájem o tento byt?

Tímto, v souladu s nařízením Evropského parlamentu a Rady (EU) 2016/679, v platném znění, prohlašuji, že mi je alespoň 16 let a uděluji tak svůj souhlas se zpracováním zadaných údajů (jméno, telefon, e-mail, ip adresa) společnosti B3 Technology, s.r.o., IČ: 07330600, se sídlem Novostavby 126/23, 435 11 Lom (správce dat), za účelem předání dotazu z tohoto formuláře Vámi vybranému inzerentovi a zpětného kontaktování mé osoby. Osobní údaje bude správce zpracovávat manuálně i automaticky přímo prostřednictvím svých zaměstnanců. Informace předané tímto formulářem budou uloženy v databázi správce maximálně po dobu 10 let. Odvolání souhlasu s uložením a zpracováním poskytnutých dat lze e-mailem na info@vitio.cz. V případě podezření na neoprávněné použití Vámi poskytnutých údajů máte právo předat podnět k šetření Úřadu pro ochranu osobních údajů. Více informací
Chystáte se prodat nemovitost?
Pomůžeme Vám!

Inzerát si prohlédlo 0 lidí

Prodejce

Zbyněk Svadba

Zbyněk Svadba

Hlídací pes

Chcete dostávat emailem podobné nabídky pronájmu bytů 2+kk v Praze 7?

Top nabídky

Podobné nemovitosti