Pronájem bytu 2+kk, Praha - Břevnov, Nad Kajetánkou, 45 m2 (ID: 2582073)

Nad Kajetánkou, Praha, Břevnov

24 000 Kč /za měsíc Získejte výhodnou HYPOTÉKU
Exkluzivní partneři v Praze 6

Stěhovací služby

Výkup a prodej starého nábytku

Informace k bytu

Realitní společnost Dvořák & Petrášková reality vám nabízí k pronájmu byt v osobním vlastnictví o dispozici 2+kk na pražském Břevnově, na adrese Nad Kajetánkou 207/21. Neplatíte provizi RK.

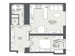
Nově zrekonstruovaný byt s podlahovou plochou 45 m2 se nachází ve 4.patře cihlového domu s výtahem. Byt prošel nákladnou rekonstrukcí a je vhodný pro jednotlivce nebo pár. Bytová jednotka disponuje prostornou vstupní chodbou s dostatkem místa na šatní skříně a oddělenými vstupy do jednotlivých pokojů. Obývací pokoj s kuchyňským koutem je vybavený vestavnou lednicí s mrazákem, myčkou, horkovzdušnou troubou, indukční varnou deskou, digestoří a dostatkem úložného prostoru. Ložnice s výměrou 12 m2 a přístupem z chodby, koupelna se sprchovým koutem a připojením na pračku, toaleta je oddělená. Použitý nábytek je pouze ilustrační a není součástí pronájmu ani jej nelze ponechat. Byt prošel kompletní rekonstrukcí, na podlahu byla položená vinylová podlaha a byt je kompletně bez prahový, v pokojích jsou umístěna plastová okna s žaluziemi. Ohřev vody a teplo dálkově z teplárny. Byt je volný k nastěhování. K bytu náleží sklepní kóje. V domě je výtah, který jezdí na patro bytu. Parkování je možné před domem, na modrých zónách.

Zastávka autobusu Patočkova je umístěna kousek od domu, tramvaj pěší chůzí 5 minut, základní školy v okolí, oblíbený park Kajetánka a koupaliště Petynka přes silnici, supermarket Albert 10 minut pěšky.

Měsíční náklady na bydlení jsou:
-nájemné 24.000,– Kč,
-zúčtovatelné zálohy na služby pro 1 osobu cca 2.400,– Kč (přesná částka pro 2 osoby bude přepočítaná na základě nového evidenčního listu),
-zálohy na odběr elektřiny cca 1.200,– Kč (smlouva na nájemce).

Vratná kauce 48.000,– Kč, splatná při podpisu rezervační smlouvy.
Nájemné na daný měsíc se hradí v daném měsíci. Neplatíte provizi.

Nájemce vždy prověřujeme, majitelé nabízí férové jednání. Byt je určený výhradně k dlouhodobému pronájmu a max. pro 2 osoby. Byt není vhodný pro spolubydlení. Preferujeme nájemce bez domácích mazlíčků. Ráda se s Vámi uvidím na prohlídce.

Parametry bytu

Cena
24 000 Kč /za měsíc
Aktualizováno
12. 2. 2026
Adresa
Nad Kajetánkou, Praha, Břevnov
ID
26004
Stavba
Cihlová
Stav objektu
Po rekonstrukci
Patro
4.
Lokalita objektu
Klidná část obce
Vlastnictví
Osobní
Užitná plocha
45 m2
Třída energetické náročnosti
B - Velmi úsporná
Telekomunikace
Internet
Doprava
Dálnice, Silnice, MHD
Sklep
Výtah
Bezbarierový přístup

Kontaktovat makléře

Máte zájem o tento byt?

Tímto, v souladu s nařízením Evropského parlamentu a Rady (EU) 2016/679, v platném znění, prohlašuji, že mi je alespoň 16 let a uděluji tak svůj souhlas se zpracováním zadaných údajů (jméno, telefon, e-mail, ip adresa) společnosti B3 Technology, s.r.o., IČ: 07330600, se sídlem Novostavby 126/23, 435 11 Lom (správce dat), za účelem předání dotazu z tohoto formuláře Vámi vybranému inzerentovi a zpětného kontaktování mé osoby. Osobní údaje bude správce zpracovávat manuálně i automaticky přímo prostřednictvím svých zaměstnanců. Informace předané tímto formulářem budou uloženy v databázi správce maximálně po dobu 10 let. Odvolání souhlasu s uložením a zpracováním poskytnutých dat lze e-mailem na info@vitio.cz. V případě podezření na neoprávněné použití Vámi poskytnutých údajů máte právo předat podnět k šetření Úřadu pro ochranu osobních údajů. Více informací
Chystáte se prodat nemovitost?
Pomůžeme Vám!

Inzerát si prohlédlo 0 lidí

Prodejce

Bc. Linda Petrášková MBA

Bc. Linda Petrášková MBA

Hlídací pes

Chcete dostávat emailem podobné nabídky pronájmu bytů 2+kk v Praze 6?

Podobné nemovitosti