Pronájem bytu 2+kk, Praha - Krč, Krchlebská, 39 m2

Krchlebská, Krč - Praha 4

19 000 Kč /za měsíc Získejte výhodnou HYPOTÉKU

(vratná jistota, náklady na bydlení 6093 Kč, poplatek za podnájem)

Exkluzivní partneři v Praze 4

Stěhovací služby

Výkup a prodej starého nábytku

Pojištění a finance

Informace k bytu

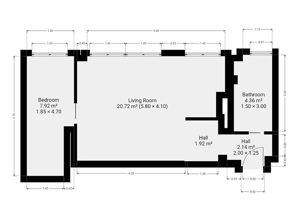
K dlouhodobému podnájmu nabízíme krásný byt o dispozici 2+kk v klidné lokalitě Praha 4 - Krč. Byt o celkové výměře 39 m2 se nachází ve druhém patře cihlového domu bez výtahu.

Byt se nabízí částečně vybavený. Kuchyně disponuje kuchyňskou linkou s keramickou výlevkou včetně pákové baterie, se zabudovaným LED osvětlením a výklopným jídelním stolem, chladničkou s mrazničkou, myčkou nádobí, elektrickou troubou, plynovou varnou deskou, mikrovlnnou troubou, digestoří a klimatizací. Obývací část je zařízena pracovním rohovým stolem a nástěnným polohovacím držákem pro televizi. Součástí dětského pokoje je kombinace skříněk a zásuvek se zabudovaným LED osvětlením, zakončená lůžkem s přístupovým žebříkem, vestavěné úložné police, bílá nástěnná magnetická tabule, kombinace čtyř skříněk s dvířky a nezakrytými policemi a klimatizace. V obou obytných místnostech je vinylová podlahová krytina a v kuchyňském koutě je dlažba. V koupelně je sprchový kout včetně kombinované pákové baterie a sprchové hlavice, umyvadlo se skříňkou, nástěnné zrcadlo s polohovacím osvětlením, toaleta a klimatizace. V předsíni je vestavěná třídílná šatní skříň s nástavci a zásuvkami se zabudovaným LED osvětlením a čtyřdílný výklopní botník.

V okolí domu najdeme obchodní centra DBK Budějovická a Arkády Pankrác, Lidl, Penny Market, Bauhaus, Electrolux, parky, základní a mateřskou školu, dětská hřiště, restaurace, kavárny, lékárnu, poštu, prodejnu potravin, pekařství atd. Tři minuty chůze od domu je vzdálena autobusová zastávka Zelená liška a v docházkové vzdálenosti jsou stanice metra Budějovická a Pankrác.

Majitel preferuje zájemce bez domácích mazlíčků.

Byt je volný k nastěhování od 15.06.2026

Energetická třída: G (neuvedeno).

Parametry bytu

Cena
19 000 Kč /za měsíc
Poznámka k ceně
vratná jistota, náklady na bydlení 6093 Kč, poplatek za podnájem
Aktualizováno
10. 5. 2026
Adresa
Krchlebská, Krč - Praha 4
ID
N4590
Stavba
Cihlová
Stav objektu
Velmi dobrý
Patro
3. z 6
Vybaveno
Částečně
Typ objektu
Patrový
Lokalita objektu
Klidná část obce
Vlastnictví
Osobní
Užitná plocha
39 m2
Podlahová plocha
39 m2
Třída energetické náročnosti
G - Mimořádně nehospodárná
Elektřina
230V
Plyn
Plynovod
Topení
Lokální elektrické
Doprava
Vlak, Dálnice, Silnice, MHD, Autobus
Voda
Vodovod
Výtah

Kontaktovat makléře

Realitní kancelář

Logo Ideální nájemce

Ideální nájemce

Milady Horákové 1957/13, Brno

Chystáte se prodat nemovitost?
Pomůžeme Vám!

Máte zájem o tento byt?

Tímto, v souladu s nařízením Evropského parlamentu a Rady (EU) 2016/679, v platném znění, prohlašuji, že mi je alespoň 16 let a uděluji tak svůj souhlas se zpracováním zadaných údajů (jméno, telefon, e-mail, ip adresa) společnosti B3 Technology, s.r.o., IČ: 07330600, se sídlem Novostavby 126/23, 435 11 Lom (správce dat), za účelem předání dotazu z tohoto formuláře Vámi vybranému inzerentovi a zpětného kontaktování mé osoby. Osobní údaje bude správce zpracovávat manuálně i automaticky přímo prostřednictvím svých zaměstnanců. Informace předané tímto formulářem budou uloženy v databázi správce maximálně po dobu 10 let. Odvolání souhlasu s uložením a zpracováním poskytnutých dat lze e-mailem na info@vitio.cz. V případě podezření na neoprávněné použití Vámi poskytnutých údajů máte právo předat podnět k šetření Úřadu pro ochranu osobních údajů. Více informací
Chystáte se prodat nemovitost?
Pomůžeme Vám!
Theleadway banner

Inzerát si prohlédlo 2 lidí

Prodejce

Dana Oralová

Dana Oralová

Hlídací pes

Chcete dostávat emailem podobné nabídky pronájmu bytů 2+kk v Praze 4?

Podobné nemovitosti