Prodej rodinného domu, Milovice, Topolová, 110 m2 (ID: 2571800)

Topolová, Milovice, Mladá

7 990 000 Kč /za nemovitost HYPOTÉKA od 35 710 Kč /za měsíc
Exkluzivní partneři v Milovicích

Informace k domu

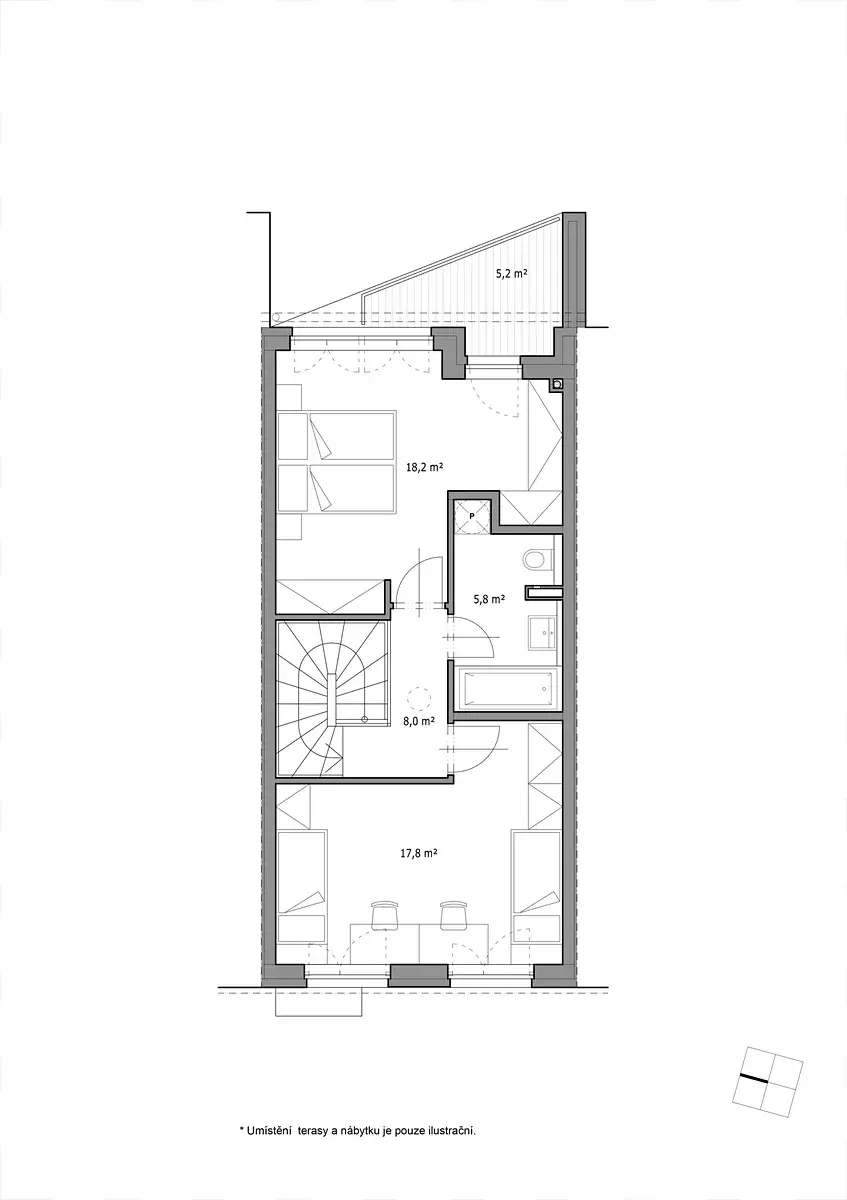
Nabízíme k prodeji dům s parametry nadstandartního bytu, ve výstavbě v klidné části obce Milovice. Tento cihlový, patrový dům se čtyřmi pokoji nabízí současný design a moderní architekturu, která splní požadavky na pohodlné a kvalitní bydlení. Dům bude kolaudován v roce 2026 a bude připraven k nastěhování 30. června 2026.

S užitnou plochou 110 m² a pozemkem o rozloze 125 m² nabízí tento řadový rodinný dům s pohodlím bytu, ideální místo pro rodinné bydlení. Díky výborné dostupnosti vlakového spojení do Prahy Nymburka i Mladé Boleslavi, dálnicím D11 a R46 a fungující MHD, je zajištěna snadná doprava do všech důležitých destinací. Součástí nemovitosti je parkovací místo.

Dům je ve fázi výstavby a je součástí exkluzivní nabídky s cenou 7 990 000 Kč. Energetická třída B s instalovanými fotovoltaickými panely svědčí o nízkoenergetickém zaměření domu, což může přinést úsporu na dlouhodobých nákladech na energiích. Dům je vytápěn podlahovým topením, je napojen na veřejný vodovod a kanalizaci, přiveden je optický kabel internetu.


Bližší informace naleznete na našich stránkách DOMY.PODLISKAMI.CZ

Pro další informace nebo zájmu o prohlídku nás prosím kontaktujte pomocí SMS či telefonu.
Těšíme se na Váš zájem!

Parametry domu

Cena
7 990 000 Kč /za nemovitost Spočítat hypotéku
Aktualizováno
2. 2. 2026
Adresa
Topolová, Milovice, Mladá
Stavba
Cihlová
Stav objektu
Novostavba
Druh objektu
Řadový
Lokalita objektu
Klidná část obce
Užitná plocha
110 m2
Plocha pozemku
125 m2
Třída energetické náročnosti
B - Velmi úsporná
Elektřina
230V
Plyn
Plynovod
Odpad
Veřejná kanalizace
Komunikace
Dlážděná
Telekomunikace
Internet, Kabelové rozvody
Doprava
Vlak, Dálnice, Silnice, MHD, Autobus
Voda
Vodovod
Topné těleso
Podlahové vytápění
Zdroj topení
Plynový kondenzační kotel
Zdroj teplé vody
Plynový kondenzační kotel
Parkování

Kontaktovat makléře

Máte zájem o tento dům?

Tímto, v souladu s nařízením Evropského parlamentu a Rady (EU) 2016/679, v platném znění, prohlašuji, že mi je alespoň 16 let a uděluji tak svůj souhlas se zpracováním zadaných údajů (jméno, telefon, e-mail, ip adresa) společnosti B3 Technology, s.r.o., IČ: 07330600, se sídlem Novostavby 126/23, 435 11 Lom (správce dat), za účelem předání dotazu z tohoto formuláře Vámi vybranému inzerentovi a zpětného kontaktování mé osoby. Osobní údaje bude správce zpracovávat manuálně i automaticky přímo prostřednictvím svých zaměstnanců. Informace předané tímto formulářem budou uloženy v databázi správce maximálně po dobu 10 let. Odvolání souhlasu s uložením a zpracováním poskytnutých dat lze e-mailem na info@vitio.cz. V případě podezření na neoprávněné použití Vámi poskytnutých údajů máte právo předat podnět k šetření Úřadu pro ochranu osobních údajů. Více informací
Chystáte se prodat nemovitost?
Pomůžeme Vám!

Inzerát si prohlédlo 0 lidí

Prodejce

Ing. Blanka Benešová

Ing. Blanka Benešová

Hlídací pes

Chcete dostávat emailem podobné nabídky prodeje rodinných domů v Milovicích (okr. Nymburk)?

Podobné nemovitosti