Pronájem bytu 1+1, Brno - Kohoutovice, Chalabalova, 42 m2

Chalabalova, Kohoutovice - Brno-Kohoutovice

16 000 Kč /za měsíc Získejte výhodnou HYPOTÉKU

(vratná jistota, 4 000 Kč náklady na bydlení, poplatek za podnájem)

Exkluzivní partneři v Brně

Informace k bytu

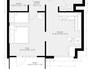
Nabízíme k dlouhodobému podnájmu světlý a prakticky řešený byt o dispozici 1+1 a podlahové ploše 42 m², nacházející se ve vyhledávané brněnské městské části Kohoutovice.

Byt se nachází v panelovém domě s výtahem a součástí je také sklepní kóje a zasklená lodžie.

Byt je nabízen vybavený dle fotografií. Kuchyně je vybavena kuchyňskou linkou, lednicí, plynovým sporákem s troubou, digestoří a jídelním stolem se židlemi.

V pokoji jsou dvě postele (možnost ponechat nebo dát pryč). V chodbě je umístěna šatní skříň. Koupelna disponuje sprchovým koutem, umyvadlem a pračkou, toaleta je samostatná.

Byt je volný k nastěhování ihned.

Lokalita nabízí výbornou občanskou vybavenost – v docházkové vzdálenosti se nachází supermarket, restaurace, kavárny, pošta i zdravotní služby. Kohoutovice jsou oblíbené pro svou zeleň, klid a skvělý přístup k volnočasovým aktivitám. Dopravní dostupnost zajišťují autobusové linky MHD s rychlým napojením na centrum města a další části Brna.

Byt pronajímá služba Ideální nájemce, která zajistí férové a bezstarostné bydlení včetně administrativy, nastavení plateb a řešení případných oprav.

V případě zájmu nás neváhejte kontaktovat a domluvit si termín prohlídky.

Parametry bytu

Cena
16 000 Kč /za měsíc
Poznámka k ceně
vratná jistota, 4 000 Kč náklady na bydlení, poplatek za podnájem
Aktualizováno
5. 12. 2025
Adresa
Chalabalova, Kohoutovice - Brno-Kohoutovice
ID
N7006
Stavba
Panelová
Stav objektu
Velmi dobrý
Patro
5. z 8
Vybaveno
Ano
Typ objektu
Patrový
Lokalita objektu
Klidná část obce
Vlastnictví
Osobní
Užitná plocha
42 m2
Podlahová plocha
42 m2
Elektřina
230V
Topení
Ústřední dálkové
Telekomunikace
Telefon, Internet, Kabelová televize
Balkon
Sklep
Výtah

Kontaktovat makléře

Máte zájem o tento byt?

Tímto, v souladu s nařízením Evropského parlamentu a Rady (EU) 2016/679, v platném znění, prohlašuji, že mi je alespoň 16 let a uděluji tak svůj souhlas se zpracováním zadaných údajů (jméno, telefon, e-mail, ip adresa) společnosti B3 Technology, s.r.o., IČ: 07330600, se sídlem Novostavby 126/23, 435 11 Lom (správce dat), za účelem předání dotazu z tohoto formuláře Vámi vybranému inzerentovi a zpětného kontaktování mé osoby. Osobní údaje bude správce zpracovávat manuálně i automaticky přímo prostřednictvím svých zaměstnanců. Informace předané tímto formulářem budou uloženy v databázi správce maximálně po dobu 10 let. Odvolání souhlasu s uložením a zpracováním poskytnutých dat lze e-mailem na info@vitio.cz. V případě podezření na neoprávněné použití Vámi poskytnutých údajů máte právo předat podnět k šetření Úřadu pro ochranu osobních údajů. Více informací
Chystáte se prodat nemovitost?
Pomůžeme Vám!

Inzerát si prohlédlo 3 lidí

Prodejce

Miloslava Kačerová

Miloslava Kačerová

Hlídací pes

Chcete dostávat emailem podobné nabídky pronájmu bytů 1+1 v Brně?

Podobné nemovitosti