Prodej rodinného domu, Ratenice, 107 m2

Ratenice

Exkluzivní partneři v Ratenicích

Informace k domu

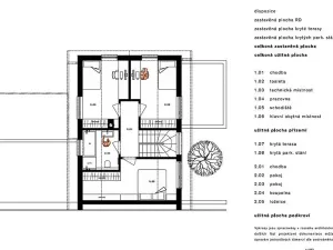
Prodej novostavby domu 125 m², pozemek 512 m² Ratenice, Pečky

Nabízíme moderní dvoupatrový rodinný dům o užitné ploše 125 m² na pozemku 512 m². Kvalitní dřevostavba je umístěná v klidné rezidenční části Ratenic s výbornou dostupností do Peček, Kolína i Prahy díky přímému vlakovému spojení.
Dům bude dodán ve stavu kompletního dokončení – hotové podlahy, obklady, sanita.
Kuchyňská linka je ponechána na volbu kupujícího. Standardy zašlu na vyžádání.
Fotografie použité v nabídce pocházejí ze stejné typové stavby realizované v jiné lokalitě.
Proč právě tento dům?
* Dvoupodlažní řešení nabízí prostor, soukromí i flexibilní využití
* Úsporná dřevostavba s nízkými provozními náklady
* Klidná lokalita v bezprostřední blízkosti přírody
* Kompletní občanská vybavenost v nedalekých Pečkách
* Přímý vlak na Prahu a Kolín
* Bezpečná volba pro rodinu i investici
Parametry stavby:
* Typ: dvoupodlažní rodinný dům – dřevostavba
* Užitná plocha: 125 m²
* Pozemek: 512 m²
* Dokončení stavby: rok 2026
Platební harmonogram:
* Rezervační poplatek
* 20 % z ceny při podpisu Smlouvy o smlouvě budoucí kupní
* Doplatek při kolaudaci a podpisu kupní smlouvy
Standard dokončení
Kompletně hotové interiéry včetně podlah, obkladů a sanit. Kuchyň řeší kupující dle svého vkusu.
Zavolejte pro více informací – rád pošlu standardy, vizualizace i detailní podklady.

Parametry domu

Cena
10 500 000 Kč Spočítat hypotéku
Aktualizováno
4. 12. 2025
Adresa
Ratenice
ID
971698
Stavba
Dřevěná
Stav objektu
Novostavba
Druh objektu
Samostatný
Vlastnictví
Osobní
Užitná plocha
107 m2
Zastavěná plocha
95 m2
Plocha pozemku
512 m2
Třída energetické náročnosti
A - Mimořádně úsporná

Kontaktovat makléře

Máte zájem o tento dům?

Tímto, v souladu s nařízením Evropského parlamentu a Rady (EU) 2016/679, v platném znění, prohlašuji, že mi je alespoň 16 let a uděluji tak svůj souhlas se zpracováním zadaných údajů (jméno, telefon, e-mail, ip adresa) společnosti B3 Technology, s.r.o., IČ: 07330600, se sídlem Novostavby 126/23, 435 11 Lom (správce dat), za účelem předání dotazu z tohoto formuláře Vámi vybranému inzerentovi a zpětného kontaktování mé osoby. Osobní údaje bude správce zpracovávat manuálně i automaticky přímo prostřednictvím svých zaměstnanců. Informace předané tímto formulářem budou uloženy v databázi správce maximálně po dobu 10 let. Odvolání souhlasu s uložením a zpracováním poskytnutých dat lze e-mailem na info@vitio.cz. V případě podezření na neoprávněné použití Vámi poskytnutých údajů máte právo předat podnět k šetření Úřadu pro ochranu osobních údajů. Více informací
Chystáte se prodat nemovitost?
Pomůžeme Vám!

Inzerát si prohlédlo 5 lidí

Prodejce

Štěpán Vlček

Štěpán Vlček

Hlídací pes

Chcete dostávat emailem podobné nabídky prodeje rodinných domů v Ratenicích?

Podobné nemovitosti