Pronájem bytu 2+kk, Praha - Holešovice, Argentinská, 52 m2 (ID: 2520473)

Argentinská, Praha, Holešovice

30 000 Kč /za měsíc Získejte výhodnou HYPOTÉKU
Exkluzivní partneři v Praze 7

Stěhovací služby

Výkup a prodej starého nábytku

Informace k bytu

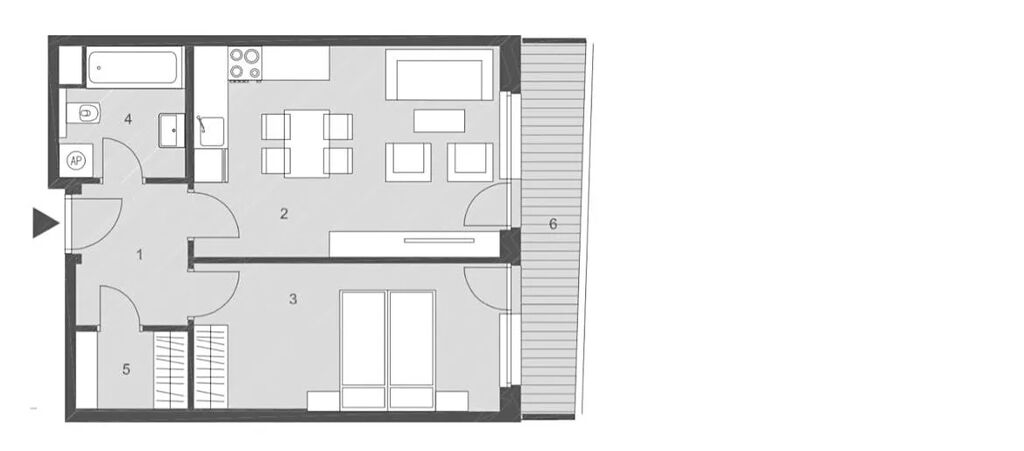
Nabízíme k pronájmu moderní a kompletně vybavený byt 2+kk o ploše 52 m² s prostorným balkonem, který se nachází v rezidenčním projektu Vivus Argentinská na adrese Argentinská 1624/32a, Praha 7 – Holešovice. Byt se nachází v novostavbě s výtahem, je ve výborném stavu a bude k dispozici od 1. ledna 2025.

Obývací prostor s kuchyňským koutem je vybaven moderní linkou na míru v kombinaci bílá/dřevo, včetně spotřebičů: trouba, varná deska, lednice s mrazákem, mikrovlnná trouba, rychlovarná konvice. Součástí interiéru je jídelní stůl se židlemi, pohovka, TV a vstup na balkon.

Ložnice je vybavena manželskou postelí, TV, komodou a má přístup do velké samostatné šatny s dostatkem úložných prostor.

Koupelna je vybavena vanou, umyvadlem, úložnou skříní a pračkou. Toaleta je součástí koupelny. V předsíni je umístěno zrcadlo a věšákový prostor.

K bytu náleží garážové stání v podzemní hale objektu.

Projekt Vivus Argentinská se nachází v žádané části Holešovic s výbornou dopravní dostupností. Tramvajová zastávka je v pěší vzdálenosti, metro Vltavská a Nádraží Holešovice jsou několik minut od domu. V okolí se nachází veškerá občanská vybavenost – supermarkety, lékárny, drogerie, restaurace, kavárny, obchodní centrum Stromovka. Lokalita nabízí také množství možností pro volný čas, včetně parků Stromovka a Letenské sady.

Byt bude volný k nastěhování od 1. ledna 2025.

Pro více informací a sjednání prohlídky nás prosím kontaktujte.

Parametry bytu

Cena
30 000 Kč /za měsíc
Náklady na bydlení
služby spojené s užíváním bytu 7 307 kč + zálohy na elektřinu (převod na nájemce)
Aktualizováno
26. 11. 2025
Adresa
Argentinská, Praha, Holešovice
Stavba
Cihlová
Stav objektu
Novostavba
Patro
3.
Vybaveno
Ano
Vlastnictví
Osobní
Užitná plocha
52 m2
Třída energetické náročnosti
B - Velmi úsporná
Doprava
Vlak, Dálnice, Silnice, MHD, Autobus
Balkon
Garáž
Lodžie
Terasa
Výtah
Parkování

Kontaktovat makléře

Máte zájem o tento byt?

Tímto, v souladu s nařízením Evropského parlamentu a Rady (EU) 2016/679, v platném znění, prohlašuji, že mi je alespoň 16 let a uděluji tak svůj souhlas se zpracováním zadaných údajů (jméno, telefon, e-mail, ip adresa) společnosti B3 Technology, s.r.o., IČ: 07330600, se sídlem Novostavby 126/23, 435 11 Lom (správce dat), za účelem předání dotazu z tohoto formuláře Vámi vybranému inzerentovi a zpětného kontaktování mé osoby. Osobní údaje bude správce zpracovávat manuálně i automaticky přímo prostřednictvím svých zaměstnanců. Informace předané tímto formulářem budou uloženy v databázi správce maximálně po dobu 10 let. Odvolání souhlasu s uložením a zpracováním poskytnutých dat lze e-mailem na info@vitio.cz. V případě podezření na neoprávněné použití Vámi poskytnutých údajů máte právo předat podnět k šetření Úřadu pro ochranu osobních údajů. Více informací
Chystáte se prodat nemovitost?
Pomůžeme Vám!

Inzerát si prohlédlo 0 lidí

Prodejce

Alex Usachev

Alex Usachev

Hlídací pes

Chcete dostávat emailem podobné nabídky pronájmu bytů 2+kk v Praze 7?

Podobné nemovitosti