Prodej rodinného domu, Čisovice, 60 m2

Čisovice

6 290 000 Kč /za nemovitost HYPOTÉKA od 28 112 Kč /za měsíc
Exkluzivní partneři v Čisovicích

Informace k domu

Nabízím k prodeji samostatný zděný dům v klidné obci Čisovice, která leží v okrese Praha-západ a je obklopená krásnou přírodou brdských lesů a zároveň skvěle dostupná do Prahy. Místo má příjemnou, klidnou atmosféru a poskytuje veškerou potřebnou občanskou vybavenost pro pohodlné každodenní bydlení.
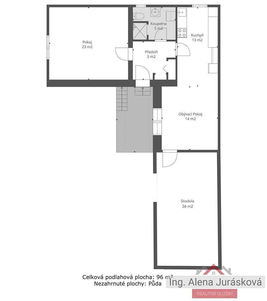
Dům se nachází na pozemku o celkové výměře 403 m2 a zastavěná plocha domu činí přibližně 138 m2. Díky své současné dispozici i možnostem rozšíření je vhodná jak k okamžitému bydlení, tak k rekonstrukci a přestavbě na plnohodnotný rodinný dům. Dům má v tuto chvíli dispozici 2+kk o velikosti 60 m2. Nad přízemím se nachází půda o rozloze 48 m2 vhodná k vybudování dalšího obytného patra. Na dům navazuje také stodola o 36 m2, ze které lze vytvořit další pokoje či jiné zázemí podle vlastních představ.

Část domu je postavena z kombinace kamene a betonu, novější přístavba, kde se nachází kuchyně a stodola, je cihlová. V pokoji jsou zachované rákosové stropy a v kuchyni i obývací části stropy z heraklitu. V roce 2000 prošel dům rekonstrukcí, při které byla instalována plastová okna, provedeny nové štukované omítky a položeny podlahy. V hlavním pokoji zůstala původní prkenná podlaha. V koupelně je umístěn plynový kotel Baxi, který slouží k ohřevu vody i vytápění. Před šesti lety byla celá západní strana domu odizolována.
Na pozemku se nachází kopaná studna, která v současnosti slouží k zalévání zahrady. Dům je napojený na obecní vodovod, plyn i kanalizaci. Součástí domu je také menší sklep o velikosti přibližně 4 m2, který je přístupný z ulice. Celkově je dům určený k rekonstrukci, avšak nabízí velmi pěkný základ a široké možnosti přestavby.

Čisovice jsou příjemná a klidná obec nacházející se 24 km od Prahy. Díky vlaku a autobusu jsou velmi dobře dostupné, a navíc jsou součástí Pražské integrované dopravy. V obci je k dispozici obchod, základní škola, mateřská škola, knihovna, restaurace i pošta. Díky své poloze je to ideální místo pro ty, kteří hledají klidné bydlení s dobrou dostupností do města.

Pokud máte zájem o prohlídku nebo potřebujete více informací, ráda vám je poskytnu.

Parametry domu

Cena
6 290 000 Kč /za nemovitost Spočítat hypotéku
Aktualizováno
25. 11. 2025
Adresa
Čisovice
ID
205
Stavba
Smíšená
Stav objektu
Dobrý
Druh objektu
Samostatný
Užitná plocha
60 m2
Zastavěná plocha
138 m2
Podlahová plocha
148 m2
Plocha pozemku
403 m2
Plocha zahrady
272 m2
Elektřina
230V, 400V
Plyn
Plynovod
Odpad
Veřejná kanalizace
Topení
Ústřední plynové
Telekomunikace
Internet
Doprava
Vlak, Dálnice, Silnice, Autobus
Voda
Vodovod, Studna
Topné těleso
Radiátory
Zdroj topení
Plynový kotel
Zdroj teplé vody
Plynový kotel
Sklep
Bezbarierový přístup

Kontaktovat makléře

Máte zájem o tento dům?

Tímto, v souladu s nařízením Evropského parlamentu a Rady (EU) 2016/679, v platném znění, prohlašuji, že mi je alespoň 16 let a uděluji tak svůj souhlas se zpracováním zadaných údajů (jméno, telefon, e-mail, ip adresa) společnosti B3 Technology, s.r.o., IČ: 07330600, se sídlem Novostavby 126/23, 435 11 Lom (správce dat), za účelem předání dotazu z tohoto formuláře Vámi vybranému inzerentovi a zpětného kontaktování mé osoby. Osobní údaje bude správce zpracovávat manuálně i automaticky přímo prostřednictvím svých zaměstnanců. Informace předané tímto formulářem budou uloženy v databázi správce maximálně po dobu 10 let. Odvolání souhlasu s uložením a zpracováním poskytnutých dat lze e-mailem na info@vitio.cz. V případě podezření na neoprávněné použití Vámi poskytnutých údajů máte právo předat podnět k šetření Úřadu pro ochranu osobních údajů. Více informací
Chystáte se prodat nemovitost?
Pomůžeme Vám!

Inzerát si prohlédlo 3 lidí

Prodejce

Ing. Alena Jurásková

Ing. Alena Jurásková

Hlídací pes

Chcete dostávat emailem podobné nabídky prodeje rodinných domů v Čisovicích?

Podobné nemovitosti