Pronájem bytu 2+kk, Praha - Letňany, Škrábkových, 41 m2 (ID: 2516085)

Škrábkových, Praha, Letňany

21 000 Kč /za měsíc Získejte výhodnou HYPOTÉKU

(+ zálohy na služby 3200 kč + elektřina. Vratná kauce 24200 kč, provize 21000 kč + DPH)

Exkluzivní partneři v Praze 9

Stěhovací služby

Výkup a prodej starého nábytku

Informace k bytu

Volné ihned.
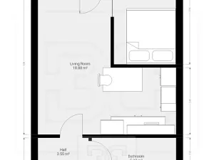
Nabízíme Vám pronájem bytu 2+kk o celkové ploše 41m2 s lodžií situovaný ve druhém nadzemním podlaží domu v Rezidenci Veselská, Praha 9 – Letňany, ul. Škrábkových. Byt je velmi nadstandardně vybaven kvalitní kuchyňskou linkou od společnosti Indeco s vestavěnými spotřebiči (pečící trouba, mikrovlnná trouba, myčka, lednice s mrazákem), plovoucí laminátová podlaha, v předsíní vyhotovená vestavěná skříň taktéž od společnosti Indeco (na míru).

V ceně nájmu je i parkovací stání v podzemním podlaží domu. K dispozici společná kočárkárna ve 2.podzemním podlaží. Vynikající dopravní dostupnost – BUS zastávka přímo vedle projektu (5min ‚C‘ Letňany). Veškerá občanská vybavenost v místě.

Poplatky činí 3.200,- Kč + spotřeba elektrické energie. Vratná kauce 24200 kč, provize 21000 kč + DPH.

Pozor, velkou výhodou pro potenciální nájemce je, že byt je v profesionální správě společnosti Bohemian Estates, jenž správu pro majitele tohoto bytu vykonává. Nájemci je k dispozici kontaktní osoba, která řeší veškeré záležitosti s nájmem spojené (údržba, platby nájemného, vyúčtování, dodatky, a pod.). Nájemci je tak zajištěno bezproblémové užívání bytu s kompletním servisem.

Nechcete ztrácet čas? V případě zájmu Vám rád pošlu odkaz na virtuální prohlídku, abyste měli úplnou představu o nabízené nemovitosti (360C prohlídka s možností orientace ve videu dle vašich představ).

Parametry bytu

Cena
21 000 Kč /za měsíc
Poznámka k ceně
+ zálohy na služby 3200 kč + elektřina. Vratná kauce 24200 kč, provize 21000 kč + DPH
Aktualizováno
20. 11. 2025
Adresa
Škrábkových, Praha, Letňany
ID
N08564
Stavba
Skeletová
Stav objektu
Novostavba
Patro
2.
Vybaveno
Částečně
Lokalita objektu
Klidná část obce
Vlastnictví
Osobní
Užitná plocha
41 m2
Třída energetické náročnosti
C - Úsporná
Ukazatel energetické náročnosti
80 kWh/m2 za rok
Elektřina
230V
Komunikace
Asfaltová
Doprava
Vlak, Dálnice, Silnice, MHD, Autobus
Voda
Vodovod
Topné těleso
Radiátory
Zdroj topení
Ústřední dálkové
Zdroj teplé vody
Centrální dálkový ohřev
Balkon
Garáž
Lodžie
Výtah
Bezbarierový přístup

Kontaktovat makléře

Máte zájem o tento byt?

Tímto, v souladu s nařízením Evropského parlamentu a Rady (EU) 2016/679, v platném znění, prohlašuji, že mi je alespoň 16 let a uděluji tak svůj souhlas se zpracováním zadaných údajů (jméno, telefon, e-mail, ip adresa) společnosti B3 Technology, s.r.o., IČ: 07330600, se sídlem Novostavby 126/23, 435 11 Lom (správce dat), za účelem předání dotazu z tohoto formuláře Vámi vybranému inzerentovi a zpětného kontaktování mé osoby. Osobní údaje bude správce zpracovávat manuálně i automaticky přímo prostřednictvím svých zaměstnanců. Informace předané tímto formulářem budou uloženy v databázi správce maximálně po dobu 10 let. Odvolání souhlasu s uložením a zpracováním poskytnutých dat lze e-mailem na info@vitio.cz. V případě podezření na neoprávněné použití Vámi poskytnutých údajů máte právo předat podnět k šetření Úřadu pro ochranu osobních údajů. Více informací
Chystáte se prodat nemovitost?
Pomůžeme Vám!

Inzerát si prohlédlo 0 lidí

Prodejce

Lukáš Kubát

Lukáš Kubát

Hlídací pes

Chcete dostávat emailem podobné nabídky pronájmu bytů 2+kk v Praze 9?

Podobné nemovitosti