Pronájem bytu 2+kk, Praha - Dolní Měcholupy, Honzíkova, 57 m2 (ID: 2508829)

Honzíkova, Praha 10, Dolní Měcholupy

25 000 Kč /za měsíc Získejte výhodnou HYPOTÉKU

(+ poplatky 3.500,-Kč/měs. + vlastní spotřeba elektřiny ( cca 800,-Kč/měs.) a internet)

Exkluzivní partneři v Praze 10

Stěhovací služby

Výkup a prodej starého nábytku

Informace k bytu

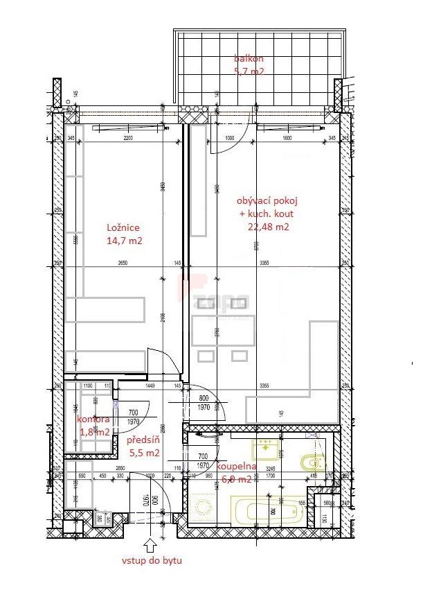
Exkluzivně nabízíme k pronájmu nový krásný byt 2+kk/B o velikosti 57 m2 (z toho 51,3 a balkon 5,7 m2) v 5. patře (s výtahem) v novostavbě z roku 2020 a s garážovým stáním v přízemí domu, v ul. Honzíkova na Praze 10 - Štěrboholy.

Byt je nadstandardně částečně zařízený se západní orientací směrem do klidného vnitrobloku. V ceně nájmu je zahrnuto i garážové stání o velikosti 27,4 m2.

Vybavení bytu: kuchyňská linka s vestavěnými spotřebiči zn. Siemens (varná deska, myčka, lednice s mrazákem, el. trouba) , v předsíni vestavěné šatní skříně, prostorná komora, ložnice se šatnou (2x šatní skříně) , v oknech předokenní žaluzie.

Dispozice bytu: obývací pokoj je propojen s kuchyňským koutem a balkonem, ložnice je samostatná a neprůchozí, v koupelně je vana a WC + prostor pro pračku.

Na podlahách je dřevěná plovoucí podlaha nebo dlažba. Vytápění bytu je dálkové.
K užívání je garážové stání v přízemí domu o velikosti 27,4 m2. Parkování je také možné v ulici nebo v okolí.

Byt je volný okamžitě, je ideální pro 1-2 dospělé osoby, nekuřáky a bez domácích zvířat.

Byt je v klidném, tichém místě s veškerou občanskou vybaveností. V blízkosti je supermarket Lidl, Penny market, lékárna a restaurace a další obchody, nákupní centrum Štěrboholy, hned vedle domu je stezka podél Hostavického potoka směrem k retenční nádrži Slatina. Výborná dostupnost do centra Prahy- na autobus cca 5min chůzí a 16 min na metro A Skalka. Autem skvělá dostupnost do centra- 5 min na obchvat Prahy (jižní spojka).

Nájemné je výši 25.000,-Kč/měsíčně + poplatky 3.500,- Kč/měsíčně/byt + vlastní spotřeba el. ( cca 800,-Kč/měs.) a internet.

Při podpisu smlouvy je třeba uhradit první nájemné + kauci 2 nájmy + provizi RK.

Parametry bytu

Cena
25 000 Kč /za měsíc
Poznámka k ceně
+ poplatky 3.500,-Kč/měs. + vlastní spotřeba elektřiny ( cca 800,-Kč/měs.) a internet
Aktualizováno
13. 11. 2025
Adresa
Honzíkova, Praha 10, Dolní Měcholupy
ID
235-1209
Stavba
Skeletová
Stav objektu
Novostavba
Patro
5. z 7
Vybaveno
Částečně
Typ objektu
Patrový
Vlastnictví
Osobní
Užitná plocha
57 m2
Podlahová plocha
60 m2
Třída energetické náročnosti
B - Velmi úsporná
Topení
Ústřední dálkové
Telekomunikace
Internet
Doprava
Dálnice, MHD
Balkon
Výtah
Bezbarierový přístup
Parkování

Kontaktovat makléře

Realitní kancelář

Logo ZAPA reality, s.r.o.

ZAPA reality, s.r.o.

náměstí 14. října 1307/2, Praha

Chystáte se prodat nemovitost?
Pomůžeme Vám!

Máte zájem o tento byt?

Tímto, v souladu s nařízením Evropského parlamentu a Rady (EU) 2016/679, v platném znění, prohlašuji, že mi je alespoň 16 let a uděluji tak svůj souhlas se zpracováním zadaných údajů (jméno, telefon, e-mail, ip adresa) společnosti B3 Technology, s.r.o., IČ: 07330600, se sídlem Novostavby 126/23, 435 11 Lom (správce dat), za účelem předání dotazu z tohoto formuláře Vámi vybranému inzerentovi a zpětného kontaktování mé osoby. Osobní údaje bude správce zpracovávat manuálně i automaticky přímo prostřednictvím svých zaměstnanců. Informace předané tímto formulářem budou uloženy v databázi správce maximálně po dobu 10 let. Odvolání souhlasu s uložením a zpracováním poskytnutých dat lze e-mailem na info@vitio.cz. V případě podezření na neoprávněné použití Vámi poskytnutých údajů máte právo předat podnět k šetření Úřadu pro ochranu osobních údajů. Více informací
Chystáte se prodat nemovitost?
Pomůžeme Vám!

Inzerát si prohlédlo 1 lidí

Prodejce

Roman Brož

Roman Brož

Hlídací pes

Chcete dostávat emailem podobné nabídky pronájmu bytů 2+kk v Praze 10?

Podobné nemovitosti