Prodej rodinného domu, Miřetice, 259 m2

Miřetice

1 Kč /za nemovitost HYPOTÉKA od 0 Kč /za měsíc

(info v RK)

Exkluzivní partneři v Miřeticích

Informace k domu

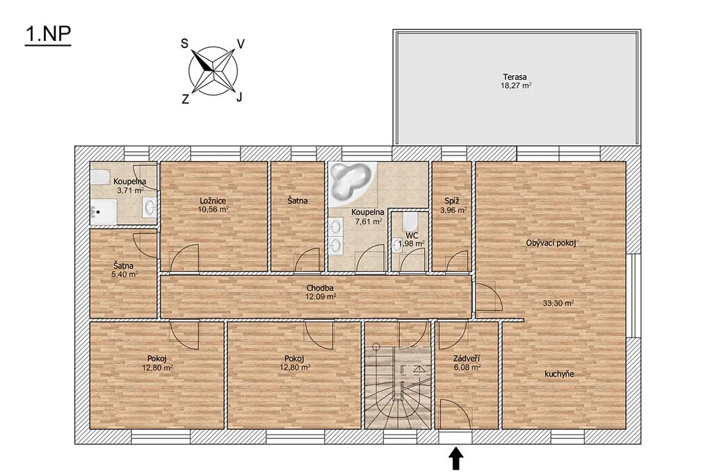
!!!PRODEJ DOMU PO VELKÉ SLEVĚ!!! Nabízíme k prodeji novostavbu moderního, patrového rodinného domu, o dispozici 5+kk s terasou a dvojgaráží s dílnou, která je situována na krásném místě, obklopena lesy a louky, v obci Miřetice, okr. Benešov. Dům leží na pozemku o celkové výměře 1181m2, zastavěná plocha domu je 178m2 a plocha užitná 259m2 vč. dvojgaráže, ale bez terasy domu, která má výměru 18m2. Dispozice domu - dům je stavěn terasovitě. V přízemí domu - vstup do domu ze zahrady - se nachází zádveří  a navazující chodba (15m2), dvojgaráž (47m2), dílna nebo sklad (22m2), prádelna (7m2), hobby místnost (23m2) s výhledem do zahrady, technická místnost (10m2) se sprchovým koutem, umyvadlem a toaletou, dvě skladovací místnosti (10m2 a 4m2) a schodiště do patra. V obytné části domu - vchod z ulice - se nachází zádveří (6m2), chodba (12m2),  obývací pokoj (33m2) s kuchyňským koutem - zde je instalována moderní kuchyňská linka vč. vestavných spotřebičů, jídelnou a vstupem na terasu domu, spíž (4m2), ložnice (11m2) se šatnou (5m2) a vlastní koupelnou (4m2) se sprchovým koutem, umyvadlem a toaletou, dva dětské pokoje (každý 13m2), koupelna (8m2) s vanou i  sprchovým koutem a dvojumyvadlem, samostatné WC s umyvadlem (2m2) a šatna (5m2). Z terasy, na kterou se dostanete z obývacího pokoje je nádherný výhled do okolní přírody.  Z prvního nadzemního podlaží lze lehkou úpravou vytvořit bytovou jednotku o dispozici 1+kk pro více generační bydlení se samostatným vstupem. Vytápění domu je řešeno tepelným čerpadlem typu vzduch/voda. Dále je v domě i rekuperace a dům je osazen žaluziemi na el. pohon. V obci se nachází obchod, zastávka autobusu. Škola a školka je ve  3km vzdálených Zdislavicích. Veškerá občanská vybavenost vč. obchodů,  supermarketů, lékaře, škol a restaurací je v 8km vzdálené Vlašimi. Velmi dobrá je dostupnost do Prahy - automobilem trvá na cesta na stanici metra linky C Háje nebo Chodov cca. 35min. Dům lze financovat hypotékou. Půdorysy a další technické dokumenty rádi zašleme zájemcům mailem.

Parametry domu

Cena
1 Kč /za nemovitost Spočítat hypotéku
Poznámka k ceně
info v RK
Aktualizováno
3. 11. 2025
Adresa
Miřetice
Stavba
Cihlová
Stav objektu
Novostavba
Vybaveno
Částečně
Druh objektu
Samostatný
Lokalita objektu
Centrum obce
Užitná plocha
259 m2
Zastavěná plocha
178 m2
Plocha pozemku
1181 m2
Elektřina
230V, 400V
Odpad
ČOV pro celý objekt
Topení
Podlahové
Komunikace
Asfaltová
Doprava
Dálnice, Silnice, Autobus
Voda
Místní zdroj vody
Garáž
Sklep
Bezbarierový přístup
Parkování

Kontaktovat makléře

Realitní kancelář

Grygar reality

Krkonošská 1607/10, Praha 2

Chystáte se prodat nemovitost?
Pomůžeme Vám!

Máte zájem o tento dům?

Tímto, v souladu s nařízením Evropského parlamentu a Rady (EU) 2016/679, v platném znění, prohlašuji, že mi je alespoň 16 let a uděluji tak svůj souhlas se zpracováním zadaných údajů (jméno, telefon, e-mail, ip adresa) společnosti B3 Technology, s.r.o., IČ: 07330600, se sídlem Novostavby 126/23, 435 11 Lom (správce dat), za účelem předání dotazu z tohoto formuláře Vámi vybranému inzerentovi a zpětného kontaktování mé osoby. Osobní údaje bude správce zpracovávat manuálně i automaticky přímo prostřednictvím svých zaměstnanců. Informace předané tímto formulářem budou uloženy v databázi správce maximálně po dobu 10 let. Odvolání souhlasu s uložením a zpracováním poskytnutých dat lze e-mailem na info@vitio.cz. V případě podezření na neoprávněné použití Vámi poskytnutých údajů máte právo předat podnět k šetření Úřadu pro ochranu osobních údajů. Více informací
Chystáte se prodat nemovitost?
Pomůžeme Vám!

Inzerát si prohlédlo 0 lidí

Prodejce

Martin Kopl

Martin Kopl

Hlídací pes

Chcete dostávat emailem podobné nabídky prodeje rodinných domů v Miřeticích (okr. Benešov)?

Podobné nemovitosti