Pronájem bytu 3+kk, Praha - Libeň, Bedřichovská, 66 m2

Bedřichovská, Libeň - Praha 8

23 000 Kč /za měsíc Získejte výhodnou HYPOTÉKU

(vratná jistota, zúčtovatelné zálohy 8.764,- Kč, poplatek za podnájem, internet v ceně)

Exkluzivní partneři v Praze 8

Stěhovací služby

Výkup a prodej starého nábytku

Informace k bytu

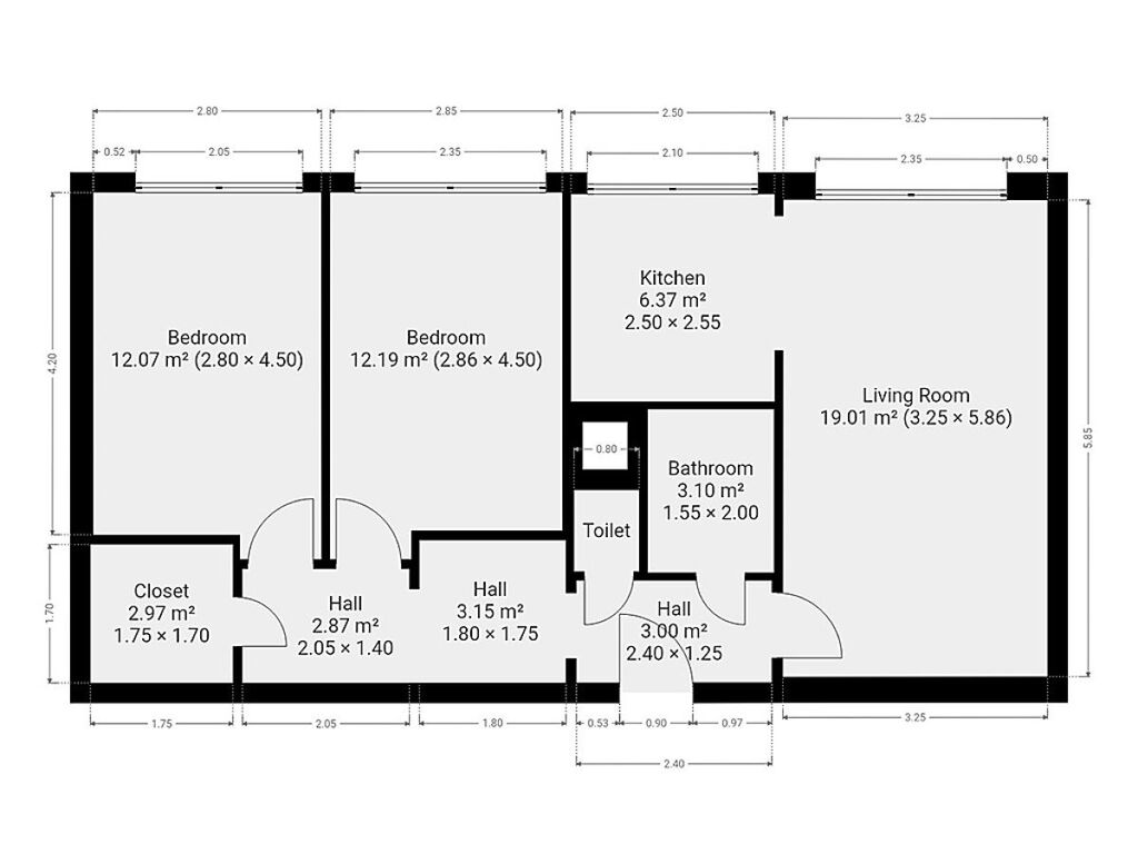
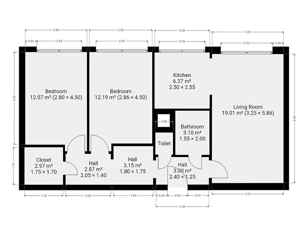
K dlouhodobému podnájmu nabízíme krásný byt o dispozici 3+kk v klidné lokalitě Praha 8 - Libeň. Byt o celkové výměře 66 m2 se nachází v 8. patře panelového domu s výtahem. K bytu patří i vnitřní a venkovní komora a rezidentům je k dispozici také kolárna.

Byt se nabízí částečně vybavený (dle fotografií). Kuchyně disponuje lednicí s mrazákem, myčkou, elektrickou troubou, varnou deskou, mikrovlnnou troubou a digestoří. Obývací část je zařízena jídelním stolem s lavicí a 2 židlemi, TV stolkem a knihovnou. Součástí první ložnice je skříň. V druhé ložnici najdeme postel s roštem, noční stolky a skříň. V koupelně je vana, umyvadlo, zrcadlo, koupelnová skříňka a pračka. Toaleta je umístěna samostatně. V předsíni je vestavěná šatní skříň, věšák, zrcadlo a botník.

Bezpečnostní vstupní dveře, podlahy dlažba + plovoucí, plastová okna, vytápění a ohřev vody centrální dálkové, aktivní internetové připojení (zahrnuto v ceně).

V okolí domu najdeme restaurace, hypermarket Kaufland, obchodní dům Ládví, lékárnu, základní a mateřskou školu, dětská hřiště, koupaliště Ládví, poštu, kulturní dům Ládví, lesopark Okrouhlík atd. Pár minut chůze od domu je vzdálena tramvajová a autobusová zastávka Štěpničná a v docházkové vzdálenosti je stanice metra C - Ládví.

Majitel preferuje zájemce bez domácích mazlíčků.

Byt je volný k nastěhování ihned.

Energetická třída: C (úsporná).

Parametry bytu

Cena
23 000 Kč /za měsíc
Poznámka k ceně
vratná jistota, zúčtovatelné zálohy 8.764,- Kč, poplatek za podnájem, internet v ceně
Aktualizováno
3. 12. 2025
Adresa
Bedřichovská, Libeň - Praha 8
ID
N5863
Stavba
Panelová
Stav objektu
Velmi dobrý
Patro
9. z 12
Vybaveno
Částečně
Typ objektu
Patrový
Lokalita objektu
Klidná část obce
Vlastnictví
Osobní
Užitná plocha
66 m2
Podlahová plocha
66 m2
Třída energetické náročnosti
C - Úsporná
Elektřina
230V
Topení
Ústřední dálkové
Telekomunikace
Internet
Doprava
Vlak, Dálnice, Silnice, MHD, Autobus
Voda
Vodovod
Výtah

Kontaktovat makléře

Máte zájem o tento byt?

Tímto, v souladu s nařízením Evropského parlamentu a Rady (EU) 2016/679, v platném znění, prohlašuji, že mi je alespoň 16 let a uděluji tak svůj souhlas se zpracováním zadaných údajů (jméno, telefon, e-mail, ip adresa) společnosti B3 Technology, s.r.o., IČ: 07330600, se sídlem Novostavby 126/23, 435 11 Lom (správce dat), za účelem předání dotazu z tohoto formuláře Vámi vybranému inzerentovi a zpětného kontaktování mé osoby. Osobní údaje bude správce zpracovávat manuálně i automaticky přímo prostřednictvím svých zaměstnanců. Informace předané tímto formulářem budou uloženy v databázi správce maximálně po dobu 10 let. Odvolání souhlasu s uložením a zpracováním poskytnutých dat lze e-mailem na info@vitio.cz. V případě podezření na neoprávněné použití Vámi poskytnutých údajů máte právo předat podnět k šetření Úřadu pro ochranu osobních údajů. Více informací
Chystáte se prodat nemovitost?
Pomůžeme Vám!

Inzerát si prohlédlo 10 lidí

Prodejce

Miloslava Kačerová

Miloslava Kačerová

Hlídací pes

Chcete dostávat emailem podobné nabídky pronájmu bytů 3+kk v Praze 8?

Podobné nemovitosti