Pronájem bytu 3+kk, Praha - Čimice, Kočova, 86 m2

Kočova, Čimice - Praha 8

39 900 Kč /za měsíc Získejte výhodnou HYPOTÉKU

(vratná jistota, zúčtovatelné zálohy 6.551,- Kč, poplatek za podnájem)

Exkluzivní partneři v Praze 8

Stěhovací služby

Výkup a prodej starého nábytku

Informace k bytu

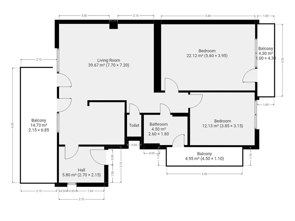
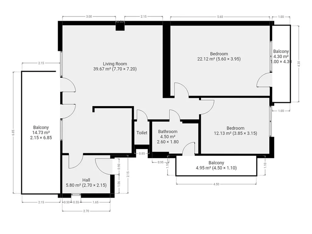
K dlouhodobému pronájmu nabízíme částečně zařízený byt dispozice 3+kk o rozloze 86 m2 po kompletní rekonstrukci ve 2. patře řadového domu na pozemku se zahradou v klidné rezidenční lokalitě pražských Čimic. Bytu vévodí rozlehlý obývací pokoj výměry téměř 40 m2 s moderní kuchyní a přístupem na terasu, na další dvě terasy se pak vchází z ložnice a koupelny. Vytápění bytu a ohřev vody je realizován plynovým kotlem, všechny místnosti jsou vybaveny klimatizací. Kromě zahrady je k dispozici parkovací stání na oploceném pozemku domu. Součástí měsíčních záloh jsou již energie a k dispozici je i vysokorychlostní internet.

K dispozici solidním zájemcům hledajícím dlouhodobé kvalitní bydlení k okamžitému nastěhování.

Individuální prohlídky možné po domluvě kdykoliv včetně pozdních večerních hodin a víkendů.

Byt pronajímá Ideální nájemce - služba, se kterou budete bydlet bezstarostně a za férových podmínek. Když se něco přihodí, k dispozici jsou správci, kteří s Vámi vše vyřeší. Pomůžeme s veškerou administrativou, s nastavením plateb a zajistíme Vám speciální pojištění. Pojďte bydlet s námi!

Parametry bytu

Cena
39 900 Kč /za měsíc
Poznámka k ceně
vratná jistota, zúčtovatelné zálohy 6.551,- Kč, poplatek za podnájem
Aktualizováno
3. 12. 2025
Adresa
Kočova, Čimice - Praha 8
ID
N7005
Stavba
Cihlová
Stav objektu
Po rekonstrukci
Patro
3. z 3
Vybaveno
Částečně
Typ objektu
Patrový
Lokalita objektu
Klidná část obce
Vlastnictví
Osobní
Užitná plocha
86 m2
Podlahová plocha
86 m2
Elektřina
230V
Topení
Ústřední plynové
Balkon
Terasa
Výtah
Parkování

Kontaktovat makléře

Máte zájem o tento byt?

Tímto, v souladu s nařízením Evropského parlamentu a Rady (EU) 2016/679, v platném znění, prohlašuji, že mi je alespoň 16 let a uděluji tak svůj souhlas se zpracováním zadaných údajů (jméno, telefon, e-mail, ip adresa) společnosti B3 Technology, s.r.o., IČ: 07330600, se sídlem Novostavby 126/23, 435 11 Lom (správce dat), za účelem předání dotazu z tohoto formuláře Vámi vybranému inzerentovi a zpětného kontaktování mé osoby. Osobní údaje bude správce zpracovávat manuálně i automaticky přímo prostřednictvím svých zaměstnanců. Informace předané tímto formulářem budou uloženy v databázi správce maximálně po dobu 10 let. Odvolání souhlasu s uložením a zpracováním poskytnutých dat lze e-mailem na info@vitio.cz. V případě podezření na neoprávněné použití Vámi poskytnutých údajů máte právo předat podnět k šetření Úřadu pro ochranu osobních údajů. Více informací
Chystáte se prodat nemovitost?
Pomůžeme Vám!

Inzerát si prohlédlo 7 lidí

Prodejce

Miloslava Kačerová

Miloslava Kačerová

Hlídací pes

Chcete dostávat emailem podobné nabídky pronájmu bytů 3+kk v Praze 8?

Podobné nemovitosti