Pronájem bytu 2+kk, Praha - Modřany, Kolmanova, 61 m2

Kolmanova, Praha 4, Modřany

23 000 Kč /za měsíc Získejte výhodnou HYPOTÉKU

(+ zálohy na služby a energie 4000,-Kč + elektřina)

Exkluzivní partneři v Praze 4

Stěhovací služby

Výkup a prodej starého nábytku

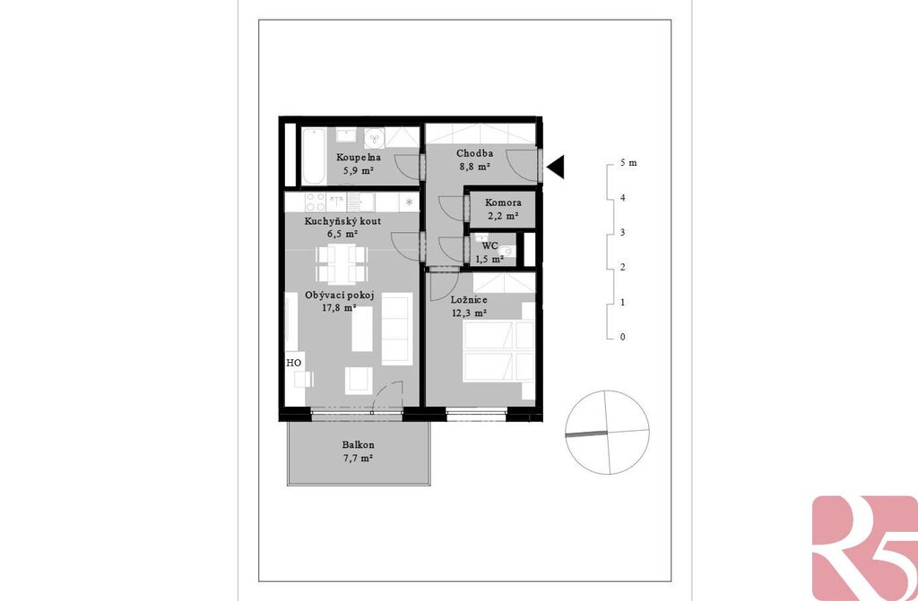
Informace k bytu

Pronájem 2kk 58m2 ve stylovém areálu Modřanský Cukrovar na Praze 4

K pronájmu nový byt 2+kk o dispozici 58 m +7,7m2 lodžie + 3m2 sklep.

Byt v novém moderním komplexu Modřanský Cukrovar.

V bytě kvalitní dřevěné podlahy, obývací pokoj s prostornou kuchyní, samostatná ložnice. Velká vstupní chodba s komorou, koupelnou s vanou a oddělenou toaletou.

Vybavení systémem smarthome, vzduchotechnikou i venkovními žaluziemi. Orientace na západ.

Možnost užívání společné střešní terasy či relaxační zóny v přilehlých zahradách.

Dům postaven s důrazem na šetrné a efektivní využití technologií (fotovoltaika, fototermika, systém využití šedé vody) díky které byt vyniká nízkou energetickou náročností (B velmi úsporná).

Lokalita má vynikající dostupnost do centra: 5min tramvajová/autobusová zastávka (15min do centra), potraviny 150m, cyklostezka, školy, školky. Přímo v komplexu je také stanoviště Rekol a nabíječka pro elektromobily.

Parametry bytu

Cena
23 000 Kč /za měsíc
Poznámka k ceně
+ zálohy na služby a energie 4000,-Kč + elektřina
Aktualizováno
28. 10. 2025
Adresa
Kolmanova, Praha 4, Modřany
ID
R519522
Stavba
Cihlová
Stav objektu
Novostavba
Patro
2. z 5
Vybaveno
Ne
Typ objektu
Patrový
Vlastnictví
Osobní
Užitná plocha
61 m2
Podlahová plocha
68 m2
Třída energetické náročnosti
B - Velmi úsporná
Elektřina
230V, 400V
Odpad
Veřejná kanalizace
Topení
Ústřední dálkové
Komunikace
Asfaltová, Dlážděná
Telekomunikace
Internet, Kabelová televize
Doprava
MHD
Voda
Vodovod, Retenční nádrž na dešt’ovou vodu
Zdroj topení
Ústřední dálkové
Balkon
Garáž
Sklep
Terasa
Výtah
Bezbarierový přístup
Nízkoenergetický

Kontaktovat makléře

Realitní kancelář

Logo REALITY 5

REALITY 5

Hvězdova 1594/19, Praha

Chystáte se prodat nemovitost?
Pomůžeme Vám!

Máte zájem o tento byt?

Tímto, v souladu s nařízením Evropského parlamentu a Rady (EU) 2016/679, v platném znění, prohlašuji, že mi je alespoň 16 let a uděluji tak svůj souhlas se zpracováním zadaných údajů (jméno, telefon, e-mail, ip adresa) společnosti B3 Technology, s.r.o., IČ: 07330600, se sídlem Novostavby 126/23, 435 11 Lom (správce dat), za účelem předání dotazu z tohoto formuláře Vámi vybranému inzerentovi a zpětného kontaktování mé osoby. Osobní údaje bude správce zpracovávat manuálně i automaticky přímo prostřednictvím svých zaměstnanců. Informace předané tímto formulářem budou uloženy v databázi správce maximálně po dobu 10 let. Odvolání souhlasu s uložením a zpracováním poskytnutých dat lze e-mailem na info@vitio.cz. V případě podezření na neoprávněné použití Vámi poskytnutých údajů máte právo předat podnět k šetření Úřadu pro ochranu osobních údajů. Více informací
Chystáte se prodat nemovitost?
Pomůžeme Vám!

Inzerát si prohlédlo 2 lidí

Prodejce

Miloslav Shejbal

Miloslav Shejbal

Hlídací pes

Chcete dostávat emailem podobné nabídky pronájmu bytů 2+kk v Praze 4?

Podobné nemovitosti