Prodej rodinného domu, Oskořínek, Družstevní, 874 m2

Družstevní, Oskořínek

9 999 000 Kč /za nemovitost HYPOTÉKA od 44 689 Kč /za měsíc
Exkluzivní partneři v Oskořínku

Informace k domu

Prodej domu, Oskořínek, ul. Družstevní

Nabízíme k prodeji prostornou nemovitost v obci Oskořínek, okres Nymburk, tvořenou dvěma spojenými domy s dvěma čísly popisnými a rozsáhlými nebytovými prostory. Celková plocha pozemku je 1.167 m².

Oba domy nabízí spoustu místností a prostornou půdu vhodnou k dalšímu rozšíření obytné části. Dále bývalý obchod s parkováním hned vedle vchodu.
Jedná se tedy o nemovitost, která je ideální pro podnikání nebo vybudování bytových jednotek.

1.PP - 4 místnosti - 139,53 m²
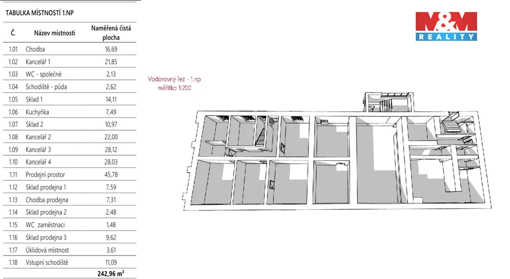
1.NP - 9 místností - 242,96 m²
2.NP - 13 místností - 631,23 m²

Veškeré inženýrské sítě jsou zavedeny, plyn je na hranici pozemku. Vytápění zajišťují elektrická akumulační kamna. Za domem se nachází zahrada o výměře 667 m² s vlastní kopanou studnou.

Dobrá dopravní dostupnost - autobusová i vlaková zastávka v blízkosti. V obci Oskořínek je také MŠ, pošta a obchod se smíšeným zbožím. ZŠ je v sousední obci Hrubý Jeseník.

Koupi je možné financovat hypotékou, pro kterou vám rádi zařídíme nabídku s výhodnou úrokovou sazbou.

Parametry domu

Cena
9 999 000 Kč /za nemovitost Spočítat hypotéku
Aktualizováno
24. 2. 2026
Adresa
Družstevní, Oskořínek
ID
924401
Stavba
Smíšená
Stav objektu
Dobrý
Vybaveno
Částečně
Druh objektu
Samostatný
Lokalita objektu
Klidná část obce
Vlastnictví
Osobní
Užitná plocha
874 m2
Plocha pozemku
1167 m2

Kontaktovat makléře

Realitní kancelář

Logo M&M reality

M&M reality

ulice Krakovská 583/9, Praha

Chystáte se prodat nemovitost?
Pomůžeme Vám!

Máte zájem o tento dům?

Tímto, v souladu s nařízením Evropského parlamentu a Rady (EU) 2016/679, v platném znění, prohlašuji, že mi je alespoň 16 let a uděluji tak svůj souhlas se zpracováním zadaných údajů (jméno, telefon, e-mail, ip adresa) společnosti B3 Technology, s.r.o., IČ: 07330600, se sídlem Novostavby 126/23, 435 11 Lom (správce dat), za účelem předání dotazu z tohoto formuláře Vámi vybranému inzerentovi a zpětného kontaktování mé osoby. Osobní údaje bude správce zpracovávat manuálně i automaticky přímo prostřednictvím svých zaměstnanců. Informace předané tímto formulářem budou uloženy v databázi správce maximálně po dobu 10 let. Odvolání souhlasu s uložením a zpracováním poskytnutých dat lze e-mailem na info@vitio.cz. V případě podezření na neoprávněné použití Vámi poskytnutých údajů máte právo předat podnět k šetření Úřadu pro ochranu osobních údajů. Více informací
Chystáte se prodat nemovitost?
Pomůžeme Vám!

Inzerát si prohlédlo 12 lidí

Prodejce

Aleš Anděl

Aleš Anděl

Hlídací pes

Chcete dostávat emailem podobné nabídky prodeje rodinných domů v Oskořínku?

Podobné nemovitosti