Pronájem bytu 2+kk, Praha - Záběhlice, Hlavní, 73 m2

Hlavní, Praha 4

27 000 Kč /za měsíc Získejte výhodnou HYPOTÉKU

(+ poplatky za služby 4.700,- + převod elektřiny a plynu na nájemce)

Exkluzivní partneři v Praze 4

Stěhovací služby

Výkup a prodej starého nábytku

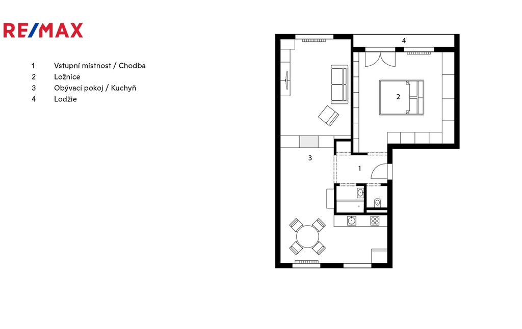
Informace k bytu

Láká vás bydlení v netradičním otevřeném prostoru, kde se snoubí design, funkčnost a pohodlí?
Nabízíme k pronájmu jedinečný byt 2+kk (původně 4+1), o podlahové ploše cca 73 m2 + lodžie 4 m2 , v 1. nadzemním podlaží bytového domu v pražských Záběhlicích, který prošel promyšlenou rekonstrukcí a nabízí originální atmosféru industriálního stylu. Úpravou dispozice vznikl vzdušný, otevřený prostor s podlahovou plochou cca 41 m², propojující kuchyň, jídelnu a obývací část. Jednotlivé části jsou pouze opticky rozděleny a navazují na předsíň. Kuchyňská linka je plně vybavena: plynová varná deska, elektrická trouba, myčka, lednice s mrazákem a pračka se sušičkou. Z otevřené předsíně je vstup do koupelny se sprchovým koutem a samostatné toalety. Ložnice o velikosti cca 23 m² nabízí 7 vestavných skříní a přímý vstup na zasklenou lodžii. Další úložné prostory zajišťuje vestavná skříň v předsíni. Orientace bytu na západ (kuchyň, jídelna) a východ (obývací část, ložnice, lodžie) zajišťuje dostatek denního světla po celý den.
Použití odhalených stropů a kombinace parketových podlah a betonové stěrky dodává bytu osobitý charakter. Celkový styl podtrhuje designový nábytek, který je součástí vybavení.
Dům prošel rekonstrukcí fasády včetně zateplení (nový energetický štítek je v přípravě). Velkou výhodou je bezproblémové parkování – bez městských parkovacích zón.
V okolí je kompletní občanská vybavenost: mateřská, základní i střední školy, ZUŠ, evangelická akademie, zdravotnická škola, Penny Market, OD Centrum s Albertem, v dojezdové vzdálenosti OC Chodov. Autobusová zastávka s přímým spojením na Smíchovské nádraží / Chodov / Kačerov/ Roztyly/ Skalku / Florenc je přímo před domem s dojezdem na Metro C – Roztyly cca 10 minut. Dětská hřiště, pumptrack, skatepark v docházkové vzdálenosti. Milovníci sportu ocení blízkost areálu Hamr s množstvím sportovních aktivit, či možnosti procházek v okolí Hamerského rybníka.
Pokud Vás nabídka zaujala, neváhejte mne kontaktovat, budu se na Vás těšit při prohlídce!
Pronajímatel si vyhrazuje právo výběru nájemce dle jím zvolených kritérií.

Parametry bytu

Cena
27 000 Kč /za měsíc
Poznámka k ceně
+ poplatky za služby 4.700,- + převod elektřiny a plynu na nájemce
Aktualizováno
21. 10. 2025
Adresa
Hlavní, Praha 4
ID
257-NP01358
Stavba
Cihlová
Stav objektu
Velmi dobrý
Patro
1. z 10
Vybaveno
Ano
Lokalita objektu
Klidná část obce
Vlastnictví
Osobní
Užitná plocha
73 m2
Podlahová plocha
77 m2
Třída energetické náročnosti
E - Nehospodárná
Ukazatel energetické náročnosti
139 kWh/m2 za rok
Plyn
Plynovod
Odpad
Veřejná kanalizace
Voda
Vodovod
Lodžie
Výtah

Kontaktovat makléře

Realitní kancelář

Logo RE/MAX Cool

RE/MAX Cool

Roztylské náměstí 393/35, Praha 4

Chystáte se prodat nemovitost?
Pomůžeme Vám!

Máte zájem o tento byt?

Tímto, v souladu s nařízením Evropského parlamentu a Rady (EU) 2016/679, v platném znění, prohlašuji, že mi je alespoň 16 let a uděluji tak svůj souhlas se zpracováním zadaných údajů (jméno, telefon, e-mail, ip adresa) společnosti B3 Technology, s.r.o., IČ: 07330600, se sídlem Novostavby 126/23, 435 11 Lom (správce dat), za účelem předání dotazu z tohoto formuláře Vámi vybranému inzerentovi a zpětného kontaktování mé osoby. Osobní údaje bude správce zpracovávat manuálně i automaticky přímo prostřednictvím svých zaměstnanců. Informace předané tímto formulářem budou uloženy v databázi správce maximálně po dobu 10 let. Odvolání souhlasu s uložením a zpracováním poskytnutých dat lze e-mailem na info@vitio.cz. V případě podezření na neoprávněné použití Vámi poskytnutých údajů máte právo předat podnět k šetření Úřadu pro ochranu osobních údajů. Více informací
Chystáte se prodat nemovitost?
Pomůžeme Vám!

Inzerát si prohlédlo 1 lidí

Prodejce

Ing. Petra Kaulitzová

Ing. Petra Kaulitzová

Hlídací pes

Chcete dostávat emailem podobné nabídky pronájmu bytů 2+kk v Praze 4?

Podobné nemovitosti