Prodej rodinného domu, Hřiměždice, 418 m2 (ID: 2471367)

Hřiměždice

41 500 000 Kč /za nemovitost HYPOTÉKA od 185 480 Kč /za měsíc
Exkluzivní partneři v Hřimeždicích

Revize elektrických zařízení

Informace k domu

Exkluzivní nemovitost s dvěma stavbami a vlastním molem u Slapské přehrady

Nabízíme jedinečnou příležitost ke koupi exkluzivního rekreačního areálu na pozemku o velikosti 2 842 m², situovaného na samém okraji zástavby s přímým přístupem k vodě. Součástí areálu jsou dva samostatné rekreační objekty, venkovní bazén, venkovní kuchyně a přístřešky pro auta. Lokalita nabízí maximální soukromí a nádhernou přírodu v bezprostřední blízkosti Slapské přehrady.

Objekt 1 – Rekreační chata

Zastavěná plocha: 127 m²
Pozemek: 2 140 m²
Dispozice:
Přízemí: prostorný obývací pokoj s dvěma krbovými kamny a kuchyňským koutem se vstupem na terasu, ložnice se šatnou, WC, předsíň
Patro: 3 ložnice, každá s vlastním sociálním zařízením a vstupem na terasu
Suterén: sklep, technická místnost

Technologie: bioklárna (biologická čistička), elektrické vytápění, solární kolektory na ohřev vody
Bezpečnost: kamerový zabezpečovací systém

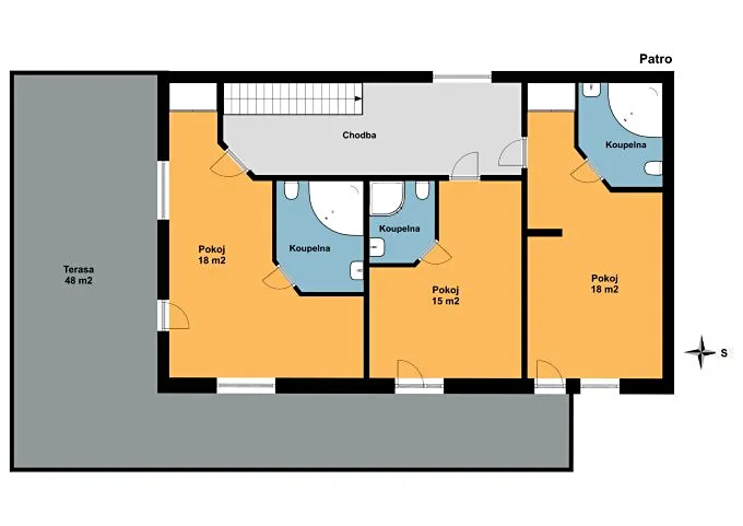
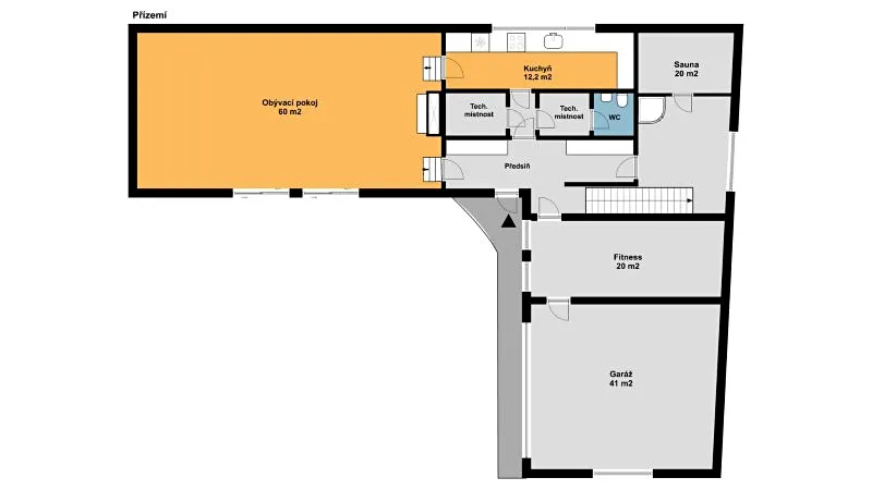
Objekt 2 – Novostavba rodinného domu (2016)

Zastavěná plocha: 146 m²
Pozemek: 702 m²
Dispozice:
Přízemí: prostorný obývací pokoj s krbovými kamny a velkorysým prosklením, kuchyň, sauna, fitness, garáž pro dva vozy, technická místnost, WC
Patro: 3 apartmány, každý s vlastním sociálním zařízením, jeden apartmán s kuchyní, vstup na venkovní terasu

Technologie: bioklárna, elektrické vytápění, solární kolektory
Bezpečnost: kamerový systém napojený na bezpečnostní službu

Další benefity

venkovní bazén
venkovní kuchyně
přístřešky pro parkování
vlastní molo vhodné pro loď i koupání
exkluzivní místo s nádhernými výhledy a zajištěným soukromím

Parametry domu

Cena
41 500 000 Kč /za nemovitost Spočítat hypotéku
Aktualizováno
8. 10. 2025
Adresa
Hřiměždice
Stavba
Smíšená
Stav objektu
Velmi dobrý
Vybaveno
Ano
Druh objektu
Samostatný
Lokalita objektu
Polosamota
Užitná plocha
418 m2
Plocha pozemku
2140 m2
Třída energetické náročnosti
G - Mimořádně nehospodárná
Doprava
Silnice, Autobus
Garáž
Sklep
Parkování
Bazén

Kontaktovat makléře

Máte zájem o tento dům?

Tímto, v souladu s nařízením Evropského parlamentu a Rady (EU) 2016/679, v platném znění, prohlašuji, že mi je alespoň 16 let a uděluji tak svůj souhlas se zpracováním zadaných údajů (jméno, telefon, e-mail, ip adresa) společnosti B3 Technology, s.r.o., IČ: 07330600, se sídlem Novostavby 126/23, 435 11 Lom (správce dat), za účelem předání dotazu z tohoto formuláře Vámi vybranému inzerentovi a zpětného kontaktování mé osoby. Osobní údaje bude správce zpracovávat manuálně i automaticky přímo prostřednictvím svých zaměstnanců. Informace předané tímto formulářem budou uloženy v databázi správce maximálně po dobu 10 let. Odvolání souhlasu s uložením a zpracováním poskytnutých dat lze e-mailem na info@vitio.cz. V případě podezření na neoprávněné použití Vámi poskytnutých údajů máte právo předat podnět k šetření Úřadu pro ochranu osobních údajů. Více informací
Chystáte se prodat nemovitost?
Pomůžeme Vám!

Inzerát si prohlédlo 2 lidí

Prodejce

Daniela Göttlicher

Daniela Göttlicher

Hlídací pes

Chcete dostávat emailem podobné nabídky prodeje rodinných domů v Hřimeždicích?

Podobné nemovitosti