Prodej chalupy, Počedělice, 130 m2

Počedělice, Orasice

3 190 000 Kč /za nemovitost HYPOTÉKA od 14 257 Kč /za měsíc
Exkluzivní partneři v Počedělicích

Okna a dveře

Rekonstrukce

Zámečnické práce

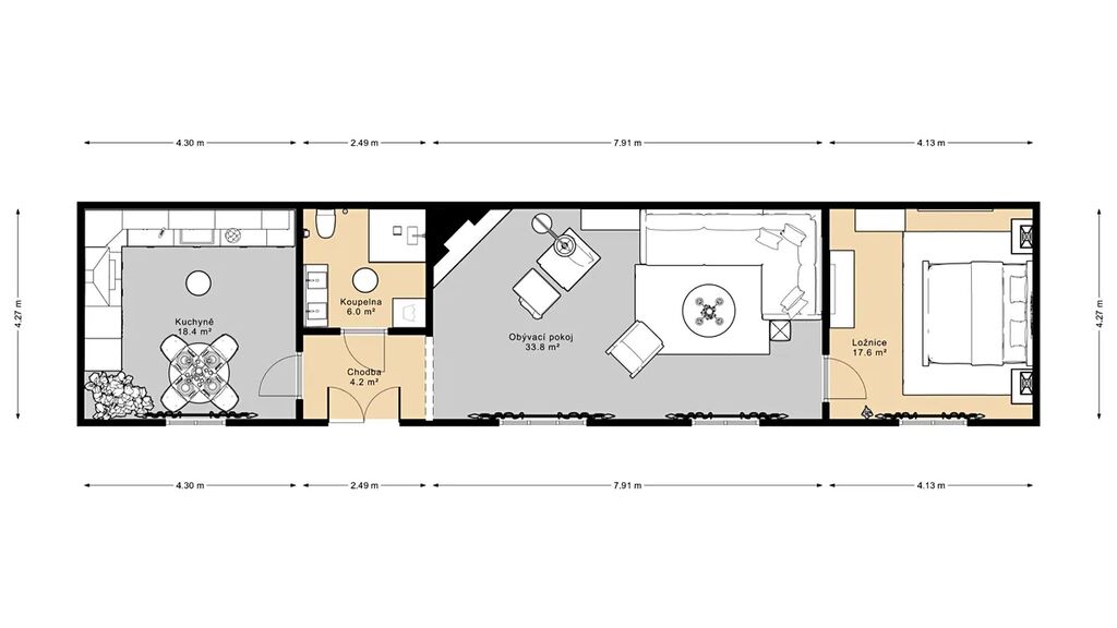
Informace k domu

Nabízím Vám k prodeji venkovský dům na rozlehlém rovinatém pozemku v obci Počedělice Orasice.

Pozemek o výměře 1059 m2 nabízí několik možností využití ať už k bydlení, rekreaci nebo podnikání. Stávající dům o podlahové ploše 80 m2 byl důkladně vyklizen a připraven k rekonstrukci ve venkovském stylu s přiznanými kamennými zdmi a stropními dřevěnými trámy. Podlahová plocha může být využita jako prostorné 2+1 nebo 3+kk s kuchyňským koutem umístěným v hlavní obytné místnosti. V domě jsou celkem tři komíny, z toho jeden zaslepený. V hlavním prostoru se přímo nabízí komín využít k instalaci krbových kamen. Nemovitosti bylo v minulosti přiděleno číslo evidenční z důvodu nemožnosti vlastnit více nemovitostí k bydlení, po dokončení rekonstrukce lze zažádat o číslo popisné.

Pozemek disponuje třemi vjezdy, nabízí se zde možnost případného využití stodoly k různým typům podnikání. Podle informací ze stavebního úřadu není omezena zastavitelnost a je tedy možné využít plochu pozemku i k nové stavbě domu venkovského typu a stávající dům pak například po rekonstrukci pronajímat k rekreaci. Stodola disponuje podlahovou plochou zhruba 55 m2 a je částečně podsklepena (cca 13 m2). Do původního domu i stodoly je přivedena elektřina, u vstupní branky je nová vodovodní šachta a z ní vybudován přívod vody přes zahradu do blízkosti stávajícího domu. Jímka o objemu 4 m3 je připravena k osazení do již vykopané jámy před domem a je součástí prodeje stejně jako karavan využívaný dosud majiteli na občasné přespání při stavebních pracích. U karavanu je zbudováno dočasné suché WC.

V obci Orasice a sousedních Počedělicích najdete základní občanskou vybavenost a vše ostatní v 10 km vzdálených Lounech. Lokalita je proslulá malebnou přírodou kolem řeky Ohře a hojně vyhledávaná ať už k rekreaci nebo jako příměstské bydlení.

Pro další informace nebo termín prohlídky mě neváhejte kontaktovat.

Parametry domu

Cena
3 190 000 Kč /za nemovitost Spočítat hypotéku
Aktualizováno
8. 10. 2025
Adresa
Počedělice, Orasice
ID
442526
Stavba
Kamenná
Stav objektu
V rekonstrukci
Druh objektu
Samostatný
Lokalita objektu
Klidná část obce
Užitná plocha
130 m2
Zastavěná plocha
188 m2
Podlahová plocha
80 m2
Plocha pozemku
1049 m2
Plocha zahrady
861 m2
Odpad
Jímka
Komunikace
Asfaltová
Doprava
Dálnice, Silnice, Autobus
Voda
Vodovod
Sklep
Bezbarierový přístup
Parkování

Kontaktovat makléře

Máte zájem o tento dům?

Tímto, v souladu s nařízením Evropského parlamentu a Rady (EU) 2016/679, v platném znění, prohlašuji, že mi je alespoň 16 let a uděluji tak svůj souhlas se zpracováním zadaných údajů (jméno, telefon, e-mail, ip adresa) společnosti B3 Technology, s.r.o., IČ: 07330600, se sídlem Novostavby 126/23, 435 11 Lom (správce dat), za účelem předání dotazu z tohoto formuláře Vámi vybranému inzerentovi a zpětného kontaktování mé osoby. Osobní údaje bude správce zpracovávat manuálně i automaticky přímo prostřednictvím svých zaměstnanců. Informace předané tímto formulářem budou uloženy v databázi správce maximálně po dobu 10 let. Odvolání souhlasu s uložením a zpracováním poskytnutých dat lze e-mailem na info@vitio.cz. V případě podezření na neoprávněné použití Vámi poskytnutých údajů máte právo předat podnět k šetření Úřadu pro ochranu osobních údajů. Více informací
Chystáte se prodat nemovitost?
Pomůžeme Vám!

Inzerát si prohlédlo 3 lidí

Prodejce

Andrea Hlinková

Andrea Hlinková

Hlídací pes

Chcete dostávat emailem podobné nabídky prodeje chalup v Počedělicích?

Podobné nemovitosti