Prodej domu na klíč, Bánov, 243 m2 (ID: 2470270)

Bánov

13 500 000 Kč /za nemovitost HYPOTÉKA od 60 337 Kč /za měsíc

(dohodou)

Exkluzivní partneři v Bánově

Informace k domu

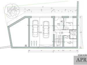
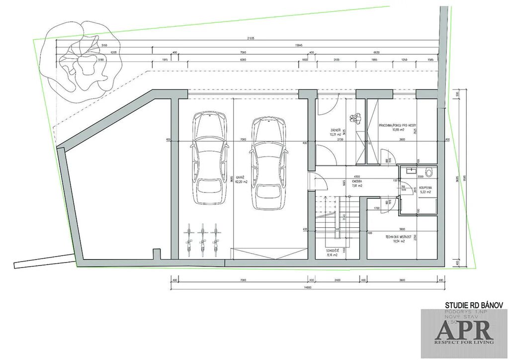
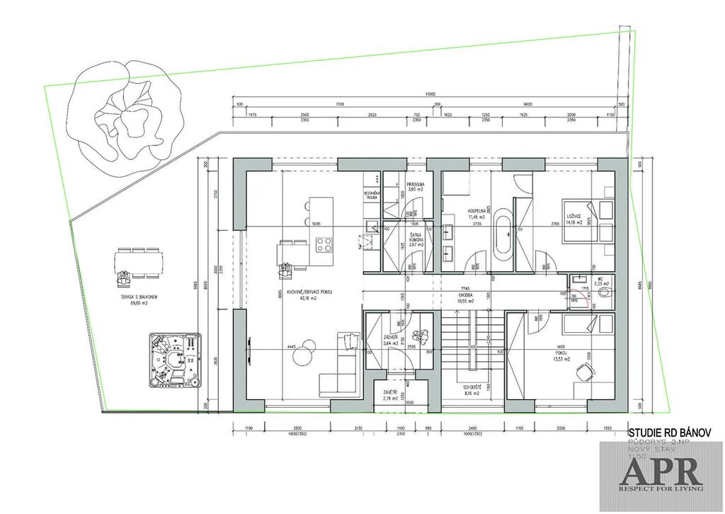
Zprostředkujeme Vám exkluzivní prodej zděného, volně stojícího rodinného domu o velikosti 4+kk, 243 m2v Bánově. Součástí vedené ceny, která již zahrnuje DPH, je dům na klíč, inženýrské sítě včetně připojeného místa EDG (EON), mimo plynu, příjezdová komunikace, veškeré projektové práce a stavební povolení, kolaudace, také dvou parkovacích míst ve vlastní garáži, základního vybavení, jako je kuchyňská linka na míru včetně spotřebičů, vestavné skříně, podlahy, dveře, zárubně, osvětlení, sanita v koupelně. Pozemek o rozloze 292 m2 je na klidném místě obce. Dle územního plánu je schválen pro rodinné bydlení. Jedná se o zděnou stavbu a nabízí se ve variantě na klíč. Topení je řešeno nízkonákladovým topením na elektřinu ve variantě A. Varianta B je podlahové topení plynové. Uvedená cena domu obsahuje základovou desku, DPH a stavba bude provedena na klíč a předána po kolaudaci k okamžitému užívání.
Parametry domu: užitná plocha 243 m2, zastavěná plocha domu 142 m2.
Financování zajišťujeme a můžete využít našich služeb při prodeji Vaší nemovitosti.
Kolaudace a předání domu - podzim 2024
Bánov je obec na jihovýchodní Moravě, leží na úpatí Bílých Karpat. Leží asi 7 km od Uherského Brodu, směrem k česko-slovenské hranici, 21 km jihovýchodně od Zlína a 268 km jihovýchodně od Prahy. Žije zde přibližně 2100 obyvatel. Obec leží u cesty E50 z Brna na Slovensko. V obci veškerá občanská vybavenost.

Parametry domu

Cena
13 500 000 Kč /za nemovitost Spočítat hypotéku
Poznámka k ceně
dohodou
Aktualizováno
7. 10. 2025
Adresa
Bánov
ID
1418
Stavba
Cihlová
Stav objektu
Velmi dobrý
Vybaveno
Ne
Druh objektu
Samostatný
Lokalita objektu
Klidná část obce
Užitná plocha
243 m2
Zastavěná plocha
243 m2
Plocha pozemku
292 m2
Třída energetické náročnosti
G - Mimořádně nehospodárná
Plyn
Plynovod
Odpad
Veřejná kanalizace

Kontaktovat makléře

Realitní kancelář

APOLLO REALITY

Hodinářská 1523, Uherský Brod

Chystáte se prodat nemovitost?
Pomůžeme Vám!

Máte zájem o tento dům?

Tímto, v souladu s nařízením Evropského parlamentu a Rady (EU) 2016/679, v platném znění, prohlašuji, že mi je alespoň 16 let a uděluji tak svůj souhlas se zpracováním zadaných údajů (jméno, telefon, e-mail, ip adresa) společnosti B3 Technology, s.r.o., IČ: 07330600, se sídlem Novostavby 126/23, 435 11 Lom (správce dat), za účelem předání dotazu z tohoto formuláře Vámi vybranému inzerentovi a zpětného kontaktování mé osoby. Osobní údaje bude správce zpracovávat manuálně i automaticky přímo prostřednictvím svých zaměstnanců. Informace předané tímto formulářem budou uloženy v databázi správce maximálně po dobu 10 let. Odvolání souhlasu s uložením a zpracováním poskytnutých dat lze e-mailem na info@vitio.cz. V případě podezření na neoprávněné použití Vámi poskytnutých údajů máte právo předat podnět k šetření Úřadu pro ochranu osobních údajů. Více informací
Chystáte se prodat nemovitost?
Pomůžeme Vám!

Inzerát si prohlédlo 2 lidí

Prodejce

Antonín Polášek

Antonín Polášek

Hlídací pes

Chcete dostávat emailem podobné nabídky prodeje domů na klíč v Bánově?

Podobné nemovitosti