Prodej domu na klíč, Liberec, 120 m2

Liberec

11 990 000 Kč /za nemovitost HYPOTÉKA od 53 588 Kč /za měsíc

(Majitel si vyhrazuje právo výběru nájemce na záladě nejvýhodnější nabídky. V případě více zájemců může RK využít pro výběr kupujícího formu aukce.)

Exkluzivní partneři v Liberci

Rekonstrukce

Úklidové služby

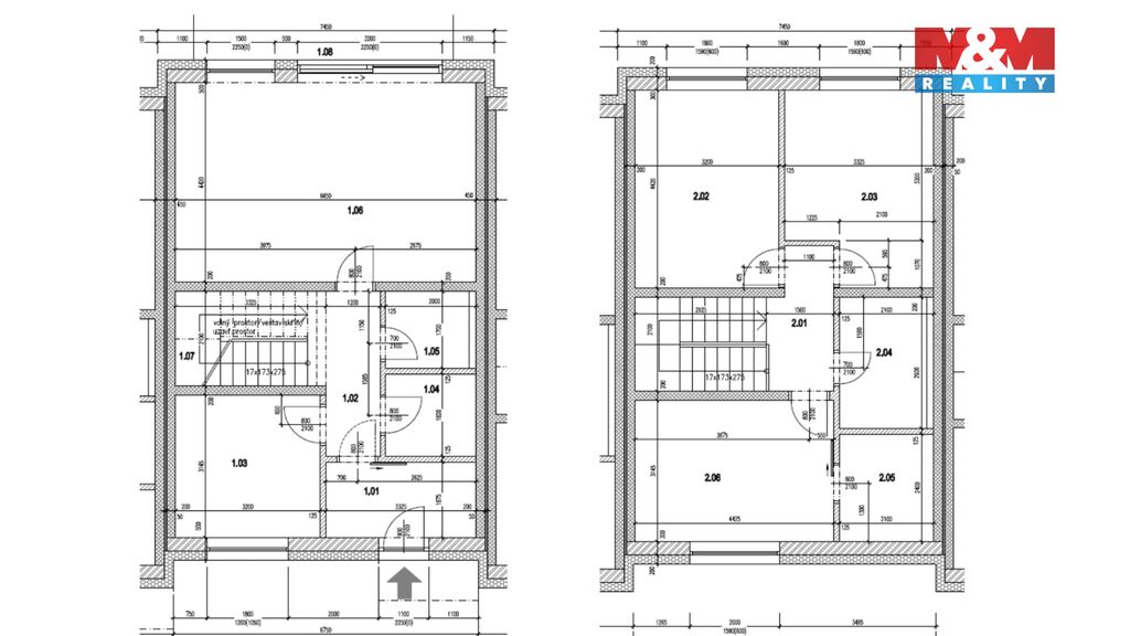
Informace k domu

Prodej řadové novostavby, 120 m², Liberec, ul. Bajkalská

Nabízíme k prodeji moderní novostavbu řadového domu v klidné části Liberce, ul. Bajkalská, katastrální území Janův Důl.
Tato nízkoenergetická nemovitost s dispozicí 4+kk a užitnou plochou 120 m² se rozprostírá ve dvou nadzemních podlažích. Dům je součástí uzavřeného rezortu pěti řadových domů, kde je kladen důraz na použití moderních materiálů. Výhodou je vytápění tepelným čerpadlem a horkovodní podlahové vytápění, trojskla v oknech a příprava na krbovou vložku. V ceně jsou zahrnuty dvě parkovací stání. Plocha pozemku činí 242 m².
Nabízíme možnost dokončení na klíč dle individuálních přání, včetně změn dispozice. Zahájení výstavby je plánováno na březen 2026, dokončení na květen 2027.
Pro více informací kontaktujte makléře.

Parametry domu

Cena
11 990 000 Kč /za nemovitost Spočítat hypotéku
Poznámka k ceně
Majitel si vyhrazuje právo výběru nájemce na záladě nejvýhodnější nabídky. V případě více zájemců může RK využít pro výběr kupujícího formu aukce.
Aktualizováno
6. 10. 2025
Adresa
Liberec
ID
921831
Stavba
Cihlová
Stav objektu
Ve výstavbě
Vybaveno
Ne
Druh objektu
Řadový
Lokalita objektu
Klidná část obce
Vlastnictví
Osobní
Užitná plocha
120 m2
Plocha pozemku
242 m2

Kontaktovat makléře

Realitní kancelář

Logo M&M reality

M&M reality

ulice Krakovská 583/9, Praha

Chystáte se prodat nemovitost?
Pomůžeme Vám!

Máte zájem o tento dům?

Tímto, v souladu s nařízením Evropského parlamentu a Rady (EU) 2016/679, v platném znění, prohlašuji, že mi je alespoň 16 let a uděluji tak svůj souhlas se zpracováním zadaných údajů (jméno, telefon, e-mail, ip adresa) společnosti B3 Technology, s.r.o., IČ: 07330600, se sídlem Novostavby 126/23, 435 11 Lom (správce dat), za účelem předání dotazu z tohoto formuláře Vámi vybranému inzerentovi a zpětného kontaktování mé osoby. Osobní údaje bude správce zpracovávat manuálně i automaticky přímo prostřednictvím svých zaměstnanců. Informace předané tímto formulářem budou uloženy v databázi správce maximálně po dobu 10 let. Odvolání souhlasu s uložením a zpracováním poskytnutých dat lze e-mailem na info@vitio.cz. V případě podezření na neoprávněné použití Vámi poskytnutých údajů máte právo předat podnět k šetření Úřadu pro ochranu osobních údajů. Více informací
Chystáte se prodat nemovitost?
Pomůžeme Vám!

Inzerát si prohlédlo 2 lidí

Prodejce

Michal Dörfl

Michal Dörfl

Hlídací pes

Chcete dostávat emailem podobné nabídky prodeje domů na klíč v Liberci?

Podobné nemovitosti