Prodej rodinného domu, Písková Lhota, Zámková, 138 m2 (ID: 2466768)

Zámková, Písková Lhota

11 899 000 Kč /za nemovitost HYPOTÉKA od 53 181 Kč /za měsíc

(včetně DPH, včetně provize)

Exkluzivní partneři v Pískové Lhotě

Informace k domu

Dovolujeme si Vám nabídnout výjimečný prodej novostavby námi realizovaného a projektovaného rodinného domu 5+1 se zahradou.

Dům byl zkolaudovaný v roce 2024 a je plně vybaven a připraven k okamžitému nastěhování. Od kolaudace byl využíván pouze jako ukázkovým dům a je v perfektním stavu.

Dispozice přízemí:
• Vstupní hala 8,2 m2
• Obývací pokoj s kuchyňským koutem (včetně kompletně vybavené nadstandardní kuchyňské linky s vestavěnými spotřebiči) a nesmí chybět ani krbový komín s napojenými designovými krbovými kamny
• Z obývacího pokoje je vstup na terasu a do zahrady
• Pracovna 13,1 m2 (nebo pokoj pro hosty)
• Koupelna s toaletou a sprchovým koutem
• Hobby místnost
• Komora

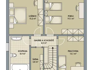
Dispozice 1.NP:
• 2 prostorné pokoje 19 m2 a 13 m2
• 1 ložnice 15,2 m2
• Koupelna s vanou a toaletou
• Prostorná šatna

Vybavení celého domu je od renomovaných dodavatelů, ať už se jedná o podlahovou krytinu (luxusní click vinylová podlaha a velkoformátová keramická dlažba), zařizovací předměty v koupelnách zn. Villeroy & Boch nebo interiérové dveře zn. Sapeli.

Vytápění zajišťuje úsporný plynový kotel a ve spojení s krbovými kamny a rekuperací je zajištěn nízkoenergetický standard.

Součástí ceny je také kompletní oplocení zahrady, zahradní parkové úpravy a před domem kryté parkovací stání. Nejsou nutné žádné další investice.

Cena je tedy konečná, včetně provize a DPH.

Rádi a zdarma Vám zajistíme výhodný hypoteční úvěr s nejnižší úrokovou sazbou na trhu.

Písková Lhota u Poděbrad se nachází v těsné blízkosti lázeňského města Poděbrady s kompletní občanskou vybaveností (školy, školky, banky, pošta, obchody, zdravotnické služby, kulturní a sportovní zařízení, MHD). Dům se nachází v blízkosti nájezdu na dálnici D11, v Praze jste tak do 20 minut. Pro milovníky přírody je tu řeka Labe, množství cyklostezek, úžasná místní pískovcová jezera ohraničená lesy

Pokud máte zájem o další informace, nebo si přejete domluvit prohlídku, neváhejte se na nás obrátit na uvedeném telefonním čísle nebo e-mailu.

*fotografie jsou pouze informativní a může na nich být zobrazeno vybavení, které není předmětem prodeje

Parametry domu

Cena
11 899 000 Kč /za nemovitost Spočítat hypotéku
Poznámka k ceně
včetně DPH, včetně provize
Aktualizováno
3. 4. 2026
Adresa
Zámková, Písková Lhota
ID
01497
Stavba
Cihlová
Stav objektu
Novostavba
Druh objektu
Řadový
Užitná plocha
138 m2
Plocha pozemku
430 m2
Třída energetické náročnosti
B - Velmi úsporná
Ukazatel energetické náročnosti
102 kWh/m2 za rok

Kontaktovat makléře

Máte zájem o tento dům?

Tímto, v souladu s nařízením Evropského parlamentu a Rady (EU) 2016/679, v platném znění, prohlašuji, že mi je alespoň 16 let a uděluji tak svůj souhlas se zpracováním zadaných údajů (jméno, telefon, e-mail, ip adresa) společnosti B3 Technology, s.r.o., IČ: 07330600, se sídlem Novostavby 126/23, 435 11 Lom (správce dat), za účelem předání dotazu z tohoto formuláře Vámi vybranému inzerentovi a zpětného kontaktování mé osoby. Osobní údaje bude správce zpracovávat manuálně i automaticky přímo prostřednictvím svých zaměstnanců. Informace předané tímto formulářem budou uloženy v databázi správce maximálně po dobu 10 let. Odvolání souhlasu s uložením a zpracováním poskytnutých dat lze e-mailem na info@vitio.cz. V případě podezření na neoprávněné použití Vámi poskytnutých údajů máte právo předat podnět k šetření Úřadu pro ochranu osobních údajů. Více informací
Chystáte se prodat nemovitost?
Pomůžeme Vám!

Inzerát si prohlédlo 11 lidí

Prodejce

Ing. Adriana Čarnecká

Ing. Adriana Čarnecká

Hlídací pes

Chcete dostávat emailem podobné nabídky prodeje rodinných domů v Pískové Lhotě (okr. Nymburk)?

Podobné nemovitosti