Pronájem bytu 2+kk, Praha - Nusle, U družstva Ideál, 44 m2

U družstva Ideál, Nusle - Praha 4

20 400 Kč /za měsíc Získejte výhodnou HYPOTÉKU

(vratná jistota, náklady na bydlení 5 500,-Kč, poplatek za podnájem)

Exkluzivní partneři v Praze 4

Stěhovací služby

Výkup a prodej starého nábytku

Informace k bytu

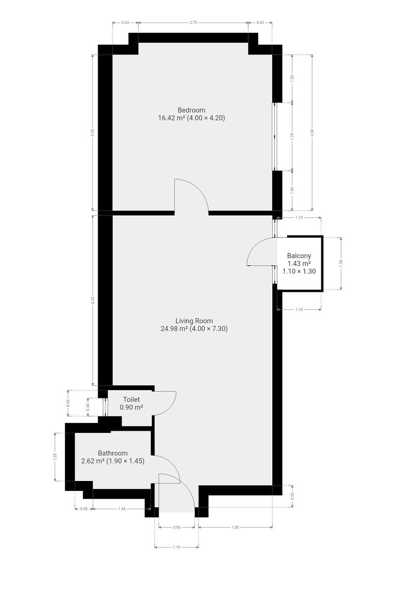
K dlouhodobému podnájmu nabízíme světlý byt o dispozici 3+kk v dobře dostupné a atraktivní lokalitě Praha 4 - Nusle. Byt o celkové výměře 44 m² se nachází v 2. patře udržovaného bytového domu bez výtahu. K bytu náleží balkon s výhledem do zeleně a praktický sklep.

Byt je nabízen částečně vybavený, což dává možnost doladit si interiér podle vlastního vkusu. Kuchyně je vybavena lednicí s mrazákem, elektrickou a mikrovlnnou troubou, indukční varnou deskou, digestoří a pračkou. Obytná část disponuje jídelním koutem, stolem a také televizorem. Z obytné místnosti je přímý vstup na balkon. K dispozici je rovněž samostatný pokoj, využitelný jako ložnice. Je zařízen postelí a dostatkem úložného prostoru. Koupelna je vybavena vanou a umyvadlem, toaleta je samostatná.

V okolí domu je kompletní občanská vybavenost – obchodní centrum Arkády Pankrác, supermarket Albert nebo Lidl, lékařská péče, restaurace a kavárny, pošta, fitness centra. Pro volný čas je ideální blízký Park Jezerka, vzdálený jen pár minut chůze. Výbornou dopravní dostupnost zajišťuje blízká stanice metra C - Pankrác nebo nedaleké zastávky tramvají a autobusů.

Byt je volný k nastěhování ihned.

Energetická třída: G (průkaz nedodán).

Parametry bytu

Cena
20 400 Kč /za měsíc
Poznámka k ceně
vratná jistota, náklady na bydlení 5 500,-Kč, poplatek za podnájem
Aktualizováno
3. 10. 2025
Adresa
U družstva Ideál, Nusle - Praha 4
ID
N6793
Stavba
Cihlová
Stav objektu
Velmi dobrý
Patro
2. z 5
Vybaveno
Částečně
Typ objektu
Patrový
Lokalita objektu
Centrum obce
Vlastnictví
Osobní
Užitná plocha
44 m2
Podlahová plocha
44 m2
Třída energetické náročnosti
G - Mimořádně nehospodárná
Elektřina
230V
Topení
Lokální elektrické
Doprava
Silnice, MHD, Autobus
Balkon
Sklep
Výtah

Kontaktovat makléře

Máte zájem o tento byt?

Tímto, v souladu s nařízením Evropského parlamentu a Rady (EU) 2016/679, v platném znění, prohlašuji, že mi je alespoň 16 let a uděluji tak svůj souhlas se zpracováním zadaných údajů (jméno, telefon, e-mail, ip adresa) společnosti B3 Technology, s.r.o., IČ: 07330600, se sídlem Novostavby 126/23, 435 11 Lom (správce dat), za účelem předání dotazu z tohoto formuláře Vámi vybranému inzerentovi a zpětného kontaktování mé osoby. Osobní údaje bude správce zpracovávat manuálně i automaticky přímo prostřednictvím svých zaměstnanců. Informace předané tímto formulářem budou uloženy v databázi správce maximálně po dobu 10 let. Odvolání souhlasu s uložením a zpracováním poskytnutých dat lze e-mailem na info@vitio.cz. V případě podezření na neoprávněné použití Vámi poskytnutých údajů máte právo předat podnět k šetření Úřadu pro ochranu osobních údajů. Více informací
Chystáte se prodat nemovitost?
Pomůžeme Vám!

Inzerát si prohlédlo 1 lidí

Prodejce

Miloslava Kačerová

Miloslava Kačerová

Hlídací pes

Chcete dostávat emailem podobné nabídky pronájmu bytů 2+kk v Praze 4?

Podobné nemovitosti