Prodej rodinného domu, Krchleby, 213 m2 (ID: 2466195)

Krchleby

6 495 000 Kč /za nemovitost HYPOTÉKA od 29 029 Kč /za měsíc

(Cena uvedena vč. právních služeb a provize RK)

Exkluzivní partneři v Krchlebech

Informace k domu

Dovoluji si Vám nabídnout atraktivní a nestandardně pojatý rodinný dům po zásadní rekonstrukci nalézající se v centru obce Krchleby čp. 47 stojící na pozemku o celkové výměře 622m2.
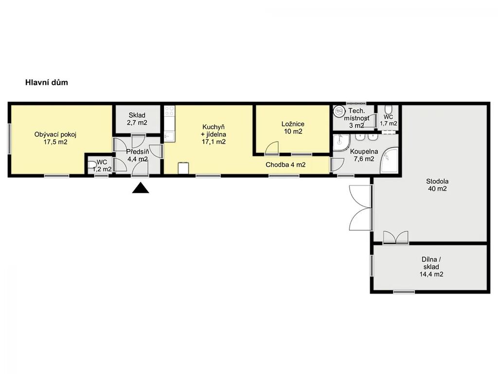
Jedná se o soubor 2 samostatně stojících domů o dispozicích 3+kk a 2+1, každý s vlastním vstupem, úložnými prostory a garáží.
První z domů je typickou venkovskou stavbou s celkovou zastavěnou plochou 177m2, která je rozdělena na obytnou část, jenž prošla zcela zásadní rekonstrukcí a vznikl zde moderní svěží interiér o dispozici 3+kk s celkovou obytnou plochou 70m2 - kuchyňský kout je vybaven kuchyňskou linkou s elektrickou a mikrovlnkou troubou, varnou deskou a digestoří, samostatný obývací pokoj, ložnice, prostorná koupelna s vanou, sprchovým koutem, 2x WC, skladem a technickou místností. Nově jsou taženy rozvody elektřiny, vody, odpady, nová plastová okna, nové vstupní i interiérové dveře, štuky, výmalby. Jako podlahová krytina byl zvolen vysoce zátěžový vinyl, v koupelně, na WC v technické místnosti dlažba. Koupelna je obložena moderními obklady, usazena nová sanita, doplněno atraktivní podsvícení, do technické místnosti usazen bojler na ohřev teplé vody, příprava na umístění pračky a sušičky. Tento dům je částečně podsklepen. Na obytnou část domu navazuje původní hospodářská část s užitnou plochou 54,4m2, která je rozdělena na stodolu a dílnu.
Druhou stavbou na pozemku je zděný samostatně stojící dům se zastavěnou plochou 62m2 s bytovou jednotkou 2+1 s koupelnou s WC o obytné ploše 44m2, garáží a skladem. Také tento dům prošel rekonstrukcí vč. rozvodů elektřiny, vody, odpadů. Instalována je nová kuchyňská linka s elektrickou troubou, varnou deskou, koupelna s WC obložena keramickým obkladem, vybavena novou sanitou, na podlaze položen vysoce zátěžový vinyl, nová plastová okna, vstupní i interiérové dveře. Vytápění je zajištěno pomocí elektrických topných panelů, ohřev vody zajišťuje bojler.
V přízemí se nalézá garáž s užitnou plochou 30m2 s vjezdovými vraty z ulice, dále sklad 14,4m2.
Oba domy jsou připojeny na kanalizaci, voda tažena ze studny na pozemku, nemovitost je možno připojit na vodovodní řád v obci.
Na zahradě se dále nachází samostatně stojící zděný zahradní domek.
Soubor nemovitostí je skvělou příležitostí např. pro vícegenerační bydlení, k pronájmu jedné z nemovitostí, případně obou a zajištění si tak stabilního příjmu.
Obec Krchleby leží 4km od města Čáslav, naleznete zde mateřskou školku, základní školu 1.-5. třída, školní jídelnu i družinu, je zde obchod se smíšeným zbožím. Krchleby jsou napojeny na pravidelnou autobusovou linku do Čáslavi nebo do 15 km vzdálené Kutné Hory. V blízké Čáslavi naleznete plnou občanskou vybavenost, vč. základních a středních škol, lékařů nemocnice.






Parametry domu

Cena
6 495 000 Kč /za nemovitost Spočítat hypotéku
Poznámka k ceně
Cena uvedena vč. právních služeb a provize RK
Aktualizováno
3. 10. 2025
Adresa
Krchleby
ID
942
Stavba
Smíšená
Stav objektu
Velmi dobrý
Vybaveno
Částečně
Druh objektu
Samostatný
Užitná plocha
213 m2
Zastavěná plocha
239 m2
Podlahová plocha
213 m2
Plocha pozemku
622 m2
Plocha zahrady
383 m2
Třída energetické náročnosti
D - Méně úsporná
Elektřina
230V, 400V
Odpad
Veřejná kanalizace
Komunikace
Asfaltová
Telekomunikace
Internet
Doprava
Silnice, MHD, Autobus
Voda
Studna
Garáž
Sklep
Bezbarierový přístup
Parkování

Kontaktovat makléře

Máte zájem o tento dům?

Tímto, v souladu s nařízením Evropského parlamentu a Rady (EU) 2016/679, v platném znění, prohlašuji, že mi je alespoň 16 let a uděluji tak svůj souhlas se zpracováním zadaných údajů (jméno, telefon, e-mail, ip adresa) společnosti B3 Technology, s.r.o., IČ: 07330600, se sídlem Novostavby 126/23, 435 11 Lom (správce dat), za účelem předání dotazu z tohoto formuláře Vámi vybranému inzerentovi a zpětného kontaktování mé osoby. Osobní údaje bude správce zpracovávat manuálně i automaticky přímo prostřednictvím svých zaměstnanců. Informace předané tímto formulářem budou uloženy v databázi správce maximálně po dobu 10 let. Odvolání souhlasu s uložením a zpracováním poskytnutých dat lze e-mailem na info@vitio.cz. V případě podezření na neoprávněné použití Vámi poskytnutých údajů máte právo předat podnět k šetření Úřadu pro ochranu osobních údajů. Více informací
Chystáte se prodat nemovitost?
Pomůžeme Vám!

Inzerát si prohlédlo 15 lidí

Prodejce

Monika Radinová

Monika Radinová

Hlídací pes

Chcete dostávat emailem podobné nabídky prodeje rodinných domů v Krchlebech (okr. Kutná Hora)?

Top nabídky

Podobné nemovitosti