Prodej rodinného domu, Hlásná Třebaň, K Černé Skále, 305 m2

K Černé Skále, Hlásná Třebaň, Rovina

20 500 000 Kč /za nemovitost HYPOTÉKA od 91 623 Kč /za měsíc
Exkluzivní partneři v Hlásné Třebani

Informace k domu

Představuji k prodeji třípodlažní rodinný dům se skvělým výhledem do údolí Berounky, na klidném místě na adrese K Černé Skále 183 v Hlásné Třebani.

Podívejte se na samostatnou stránku domu – odkaz ve videoprohlídce. Na této stránce je více fotografií domu.
Kompletní představu o dispozici a prostorovém uspořádání získáte z 3D virtuální prohlídky zde v inzerci.

Lokalita:
Obec Hlásná Třebaň leží v chráněné krajinné oblasti Český kras, nedaleko řeky Berounky, zhruba 20 km jihozápadně od Prahy. Díky své poloze nabízí klidné bydlení v přírodě s výbornou dostupností do hlavního města, autem, autobusem či vlakem směrem na Prahu–Radotín a Smíchov. V okolí této obce se nachází veškerá občanská vybavenost a také řada turistických a cyklistických tras, což z obce činí atraktivní lokalitu nejen pro rekreaci, ale i trvalé bydlení.

Dispozice:
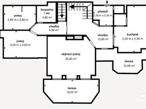
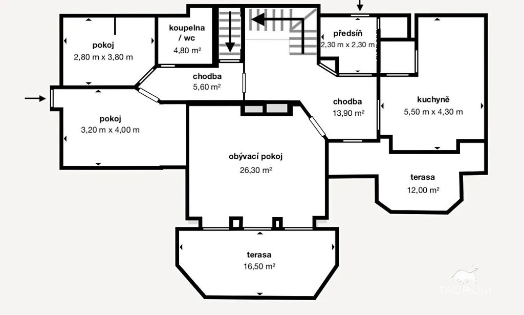
Dům je třípodlažní, má dispozici 6+1 plus další technické a úložné místnosti.
V suterénu se nachází studio se sociálním zařízení, saunou, kuchyní a venkovní terasou. Dále je zde technická místnost a sklad.
Ve prvním podlaží se nachází předsíň, kuchyně, obývací pokoj s oboustranným krbem, dva samostatné neprůchozí pokoje, koupelna s toaletou, úložné prostory a dvě terasy přístupné z kuchyně a obývacího pokoje.
Ve druhém podlaží je velká ložnice, pracovna s balkonem, skladovací komory a místnosti a velká koupelna s toaletou, vanou a sprchovým koutem.
Na pozemku stojí garáž o výměře 23 m² s jedním parkovacím stáním. Další parkovací místa jsou v prostoru před garáží u vchodu do domu. Celková výměra pozemku je 1.809 m², a to včetně vlastní příjezdové cesty. Samotná zahrada má rozlohu 1.566 m² a je ve velmi hezkém, udržovaném stavu, s množstvím zeleně a kruhovým bazénem.

Technické informace:
Dům je zděný, zateplený, se železobetonovými stropy a střechou pokrytou pálenými taškami. Podlahy jsou betonové, s povrchy z keramické dlažby, plovoucími podlahami a koberci. Okna jsou plastová s izolačními dvojskly. Vytápění zajišťuje teplovodní podlahové topení v kombinaci s radiátory, vše napojené na kvalitní zánovní tepelné čerpadlo z roku 2023, které zároveň ohřívá vodu. Pro dotopení a příjemnou atmosféru je k dispozici oboustranný krb.
Pitná voda je do domu čerpaná z vlastního 69 m hlubokého vrtu na pozemku a odpadní vody jsou odváděny do vlastní čistírny odpadních vod, která je pravidelně servisovaná. Přípojka plynu se nachází na hranici pozemku a je tedy možné se na ni připojit. Stejně tak i přípojka obecního vodovodu je na hranici pozemku. Na pozemek je zavedena voda se zahradním vodoměrem. Energetická náročnost budovy je klasifikována jako třída B – velmi úsporná.

Pro koupi domu zajišťuji kompletní realitní a právní servis včetně financování hypotečním úvěrem. 
Kontaktujte mě, prosím, pro domluvení prohlídky: 
Jan Štěpánek 
TAURUM reality 

Uvedené výměry jsou orientační. 

Parametry domu

Cena
20 500 000 Kč /za nemovitost Spočítat hypotéku
Aktualizováno
1. 10. 2025
Adresa
K Černé Skále, Hlásná Třebaň, Rovina
ID
250158
Stavba
Cihlová
Stav objektu
Velmi dobrý
Vybaveno
Částečně
Druh objektu
Samostatný
Užitná plocha
305 m2
Zastavěná plocha
158 m2
Podlahová plocha
249 m2
Plocha pozemku
1809 m2
Plocha zahrady
1566 m2
Třída energetické náročnosti
B - Velmi úsporná
Ukazatel energetické náročnosti
58 kWh/m2 za rok
Elektřina
230V, 400V
Plyn
Plynovod
Odpad
ČOV pro celý objekt
Komunikace
Zpevněná
Telekomunikace
Internet, Kabelová televize
Doprava
Vlak, Silnice
Voda
Studna
Topné těleso
Podlahové vytápění
Zdroj topení
Tepelné čerpadlo
Garáž
Parkování
Bazén

Kontaktovat makléře

Realitní kancelář

TAURUM reality s.r.o.

Americká 1139/1, Plzeň, Jižní Předměstí

Chystáte se prodat nemovitost?
Pomůžeme Vám!

Máte zájem o tento dům?

Tímto, v souladu s nařízením Evropského parlamentu a Rady (EU) 2016/679, v platném znění, prohlašuji, že mi je alespoň 16 let a uděluji tak svůj souhlas se zpracováním zadaných údajů (jméno, telefon, e-mail, ip adresa) společnosti B3 Technology, s.r.o., IČ: 07330600, se sídlem Novostavby 126/23, 435 11 Lom (správce dat), za účelem předání dotazu z tohoto formuláře Vámi vybranému inzerentovi a zpětného kontaktování mé osoby. Osobní údaje bude správce zpracovávat manuálně i automaticky přímo prostřednictvím svých zaměstnanců. Informace předané tímto formulářem budou uloženy v databázi správce maximálně po dobu 10 let. Odvolání souhlasu s uložením a zpracováním poskytnutých dat lze e-mailem na info@vitio.cz. V případě podezření na neoprávněné použití Vámi poskytnutých údajů máte právo předat podnět k šetření Úřadu pro ochranu osobních údajů. Více informací
Chystáte se prodat nemovitost?
Pomůžeme Vám!

Inzerát si prohlédlo 2 lidí

Prodejce

Jan Štěpánek

Jan Štěpánek

Hlídací pes

Chcete dostávat emailem podobné nabídky prodeje rodinných domů v Hlásné Třebani?

Podobné nemovitosti