Pronájem bytu 2+kk, Praha - Žižkov, Na Jarově, 22 m2 (ID: 2450881)

Na Jarově, Praha 3, Žižkov

28 000 Kč /za měsíc Získejte výhodnou HYPOTÉKU

(poplatky 4000 včetně elektřiny)

Exkluzivní partneři v Praze 3

Stěhovací služby

Výkup a prodej starého nábytku

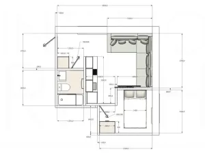
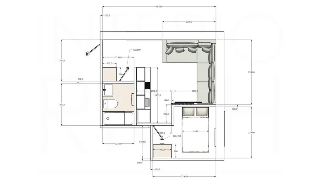
Informace k bytu

Pronájem bytu 2+kk, Praha 3 - Žižkov

ID: najar3

K pronájmu nabízíme moderně zařízený byt 2+kk v klidné rezidenční části Prahy 3.
Byt je kompletně vybaven nábytkem i kuchyňskou linkou. Dispozice je prakticky řešená obývací pokoj s kuchyňským koutem, ložnice, koupelna se sprchou a WC.

K nastěhování 1.10.2025

Parametry bytu:
dispozice: 2+kk
vybavený nábytkem
nájem: 28.000 Kč/měsíc + poplatky: 4.000 Kč/měsíc (včetně elektřiny)
kauce: 28.000 Kč

Lokalita:
Výborná občanská vybavenost v okolí supermarkety, obchody, restaurace, sportovní areály i školy. Do centra se dostanete MHD za cca 15 minut, v pěší vzdálenosti jsou tramvajové a autobusové zastávky. V blízkosti se nachází oblíbené parky Židovské pece a Malešický park.

Parametry bytu

Cena
28 000 Kč /za měsíc
Poznámka k ceně
poplatky 4000 včetně elektřiny
Aktualizováno
18. 9. 2025
Adresa
Na Jarově, Praha 3, Žižkov
ID
najar3
Stavba
Smíšená
Stav objektu
Dobrý
Patro
1. z 2
Vybaveno
Ano
Typ objektu
Patrový
Vlastnictví
Osobní
Užitná plocha
22 m2
Podlahová plocha
22 m2
Doprava
Vlak, Dálnice, Silnice, MHD, Autobus
Bezbarierový přístup
Nízkoenergetický

Kontaktovat makléře

Máte zájem o tento byt?

Tímto, v souladu s nařízením Evropského parlamentu a Rady (EU) 2016/679, v platném znění, prohlašuji, že mi je alespoň 16 let a uděluji tak svůj souhlas se zpracováním zadaných údajů (jméno, telefon, e-mail, ip adresa) společnosti B3 Technology, s.r.o., IČ: 07330600, se sídlem Novostavby 126/23, 435 11 Lom (správce dat), za účelem předání dotazu z tohoto formuláře Vámi vybranému inzerentovi a zpětného kontaktování mé osoby. Osobní údaje bude správce zpracovávat manuálně i automaticky přímo prostřednictvím svých zaměstnanců. Informace předané tímto formulářem budou uloženy v databázi správce maximálně po dobu 10 let. Odvolání souhlasu s uložením a zpracováním poskytnutých dat lze e-mailem na info@vitio.cz. V případě podezření na neoprávněné použití Vámi poskytnutých údajů máte právo předat podnět k šetření Úřadu pro ochranu osobních údajů. Více informací
Chystáte se prodat nemovitost?
Pomůžeme Vám!

Inzerát si prohlédlo 5 lidí

Prodejce

Bc. Igor  Chotinskij

Bc. Igor Chotinskij

Hlídací pes

Chcete dostávat emailem podobné nabídky pronájmu bytů 2+kk v Praze 3?

Podobné nemovitosti