Prodej rodinného domu, Stradonice, 470 m2

Stradonice

12 499 000 Kč /za nemovitost HYPOTÉKA od 55 863 Kč /za měsíc
Exkluzivní partneři v Stradonicích

Informace k domu

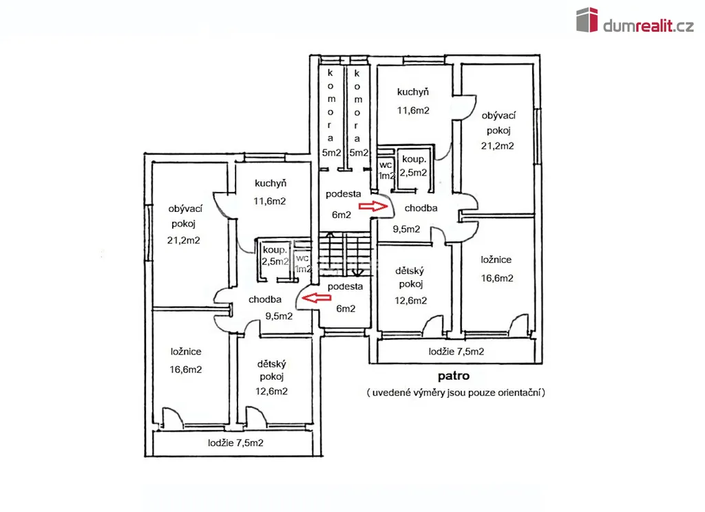
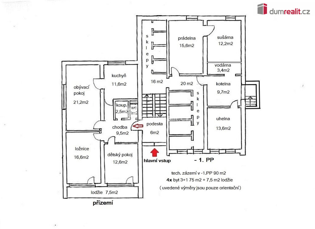
Ve výhradním zastoupení majitele Vám nabízím bytový dům o čtyřech bytových jednotkách s celkovou plochou 470 m² na pozemku 1.814 m² v obci Stradonice u Slaného, jen 30min po D7 na metro B Zličín – ideální místo pro velkou rodinu, zázemí firmy a podnikání, nebo developera.

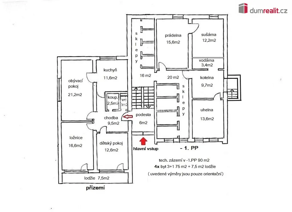
Bytový dům (betonový skelet vyplněný cihlami) byl dokončen v r. 1980 a po úpravách kolaudován v r. 1993. Obsahuje tech. zázemí cca 90 m² v -1.PP a 4 stejné byty 3+1 o výměře 75 m² + 7,5 m² lodžie. V domě je dostatek úložných prostor, v -1.PP jsou sklepy, k praktickému využití prádelna a sušárna a u každého bytu je na chodbě úložná komora. Vytápění zajišťuje automatický kotel na uhlí (EURO 5) + el.kotel napojený na radiátory, pro ohřev teplé vody má každý byt el. bojler. Voda je do domu přivedena přes vodárnu ze studny a odpad do jímky, ale v letošním roce je v obci plánováno připojení na obecní vodovod a kanalizaci, realizace nyní probíhá, základní příprava pro napojení u domu je hotová. Dům je plně funkční, před 8 lety byly udělány nové rozvody topení v mědi, jinak je v původním stavu, který si zaslouží rekonstrukci.

Před domem je velká zpevněná plocha na parkování a 3 garáže, za nimi na druhé příjezdové cestě k domu lze pohodlně parkovat kamión s návěsem. Na pěkné zahradě (1.417 m²) jsou za domem 4 zděné úložné kůlny a dostatek prostoru k zahradničení, zábavě a odpočinku.

Bytový dům se včetně zahrady prodává jako celek, jednotlivé byty nejsou na katastrálním úřadu vymezené (zapsané), proto si je může nový majitel vymezit prohlášením vlastníka dle svého uvážení.

V klidné obci je útulná hospůdka u které se v létě konají akce pro děti a venkovní taneční zábavy, dvě nová dětská hřiště, zastávka autobusu do Slaného, veškerá další občanská vybavenost jako mateřské a základní školy, lékaři, velké obchody a vlaková stanice (do Kralup nad Vltavou a Loun) se nachází v blízké sousední obci Zlonice a Klobouky.

Jednoduchá cesta autem do Prahy po D6, D7 i D8 kolem 30 min na metro, do 10 min dojezd do Slaného.
Dobrá investiční příležitost k podnikání i k vícegeneračnímu bydlení pro velkou rodinu.
S vaší hypotékou pomůžeme – zařídíme. Doporučuji. Ev. číslo: 649762.

Parametry domu

Cena
12 499 000 Kč /za nemovitost Spočítat hypotéku
Aktualizováno
5. 11. 2025
Adresa
Stradonice
ID
650376
Stavba
Smíšená
Stav objektu
Dobrý
Typ objektu
Patrový
Druh objektu
Samostatný
Lokalita objektu
Klidná část obce
Užitná plocha
470 m2
Zastavěná plocha
254 m2
Podlahová plocha
470 m2
Plocha pozemku
1814 m2
Třída energetické náročnosti
G - Mimořádně nehospodárná
Garáž
Sklep
Lodžie
Parkování

Kontaktovat makléře

Máte zájem o tento dům?

Tímto, v souladu s nařízením Evropského parlamentu a Rady (EU) 2016/679, v platném znění, prohlašuji, že mi je alespoň 16 let a uděluji tak svůj souhlas se zpracováním zadaných údajů (jméno, telefon, e-mail, ip adresa) společnosti B3 Technology, s.r.o., IČ: 07330600, se sídlem Novostavby 126/23, 435 11 Lom (správce dat), za účelem předání dotazu z tohoto formuláře Vámi vybranému inzerentovi a zpětného kontaktování mé osoby. Osobní údaje bude správce zpracovávat manuálně i automaticky přímo prostřednictvím svých zaměstnanců. Informace předané tímto formulářem budou uloženy v databázi správce maximálně po dobu 10 let. Odvolání souhlasu s uložením a zpracováním poskytnutých dat lze e-mailem na info@vitio.cz. V případě podezření na neoprávněné použití Vámi poskytnutých údajů máte právo předat podnět k šetření Úřadu pro ochranu osobních údajů. Více informací
Chystáte se prodat nemovitost?
Pomůžeme Vám!

Inzerát si prohlédlo 50 lidí

Prodejce

Karel Fiala

Karel Fiala

Hlídací pes

Chcete dostávat emailem podobné nabídky prodeje rodinných domů v Stradonicích?

Podobné nemovitosti