Pronájem bytu 1+kk, Praha - Nové Město, Opletalova, 26 m2

Opletalova, Praha, Nové Město

19 800 Kč /za měsíc Získejte výhodnou HYPOTÉKU
Exkluzivní partneři v Praze 1

Stěhovací služby

Výkup a prodej starého nábytku

Informace k bytu

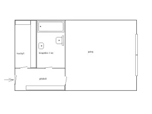
Nabízíme k pronájmu pěkný světlý byt 1+kk, 26 m2 ve třetím patře domu v Opletalově ulici cca 2 minuty chůze od Václavského náměstí. Byt je po kompletní rekonstrukci, je zde nová kuchyňská linka se spotřebiči - lednice, sklokeramická varná deska, mikrovlnná trouba. V pokoji a v předsíni je plovoucí lamelová podlaha, v koupelně a kuchyni je dlažba. Koupelna je se sprchovým koutem. Okna jsou orientována do klidného vnitrobloku směrem na západ. V předsíni jsou vestavěné skříně. Dům je velmi dobrém stavu, nové vnitřní prostory, výtah a jiné. Výborná lokalita, linky metra Muzeum, Můstek a Hlavní nádraží jsou cca 5 minut chůze.

Parametry bytu

Cena
19 800 Kč /za měsíc
Náklady na bydlení
služby 3400 Kč/měsíc, el. 500 Kč/měsíc
Aktualizováno
26. 4. 2026
Adresa
Opletalova, Praha, Nové Město
Stavba
Cihlová
Stav objektu
Velmi dobrý
Patro
3.
Vlastnictví
Osobní
Užitná plocha
26 m2

Kontaktovat makléře

Realitní kancelář

PROFI-TEN

Vodičkova 682/20, Praha

Chystáte se prodat nemovitost?
Pomůžeme Vám!

Máte zájem o tento byt?

Tímto, v souladu s nařízením Evropského parlamentu a Rady (EU) 2016/679, v platném znění, prohlašuji, že mi je alespoň 16 let a uděluji tak svůj souhlas se zpracováním zadaných údajů (jméno, telefon, e-mail, ip adresa) společnosti B3 Technology, s.r.o., IČ: 07330600, se sídlem Novostavby 126/23, 435 11 Lom (správce dat), za účelem předání dotazu z tohoto formuláře Vámi vybranému inzerentovi a zpětného kontaktování mé osoby. Osobní údaje bude správce zpracovávat manuálně i automaticky přímo prostřednictvím svých zaměstnanců. Informace předané tímto formulářem budou uloženy v databázi správce maximálně po dobu 10 let. Odvolání souhlasu s uložením a zpracováním poskytnutých dat lze e-mailem na info@vitio.cz. V případě podezření na neoprávněné použití Vámi poskytnutých údajů máte právo předat podnět k šetření Úřadu pro ochranu osobních údajů. Více informací
Chystáte se prodat nemovitost?
Pomůžeme Vám!

Inzerát si prohlédlo 1 lidí

Prodejce

František Cakl

František Cakl

Hlídací pes

Chcete dostávat emailem podobné nabídky pronájmu bytů 1+kk v Praze 1?

Podobné nemovitosti