Pronájem bytu 2+1, Ostrava, Jasmínová, 64 m2

Jasmínová, Ostrava, Poruba

12 900 Kč /za měsíc Získejte výhodnou HYPOTÉKU

(+ záloha na služby pro 1 osobu 3.000 Kč + vratná kauce 26.000 Kč + provize 5.000 Kč + záloha na elektřinu)

Exkluzivní partneři v Ostravě

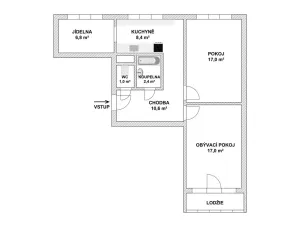
Informace k bytu

Nabízíme k pronájmu moderní byt po celkové vkusné rekonstrukci.

V kuchyni je nová rohová kuchyňská linka na míru v bílém lesku s kombinací dekoru dřeva s vestavěnými spotřebiči lednice s mrazákem, myčka, horkovzdušná trouba, mikrovlnná trouba, indukční varná deska a digestoř.
Z kuchyně je vstup do dalšího pokoje, který může sloužit jako jídelna či pracovna.

V předsíni je praktická skříň na míru.
Koupelna s vanou, samostatná toaleta.

Obývací pokoj i ložnice jsou neprůchozí. Z obývacího pokoje je vstup na zasklenou lodžii.

Byt je orientován na 2 strany východ a západ, tudíž velmi prosvětlený a slunný.

Byla udělána nová elektroinstalace v mědi, omítky, v celém bytě jsou laminátové voděvzdorné plovoucí podlahy, nové interiérové dveře s obložením, nové vstupní bezpečností a protipožární dveře společnosti HT dveře.

V celkové ploše 64m2 je zahrnuta plocha sklepa (2,3m2) a plocha lodžie (3m2).

Byt se nachází v domě po celkové revitalizaci fasáda, zateplení, plastová okna, 2x euro výtah.
Dům je umístěn na skvělém místě u lesoparku, který vybízí k procházkám či sportovním aktivitám.

Nájem činí 12.900 Kč, záloha na služby pro 1 osobu 3.000 Kč, zálohu na elektřinu si bude řešit nájemník samostatně.
Je požadována vratná kauce 26.000 Kč.

Byt je vhodný ideálně pro 2 pracující osoby.

Parametry bytu

Cena
12 900 Kč /za měsíc
Poznámka k ceně
+ záloha na služby pro 1 osobu 3.000 Kč + vratná kauce 26.000 Kč + provize 5.000 Kč + záloha na elektřinu
Aktualizováno
25. 4. 2026
Adresa
Jasmínová, Ostrava, Poruba
ID
980360
Stavba
Panelová
Stav objektu
Po rekonstrukci
Patro
1. z 12
Vlastnictví
Osobní
Užitná plocha
64 m2
Podlahová plocha
64 m2
Třída energetické náročnosti
C - Úsporná
Elektřina
230V
Sklep
Lodžie
Výtah

Kontaktovat makléře

Máte zájem o tento byt?

Tímto, v souladu s nařízením Evropského parlamentu a Rady (EU) 2016/679, v platném znění, prohlašuji, že mi je alespoň 16 let a uděluji tak svůj souhlas se zpracováním zadaných údajů (jméno, telefon, e-mail, ip adresa) společnosti B3 Technology, s.r.o., IČ: 07330600, se sídlem Novostavby 126/23, 435 11 Lom (správce dat), za účelem předání dotazu z tohoto formuláře Vámi vybranému inzerentovi a zpětného kontaktování mé osoby. Osobní údaje bude správce zpracovávat manuálně i automaticky přímo prostřednictvím svých zaměstnanců. Informace předané tímto formulářem budou uloženy v databázi správce maximálně po dobu 10 let. Odvolání souhlasu s uložením a zpracováním poskytnutých dat lze e-mailem na info@vitio.cz. V případě podezření na neoprávněné použití Vámi poskytnutých údajů máte právo předat podnět k šetření Úřadu pro ochranu osobních údajů. Více informací
Chystáte se prodat nemovitost?
Pomůžeme Vám!

Inzerát si prohlédlo 0 lidí

Prodejce

Ing. Tomáš Ščurek

Ing. Tomáš Ščurek

Hlídací pes

Chcete dostávat emailem podobné nabídky pronájmu bytů 2+1 v Ostravě?

Podobné nemovitosti