Pronájem bytu 1+kk, Praha - Libeň, Budilova, 41 m2

Budilova, Praha, Libeň

19 000 Kč /za měsíc Získejte výhodnou HYPOTÉKU

(+ poplatky 1100 Kč/os./měsíc + plyn a el. energie na nájemníka + vratná kauce + provize)

Exkluzivní partneři v Praze 8

Stěhovací služby

Výkup a prodej starého nábytku

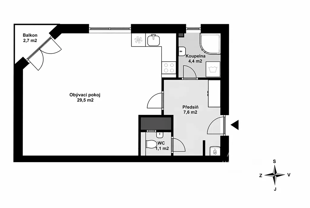
Informace k bytu

I byt 1+kk může nabídnout dostatek prostoru – tento o velikosti 41 m² je toho skvělým důkazem.

Byt se nachází v udržovaném domě v rezidenční zástavbě s minimálním provozem a příjemnou atmosférou. Velkou výhodou je výhled do zeleně a soukromé ulice, kde mají přístup pouze rezidenti.

Dispozice nemovitosti:
Byt nabízí prakticky řešený obytný prostor s kuchyňským koutem, který je vybaven vestavěnou lednicí s mrazákem, troubou, varnou deskou a digestoří (v případě zájmu lze dodat mikrovlnnou troubu). Obývací část je zařízena rozkládací pohovkou s podnožkou.
Koupelna disponuje sprchovým koutem, umyvadlem, zrcadlem a pračkou Bosch. Samostatné WC s umyvadlem. V chodbě se nachází šatní skříň a botník.
Součástí bytu je také zděný sklep.
Byt má cca 1,5 roku starou kvalitní podlahu a nové osvětlení v obývacím pokoji. Velkým benefitem je nový kondenzační kotel Bosch (v záruce), který zajišťuje vytápění i ohřev vody – tichý a úsporný provoz.

Parkování je zajištěno přímo v soukromé ulici u domu, nájemník obdrží parkovací kartu.

Okolí nemovitosti:
Velmi klidná lokalita s kompletní občanskou vybaveností v okolí. V blízkosti se nachází přírodní památka Prosecké skály, ideální pro procházky, sport i relaxaci.

Dopravní dostupnost:
Tramvajová zastávka Vosmíkových je cca 3 minuty chůze, Palmovka 6 minut tramvají, přímé spojení do centra (Václavské náměstí, Žižkov).

Náklady spojené s pronájmem nemovitosti:
- Nájemné: 19 000 Kč / měsíc
- Poplatky: 1100 Kč / měsíc
- Elektřina: 960 Kč / měsíc (přepis na nájemce – PRE)
- Plyn: 2 340 Kč / měsíc (přepis na nájemce – Pražská plynárenská)
- Internet (Vodafone): cca 430 Kč / měsíc – přepis na nájemce
- Vratná kauce: 38 000 Kč
- Rezervační poplatek / provize RK: jeden měsíční nájem + 21 % DPH

Ideální bydlení pro jednotlivce nebo pár, kteří hledají klid, soukromí, parkování bez starostí a zároveň rychlou dostupnost do centra Prahy.

Byt je vhodný pro nekuřáky, preferujeme zájemce bez domácích mazlíčků.

Parametry bytu

Cena
19 000 Kč /za měsíc
Poznámka k ceně
+ poplatky 1100 Kč/os./měsíc + plyn a el. energie na nájemníka + vratná kauce + provize
Náklady na bydlení
1100 Kč/osoba/měsíc + elektrická energie a plyn
Aktualizováno
23. 4. 2026
Adresa
Budilova, Praha, Libeň
ID
KW00003
Stavba
Smíšená
Stav objektu
Velmi dobrý
Patro
3.
Vybaveno
Částečně
Lokalita objektu
Sídliště
Vlastnictví
Osobní
Užitná plocha
41 m2
Podlahová plocha
41 m2
Třída energetické náročnosti
D - Méně úsporná
Topení
Lokální plynové
Komunikace
Asfaltová
Doprava
MHD
Topné těleso
Radiátory
Zdroj topení
Plynový kondenzační kotel
Zdroj teplé vody
Plynový kondenzační kotel
Balkon
Sklep
Výtah
Parkování

Kontaktovat makléře

Máte zájem o tento byt?

Tímto, v souladu s nařízením Evropského parlamentu a Rady (EU) 2016/679, v platném znění, prohlašuji, že mi je alespoň 16 let a uděluji tak svůj souhlas se zpracováním zadaných údajů (jméno, telefon, e-mail, ip adresa) společnosti B3 Technology, s.r.o., IČ: 07330600, se sídlem Novostavby 126/23, 435 11 Lom (správce dat), za účelem předání dotazu z tohoto formuláře Vámi vybranému inzerentovi a zpětného kontaktování mé osoby. Osobní údaje bude správce zpracovávat manuálně i automaticky přímo prostřednictvím svých zaměstnanců. Informace předané tímto formulářem budou uloženy v databázi správce maximálně po dobu 10 let. Odvolání souhlasu s uložením a zpracováním poskytnutých dat lze e-mailem na info@vitio.cz. V případě podezření na neoprávněné použití Vámi poskytnutých údajů máte právo předat podnět k šetření Úřadu pro ochranu osobních údajů. Více informací
Chystáte se prodat nemovitost?
Pomůžeme Vám!

Inzerát si prohlédlo 0 lidí

Prodejce

Martina Moťková

Martina Moťková

Hlídací pes

Chcete dostávat emailem podobné nabídky pronájmu bytů 1+kk v Praze 8?

Podobné nemovitosti