Pronájem bytu 1+1, Broumov - Nové Město, U Větrolamu, 36 m2 (ID: 2649159)

U Větrolamu, Broumov, Nové Město

8 000 Kč /za měsíc Získejte výhodnou HYPOTÉKU
Exkluzivní partneři v Broumově

Informace k bytu

Podnájem bytu 1+1 U Větrolamu Broumov

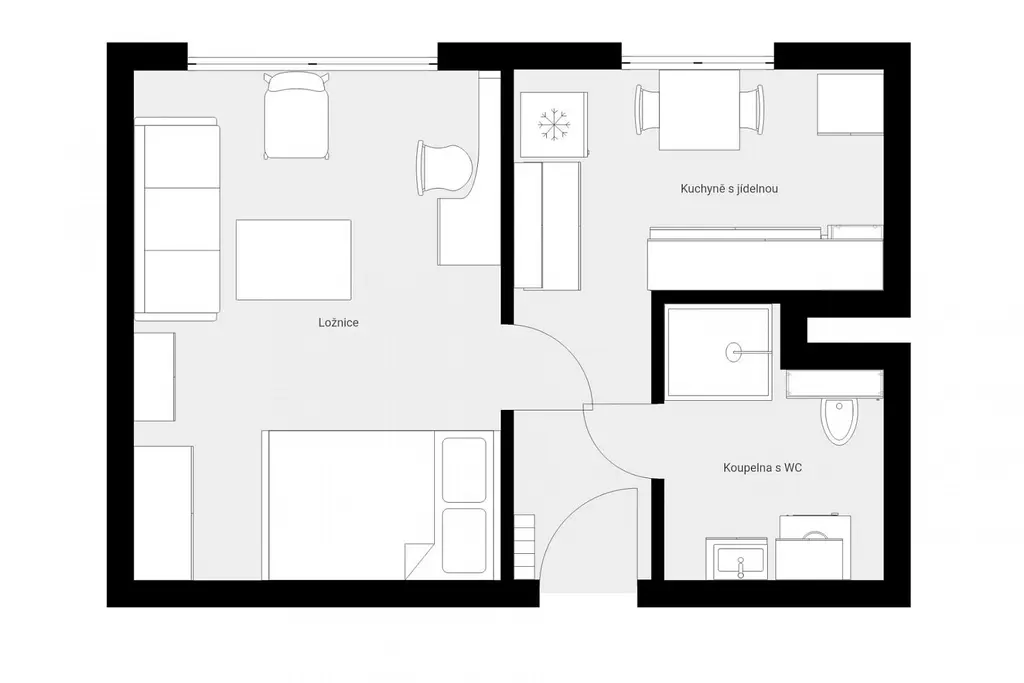
Nabízím k podnájmu družstevní bytovou jednotku o dispozici 1+1 a velikosti 36 m², která se nachází ve 3. nadzemním podlaží revitalizovaného panelového domu v Broumově, ul. U Větrolamu.

Byt prošel kompletní rekonstrukcí nové podlahy, zděné jádro, moderní kuchyňská linka včetně spotřebičů a nová elektroinstalace. Nabízí se kompletně vybavený, viz fotodokumentace.

Dispozice bytu:
- Vstupní chodba
- Kuchyně s jídelnou
- Ložnice
- Koupelna s WC

Vybavení bytu:
- Lednice s mrazákem
- Nová pračka se sušičkou
- Kompletní nábytek

Byt je vhodný jako startovací bydlení pro jednotlivce či pár, případně jako pohodlné bydlení pro seniory.

Podmínky podnájmu:
- nájem: 8.000 Kč / měsíc
- Zálohy na služby: 1.593 Kč / měsíc
(teplo, teplá voda, vodné a stočné, výtah, elektřina společných prostor)
- Elektřina v bytě: přepisuje se na podnájemce
- Vratná kauce: 20.000 Kč
- Poplatek RK: ve výši jednoho měsíčního nájmu

Poplatek za podnájem družstvu podnájemce nehradí za předpokladu dodržení minimální délky podnájmu 2 roky.

Byt je k dispozici ihned.

Pro sjednání prohlídky nebo více informací mě neváhejte kontaktovat.

Parametry bytu

Cena
8 000 Kč /za měsíc
Aktualizováno
21. 4. 2026
Adresa
U Větrolamu, Broumov, Nové Město
ID
109
Stavba
Panelová
Vybaveno
Ano
Vlastnictví
Družstevní
Užitná plocha
36 m2
Třída energetické náročnosti
D - Méně úsporná

Kontaktovat makléře

Máte zájem o tento byt?

Tímto, v souladu s nařízením Evropského parlamentu a Rady (EU) 2016/679, v platném znění, prohlašuji, že mi je alespoň 16 let a uděluji tak svůj souhlas se zpracováním zadaných údajů (jméno, telefon, e-mail, ip adresa) společnosti B3 Technology, s.r.o., IČ: 07330600, se sídlem Novostavby 126/23, 435 11 Lom (správce dat), za účelem předání dotazu z tohoto formuláře Vámi vybranému inzerentovi a zpětného kontaktování mé osoby. Osobní údaje bude správce zpracovávat manuálně i automaticky přímo prostřednictvím svých zaměstnanců. Informace předané tímto formulářem budou uloženy v databázi správce maximálně po dobu 10 let. Odvolání souhlasu s uložením a zpracováním poskytnutých dat lze e-mailem na info@vitio.cz. V případě podezření na neoprávněné použití Vámi poskytnutých údajů máte právo předat podnět k šetření Úřadu pro ochranu osobních údajů. Více informací
Chystáte se prodat nemovitost?
Pomůžeme Vám!

Inzerát si prohlédlo 0 lidí

Prodejce

Marcel Mrština, MBA

Marcel Mrština, MBA

Hlídací pes

Chcete dostávat emailem podobné nabídky pronájmu bytů 1+1 v Broumově (okr. Náchod)?

Podobné nemovitosti