Pronájem bytu 1+kk, Praha - Strašnice, Zvěřinova, 51 m2 (ID: 2647679)

Zvěřinova, Praha, Strašnice

23 000 Kč /za měsíc Získejte výhodnou HYPOTÉKU
Exkluzivní partneři v Praze 3

Stěhovací služby

Výkup a prodej starého nábytku

Informace k bytu

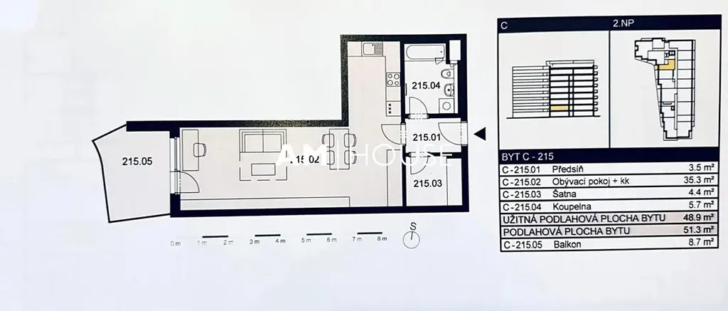
Společnost Am House nabízí k pronajmu byt 1+kk o celkové ploše 51 m2 + balkon 8 m2 který se nachází v 2.NP v projektu rezidence Tulipa Trebesin, který je situován na městské části Praha 3.

K bytu náleží parkovací stani.

Ve standardu plovoucí podlahy, plastová okna s izolačním 3 sklem. Budova bude vystavěna s energetickým štítkem B, tím pádem nízkými náklady na bydlení.

Vstupy do budovy jsou na bezpečnostní čipy.

V blízkém okolí se nachází veškerá potřebná občanská vybavenost - nákupní centrum Atrium Flora, sportovní areál, plavecký bazén, školka, škola a gymnázium Nad Vodovodem, fakultní nemocnice Královské Vinohrady, Malešický park, dále je k dispozici nespočet restaurací a jiných relaxačních středisek.


Poloha domu umožňuje rychlé pojení do centra města. Autobusová zastávka Třebešín, je vzdálena cca 2 min chůze a stanice metra Želivského.

Celková cena: 23 000 Kč + 4 184 Kč poplatky + elektřina a internet.


Pro více informací ohledně nemovitostí nebo domluvení prohlídky domu nás kontaktujte, rádi se Vám budeme věnovat.

Parametry bytu

Cena
23 000 Kč /za měsíc
Aktualizováno
20. 4. 2026
Adresa
Zvěřinova, Praha, Strašnice
ID
20
Stavba
Cihlová
Stav objektu
Novostavba
Patro
2. z 9
Vybaveno
Ano
Vlastnictví
Osobní
Užitná plocha
51 m2
Podlahová plocha
51 m2
Třída energetické náročnosti
B - Velmi úsporná
Doprava
MHD, Autobus
Balkon
Garáž
Výtah
Bezbarierový přístup

Kontaktovat makléře

Realitní kancelář

AM House s.r.o.

Kurta Konráda 2457/6, Praha, Libeň

Chystáte se prodat nemovitost?
Pomůžeme Vám!

Máte zájem o tento byt?

Tímto, v souladu s nařízením Evropského parlamentu a Rady (EU) 2016/679, v platném znění, prohlašuji, že mi je alespoň 16 let a uděluji tak svůj souhlas se zpracováním zadaných údajů (jméno, telefon, e-mail, ip adresa) společnosti B3 Technology, s.r.o., IČ: 07330600, se sídlem Novostavby 126/23, 435 11 Lom (správce dat), za účelem předání dotazu z tohoto formuláře Vámi vybranému inzerentovi a zpětného kontaktování mé osoby. Osobní údaje bude správce zpracovávat manuálně i automaticky přímo prostřednictvím svých zaměstnanců. Informace předané tímto formulářem budou uloženy v databázi správce maximálně po dobu 10 let. Odvolání souhlasu s uložením a zpracováním poskytnutých dat lze e-mailem na info@vitio.cz. V případě podezření na neoprávněné použití Vámi poskytnutých údajů máte právo předat podnět k šetření Úřadu pro ochranu osobních údajů. Více informací
Chystáte se prodat nemovitost?
Pomůžeme Vám!

Inzerát si prohlédlo 1 lidí

Prodejce

Darya  Mygalko

Darya Mygalko

Hlídací pes

Chcete dostávat emailem podobné nabídky pronájmu bytů 1+kk v Praze 3?

Podobné nemovitosti