Prodej rodinného domu, Mysliboř, 140 m2 (ID: 2647023)

Mysliboř

5 950 000 Kč /za nemovitost HYPOTÉKA od 26 593 Kč /za měsíc

(včetně provize RK)

Exkluzivní partneři v Mysliboři

Informace k domu

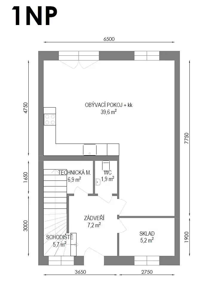
Ve výhradním zastoupení vám nabízím prodej řádového rodinného domu. Dům o dispozici 4+kk s užitnou plochou 140 m2 se nachází na okraji obce Mysliboř.

Jedná se o cihlovou novostavba, která byla zkolaudována v roce 2025 a užívána stávajícími majiteli od listopadu 2025. Řadový dům disponuje čtyřmi pokoji a je navržen s důrazem na komfort a praktičnost. Vytápění domu zajišťuje plynový kotel(radiátory), okna jsou trojskla. Dům je napojen na svoji čističku a zdrojem vody je nyní studna (od červena 2026 bude zhotovena i přípojka na veřejný vodovod). Podlahy v době jsou plovoucí + dlažba. Přestože je okolní zástavba venkovská, dopravní dostupnost je skvělá díky blízkosti vlakové stanice a četnosti autobusových spojů. Na pozemku před modem lze zrealizovat parkování až pro dvě auta. Energetická třída domu je C.

Prohlídky jsou možné po předchozí domluvě. Pro více informací o této nemovitosti nebo sjednání prohlídky nás prosím kontaktujte nebo vyplňte níže uvedený formulář. Rádi vám pomůžeme i s financováním domu.

Parametry domu

Cena
5 950 000 Kč /za nemovitost Spočítat hypotéku
Poznámka k ceně
včetně provize RK
Aktualizováno
19. 4. 2026
Adresa
Mysliboř
Stavba
Cihlová
Stav objektu
Novostavba
Druh objektu
Řadový
Lokalita objektu
Okraj obce
Užitná plocha
140 m2
Zastavěná plocha
77 m2
Plocha pozemku
200 m2
Třída energetické náročnosti
C - Úsporná
Elektřina
400V
Plyn
Plynovod
Odpad
ČOV pro celý objekt
Telekomunikace
Internet
Doprava
Vlak, Silnice, Autobus
Voda
Studna
Topné těleso
Radiátory
Zdroj topení
Plynový kondenzační kotel
Zdroj teplé vody
Bojler - plyn
Parkování

Kontaktovat makléře

Máte zájem o tento dům?

Tímto, v souladu s nařízením Evropského parlamentu a Rady (EU) 2016/679, v platném znění, prohlašuji, že mi je alespoň 16 let a uděluji tak svůj souhlas se zpracováním zadaných údajů (jméno, telefon, e-mail, ip adresa) společnosti B3 Technology, s.r.o., IČ: 07330600, se sídlem Novostavby 126/23, 435 11 Lom (správce dat), za účelem předání dotazu z tohoto formuláře Vámi vybranému inzerentovi a zpětného kontaktování mé osoby. Osobní údaje bude správce zpracovávat manuálně i automaticky přímo prostřednictvím svých zaměstnanců. Informace předané tímto formulářem budou uloženy v databázi správce maximálně po dobu 10 let. Odvolání souhlasu s uložením a zpracováním poskytnutých dat lze e-mailem na info@vitio.cz. V případě podezření na neoprávněné použití Vámi poskytnutých údajů máte právo předat podnět k šetření Úřadu pro ochranu osobních údajů. Více informací
Chystáte se prodat nemovitost?
Pomůžeme Vám!

Inzerát si prohlédlo 0 lidí

Prodejce

Iveta Uhrová

Iveta Uhrová

Hlídací pes

Chcete dostávat emailem podobné nabídky prodeje rodinných domů v Mysliboři?

Podobné nemovitosti