Prodej bytu 3+1, Praha - Podolí, Kaplická, 61 m2 (ID: 2646842)

Kaplická, Praha, Podolí

8 288 000 Kč /za nemovitost HYPOTÉKA od 37 042 Kč /za měsíc
Exkluzivní partneři v Praze 4

Stěhovací služby

Výkup a prodej starého nábytku

Informace k bytu

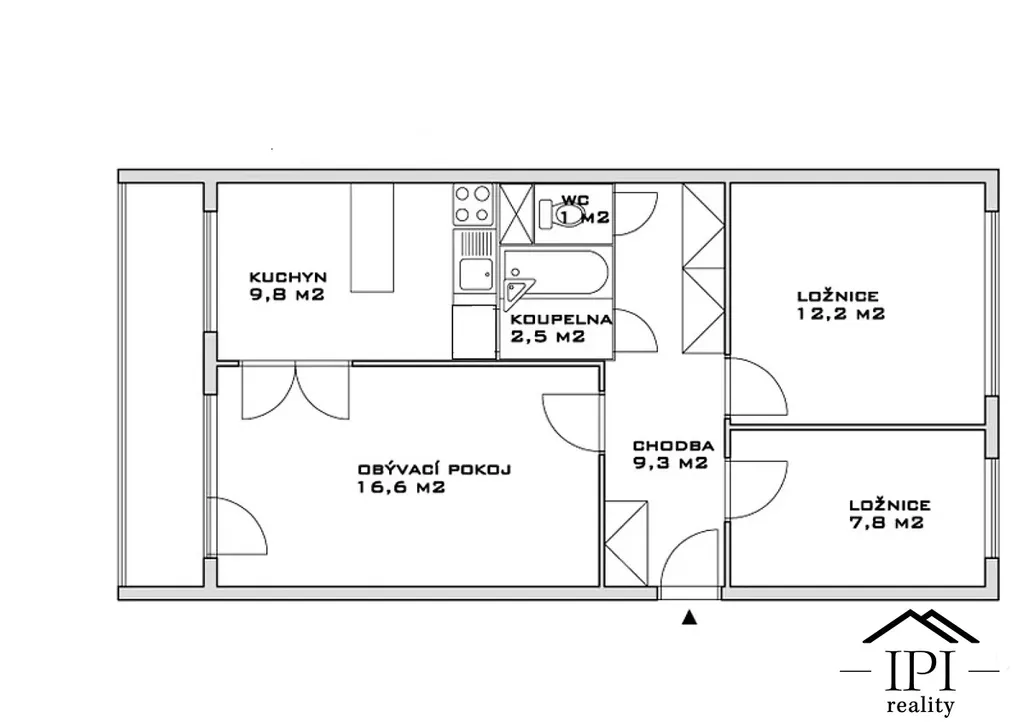
Dovoluji si Vám nabídnout ke koupi velmi hezký družstevní byt dispozice 3+1 s prosklenou lodžií s krásným výhledem o celkové ploše 69 m2, nacházející se v 5. patře panelového domu s výtahem. Byt je v původním stavu s umakartovým jádrem, kdy se v případě rekonstrukce dají kompletně předělat veškeré příčky v bytě.
V bytě jsou všude plastová okna se žaluziemi, v pokojích plovoucí podlaha, či lino, v dalších prostorech dlažba. K bytu náleží i komora, nacházející se na patře naproti bytu.
Zastávka autobusů se nachází kousek od domu, nedaleko i metro trasy C Pankrác. V okolí veškerá občanská vybavenost, dětská hřiště, školy, školky, obchody, OC Arkády Pankrác atd.
Parkování je možné u domu, či na přilehlém parkovišti.

Parametry bytu

Cena
8 288 000 Kč /za nemovitost Spočítat hypotéku
Aktualizováno
19. 4. 2026
Adresa
Kaplická, Praha, Podolí
Stavba
Panelová
Stav objektu
Dobrý
Patro
6.
Vybaveno
Částečně
Vlastnictví
Družstevní
Užitná plocha
61 m2
Třída energetické náročnosti
C - Úsporná
Ukazatel energetické náročnosti
129 kWh/m2 za rok
Elektřina
230V
Plyn
Plynovod
Odpad
Veřejná kanalizace
Komunikace
Asfaltová
Telekomunikace
Internet
Doprava
Silnice, MHD, Autobus
Voda
Vodovod
Topné těleso
Radiátory
Zdroj topení
Centrální dálkové
Zdroj teplé vody
Centrální dálkový ohřev
Sklep
Lodžie
Výtah
Převod do OV

Kontaktovat makléře

Máte zájem o tento byt?

Tímto, v souladu s nařízením Evropského parlamentu a Rady (EU) 2016/679, v platném znění, prohlašuji, že mi je alespoň 16 let a uděluji tak svůj souhlas se zpracováním zadaných údajů (jméno, telefon, e-mail, ip adresa) společnosti B3 Technology, s.r.o., IČ: 07330600, se sídlem Novostavby 126/23, 435 11 Lom (správce dat), za účelem předání dotazu z tohoto formuláře Vámi vybranému inzerentovi a zpětného kontaktování mé osoby. Osobní údaje bude správce zpracovávat manuálně i automaticky přímo prostřednictvím svých zaměstnanců. Informace předané tímto formulářem budou uloženy v databázi správce maximálně po dobu 10 let. Odvolání souhlasu s uložením a zpracováním poskytnutých dat lze e-mailem na info@vitio.cz. V případě podezření na neoprávněné použití Vámi poskytnutých údajů máte právo předat podnět k šetření Úřadu pro ochranu osobních údajů. Více informací
Chystáte se prodat nemovitost?
Pomůžeme Vám!

Inzerát si prohlédlo 0 lidí

Prodejce

Ivana Peterková Imik

Ivana Peterková Imik

Hlídací pes

Chcete dostávat emailem podobné nabídky prodeje bytů 3+1 v Praze 4?

Podobné nemovitosti